[42坪~45坪 2LDK] 自然を感じながら子どもが育ち家事もしやすい、大人も子ども楽しいが叶う家の間取り
全国の建築家から間取りが集まるmadree(マドリー)で集まった42坪~45坪、2LDKの間取りです。オープンキッチンやペニンシュラキッチンが特徴の注文住宅の間取りです。
自然を感じながら子どもが育ち家事もしやすい、大人も子ども楽しいが叶う家はこのような方におすすめです
・30代夫婦、妻は育休中、子ども3人(未就学児)
・趣味:自転車
・子どもが小さく目が離せない
・家族を感じられる家にしたい
自然を感じながら子どもが育ち家事もしやすい、大人も子ども楽しいが叶う家の間取りアイデア
全国対応になりました
| 階数 | |
|---|---|
| 部屋数 | |
| 家族人数 | |
| 土地特徴 | |
| 特徴 | |
| 広さ | |
| 担当建築家・デザイナー |
建築家・デザイナー
からのコメント
【全体のコンセプト】
自然を感じながら子どもが育ち、家事もしやすい間取りを考えました。
【こだわりのポイント】
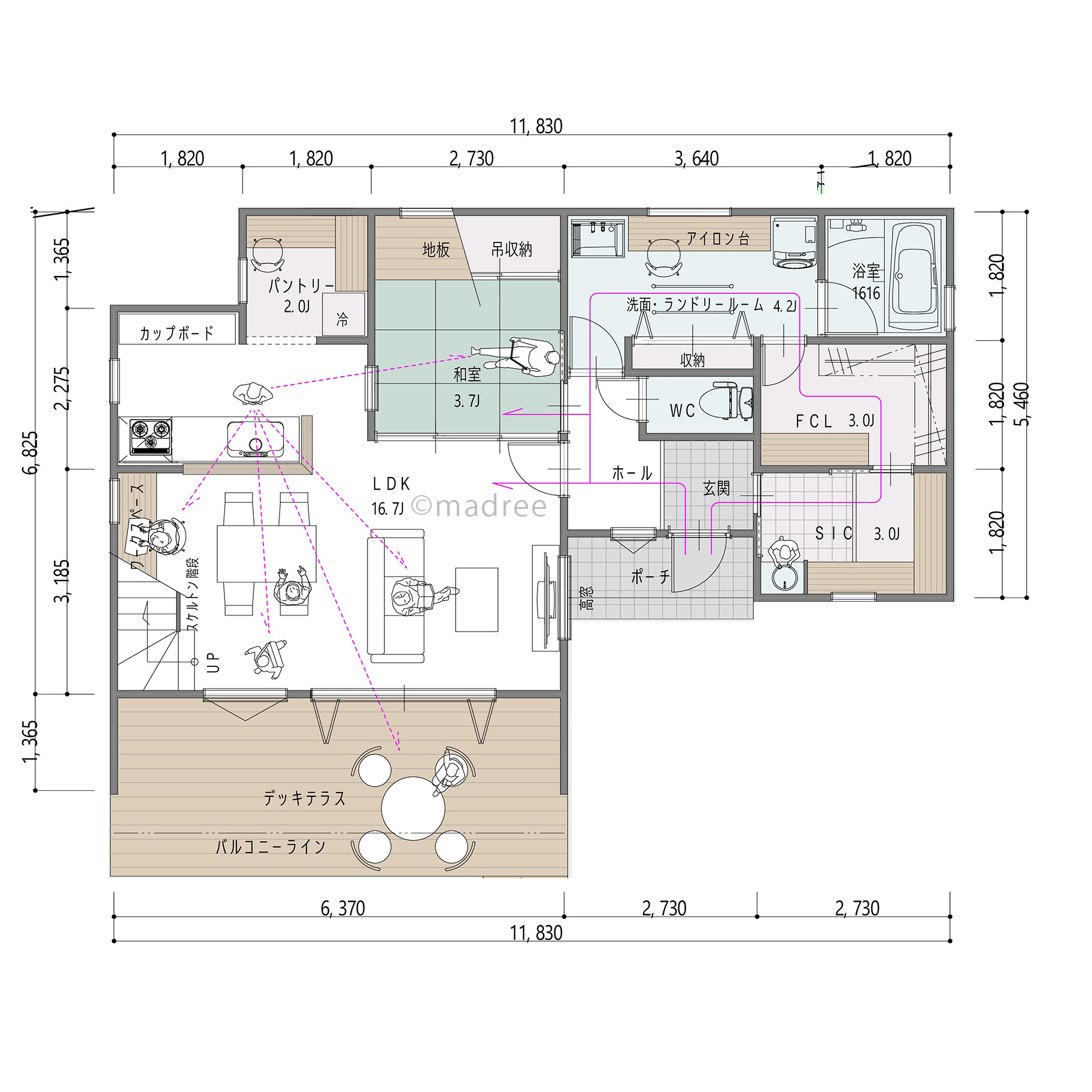
■1階
・玄関
2way表のリビングに行く通りと土間収納を通り、子どもが帰ってランドセルを置ける収納と勉強を兄弟3人で、できるカウンターの裏通りを設けました。
土間収納には帰ったらすぐに手洗いができるように洗面を設けました。
土間収納は下駄箱や庭の手入れなどできる道具が仕舞えるようにしました。
宅配ボックスを壁埋込にしているので取出しも簡単にできます。
玄関の正面は庭の植木が眺められる窓を設け、左のカウンターはお気に入りを飾れるようにしました。
・LDK
約20帖程の広さを設け家族が集まり過ごせるようにしました。
子どもが走り回れるくらいの広さがあり、小さい内はおもちゃを畳コーナーで遊び、片付ける場所はトイレ隣の収納を設けてあります。
余りTVは見ないとの事でしたが、リビング階段の部分に壁掛TVにしてもいいかなと考えました。
勉強やミシン、アイロンなどできるカウンターは壁付ですが窓を設け庭の緑も見れるようにしました。
化粧柱で仕切りお客様が来た時も生活感が目立ちにくいようにしました。
リビングどダイニングの間は飾り棚兼本棚にし、インテリア性のある小物を置いてもいいと思います。
キッチンは対面にし、子どもが遊ぶ様子や庭の緑が見られるように窓も広くしてます。
・パントリー
家庭菜園にすぐ行けるように、パントリーに勝手口を設けました。
・洗面室
室内干ができるよう洗面室は広くしました。
■2階
・2階の様子がわかるように、階段上がった部分は少し低目の中2階にし廊下の部分も吹抜にし光も1階に降りてくるようにしました。
・将来子ども室が3室できるようプランしてます。
■3階
・主寝室と寝る前にゆっくりできるセカンドリビングを設け、お酒など飲めようミニキッチンをつけました。
・子どもが小さい内は、5人でここで寝られるようにもしてます。
・屋上バルコニーは太陽光パネルを設置し余りのスペースは、屋上ガーデンやテントを張って星の観察やバーベキューなど楽しめるように設けました。
42坪~45坪 2LDK関連の間取り
マドリー開発の『住宅営業支援ツール』
madreeデータバンク
マドリーの人気間取り4,800プランを接客・提案に活用できる営業支援ツール
- 競合他社と差がつく、スピード提案
- トレンド間取りで、集客・受注数UP
- 建築家のアイデアを参考に、質の高い提案ができる









