[3LDK] 和室と畳コーナーの両方を備えた、将来は二世帯住宅の間取り
全国の建築家から間取りが集まるmadree(マドリー)で集まった3LDKの間取りです。オープンキッチンやペニンシュラキッチンが特徴の注文住宅の間取りです。
和室と畳コーナーの両方を備えた、将来は二世帯住宅はこのような方におすすめです
・30代共働き夫婦(将来子ども1人予定)、犬1匹(犬も1〜2匹増える予定)
・将来父親と同居予定
・夫婦共にアウトドア・スポーツが好きでキャンプ用品などがたくさんある
・休日は友人達とバーベキューやホームパーティをする
和室と畳コーナーの両方を備えた、将来は二世帯住宅の間取りアイデア
全国対応になりました
| 階数 | |
|---|---|
| 部屋数 | |
| 家族人数 | |
| 土地特徴 | |
| 特徴 | |
| 担当建築家・デザイナー |
建築家・デザイナー
からのコメント
【全体のコンセプト】
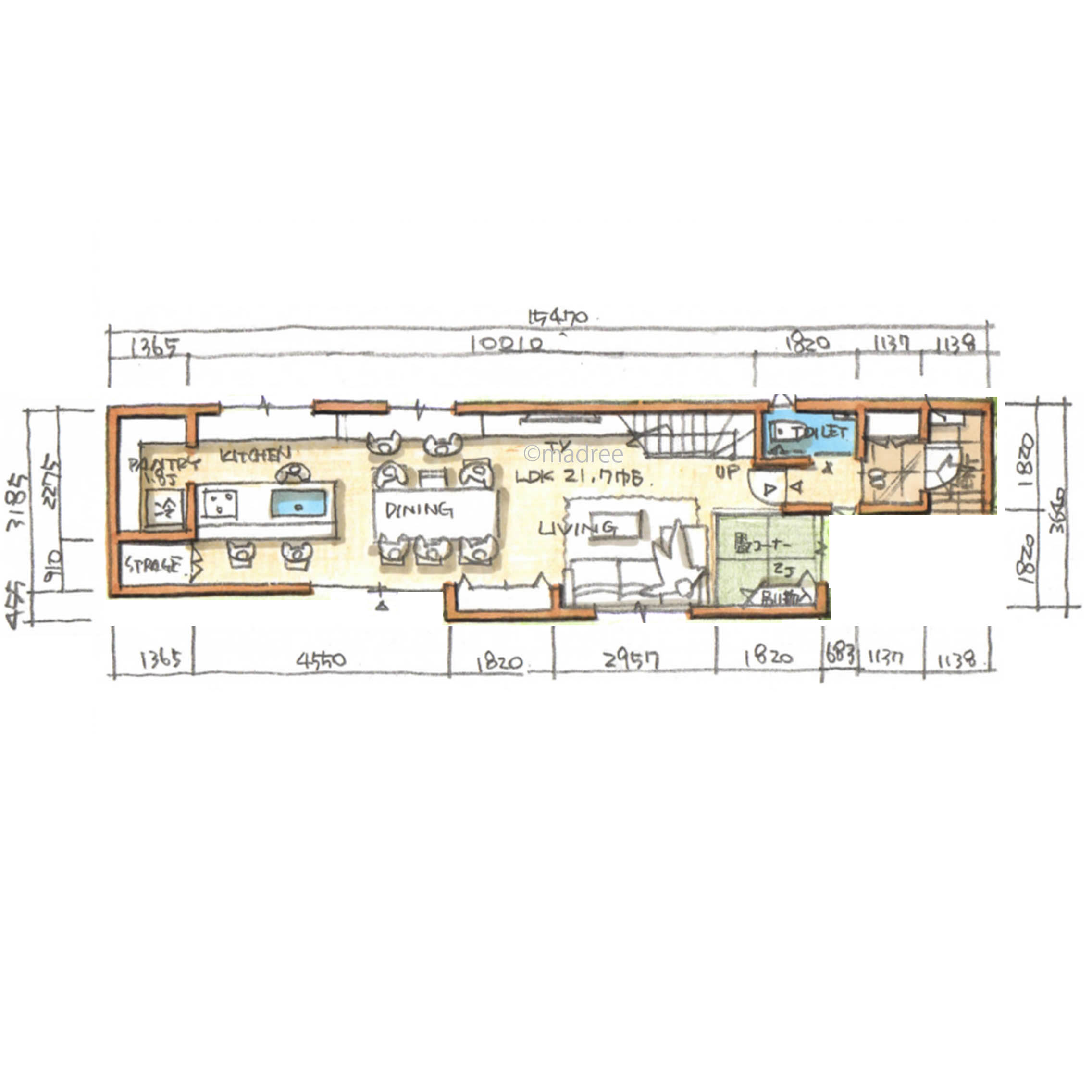
構成としては3LDK+タタミコーナーです。
動きやすい家事動線を意識した間取で回遊性のある提案
【こだわりのポイント】
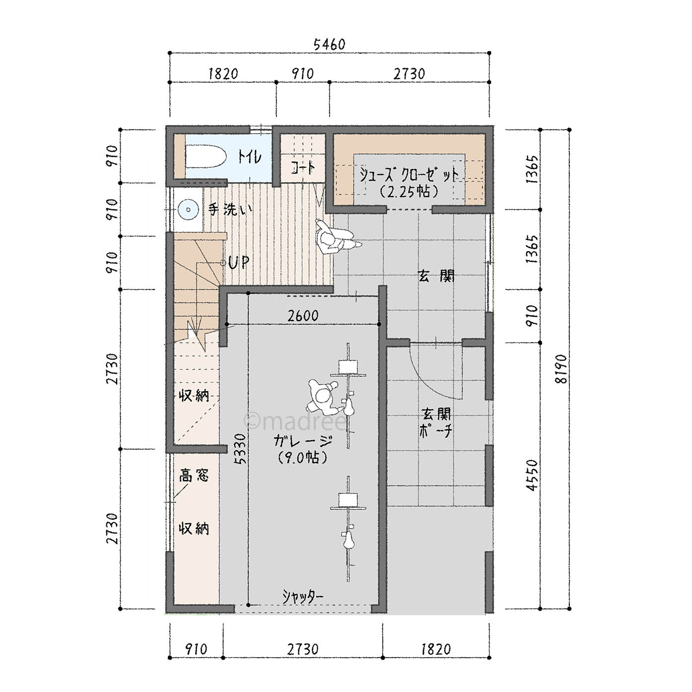
■配置・1階の構成
・駐車スペース
東側に2台設けています。
駐車スペースよりパントリー側の勝手口,もしくはファミリーエントランスの勝手口より入る動線を確保しています。
・玄関
通常タイプとファミリーエントランスタイプの2つを設けています。
通常タイプの方にはベンチを設けています。
ファミリーエントランスにはキャンプ用品の収納で多くのスペースが必用と思い,縦長のスペースを確保しています。
・LDK
キッチンからリビング・ダイニングをそれぞれ眺められるLDK一体型とし,タタミコーナーを設けています。
タタミコーナーはリビングと隣接しています。
小上がりで少し段をつけるか,そのまま段差をつけないかは,後々検討項目となります。
来客時にはなるべくキッチンが見えないような動線を考えました。
・1階の収納
階段下を有効活用してます。
・ウッドデッキ
リビング全面に配置しています。
外部に面しているので,広々とした空間にもなりますし,バーベキューをするのならば,キッチンから料理をスムーズに運べると思います。
・洗面所
パントリーからもリビングからも入れるようにしています。
ぐるぐると回れる動線を確保していますので,家事動線がスムーズにいくと思います。
■2階の構成
・主寝室,子ども部屋の2室,そしてファミリータイプのウォークインクローゼットを配置しています。
・バルコニー
廊下から出られるようにしています。
雨風をあまり受けないように屋根がかかるようインナーバルコニーとしています。
・ホール
雨の日はホールで物干が出来るように昇降機能がついたホスクリーンを設置することで,洗濯できます。
そのまま衣類をたたんで,ウォークインクローゼットにもっていける動線を考えました。(寝室からもWICに入れます。)
3LDK関連の間取り
マドリー開発の『住宅営業支援ツール』
madreeデータバンク
マドリーの人気間取り4,800プランを接客・提案に活用できる営業支援ツール
- 競合他社と差がつく、スピード提案
- トレンド間取りで、集客・受注数UP
- 建築家のアイデアを参考に、質の高い提案ができる







