[31坪 2LDK] くつろぎとコミュニケーションが生まれる、キッチン中心に家族とつながる家の間取り
全国の建築家から間取りが集まるmadree(マドリー)で集まった31坪、2LDKの間取りです。バルコニーやオープンキッチンが特徴の注文住宅の間取りです。
くつろぎとコミュニケーションが生まれる、キッチン中心に家族とつながる家はこのような方におすすめです
・30代夫婦、娘2人、息子1人
・趣味:キャンプ、アイスホッケー、釣り、料理、読書
・習い事やアウトドア用品が多いので、換気できる広い土間収納を設けたい。
・子どもたちと料理するので、ダイニングを作業台として使用しやすいようにしたい。
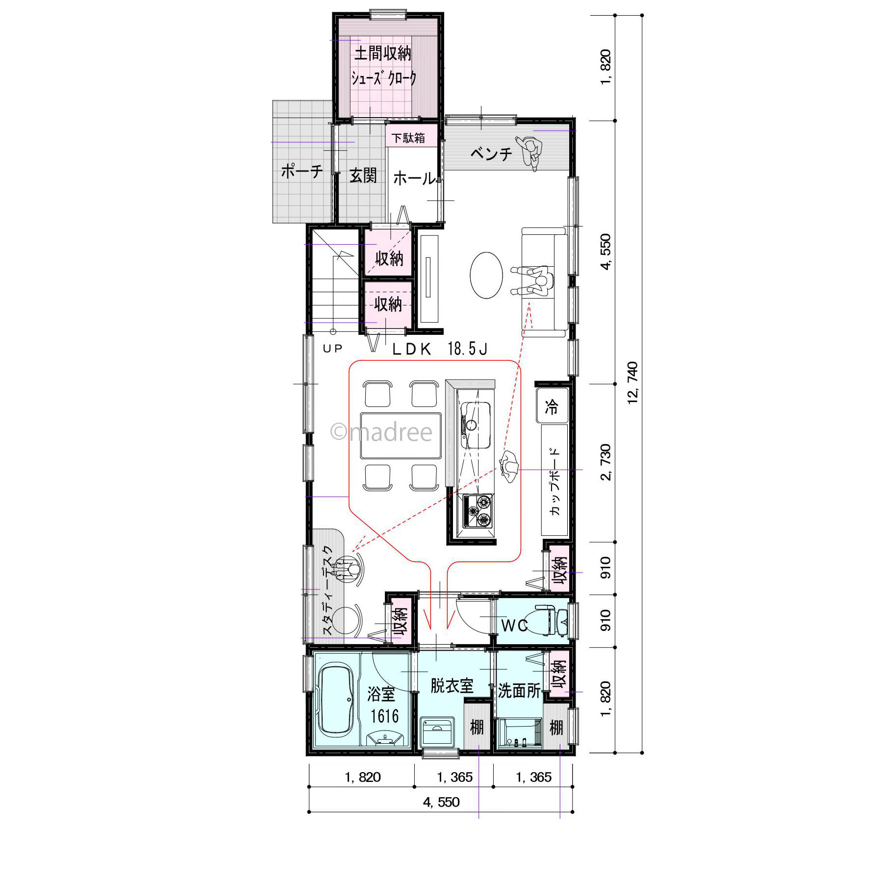
くつろぎとコミュニケーションが生まれる、キッチン中心に家族とつながる家の間取りアイデア
全国対応になりました
| 階数 | |
|---|---|
| 部屋数 | |
| 家族人数 | |
| 土地特徴 | |
| 特徴 | |
| 広さ | |
| 担当建築家・デザイナー |
建築家・デザイナー
からのコメント
【こだわりのポイント】
・敷地条件から考え、安定した光が入り一番明るくなる北側をリビングにしました。
・北側のサッシは高い位置に取り付けることで、更に明るい部屋になります。
・また、リビングには寝転がることができる奥行きのあるベンチを備え付け、下部を収納として活用します。
・壁にもたれて座位でくつろいだり、寝転がって本を読んだり、畳コーナーの代用として使うことができます。
・DKまわりは回遊性を持たせ、水廻りへの家事動線にも配慮しました。
・各所に収納を設け、部屋がスッキリ片付けやすいようにプランしました。
31坪 2LDK関連の間取り
マドリー開発の『住宅営業支援ツール』
madreeデータバンク
マドリーの人気間取り4,800プランを接客・提案に活用できる営業支援ツール
- 競合他社と差がつく、スピード提案
- トレンド間取りで、集客・受注数UP
- 建築家のアイデアを参考に、質の高い提案ができる









