[36坪 3LDK] キッチンから家族を見守れる、陽だまりリビングのあたたかな家の間取り
全国の建築家から間取りが集まるmadree(マドリー)で集まった36坪、3LDKの間取りです。外とつながるLDKやアウトドアリビングが特徴の注文住宅の間取りです。
キッチンから家族を見守れる、陽だまりリビングのあたたかな家はこのような方におすすめです
・30代共働き夫婦、子ども0歳/あと1人子ども希望
・趣味:PC、洋服
・夫婦それぞれ寝るまで趣味時間に使いたいので、簡易に仕切れるようにしたい。
・和室はリビングと一体的に使用でき、かつ玄関から来客をすぐ通せるようにしたい。
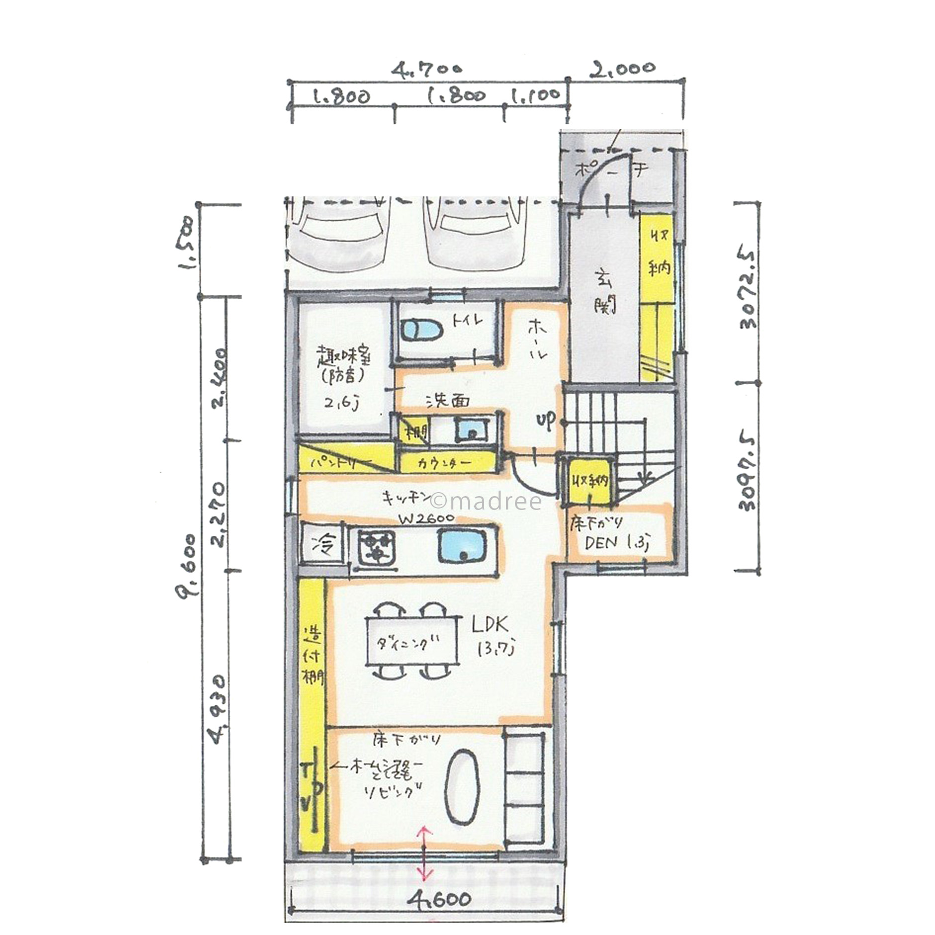
キッチンから家族を見守れる、陽だまりリビングのあたたかな家の間取りアイデア
全国対応になりました
| 広さ | |
|---|---|
| 階数 | |
| 土地特徴 | |
| 部屋数 | |
| 家族人数 | |
| 特徴 | |
| 担当建築家・デザイナー |
建築家・デザイナー
からのコメント
【こだわりのポイント】
・前面道路からのプライバシーに配慮した配置としました。
・各居室は南又は東面に面し、通風と採光を確保しました。
・玄関ホールに洗面ボウルを設け、LDKに入る前に手洗いする事できます。
・子どもが帰ってきたら必ずリビングを通るので「ただいま!」「おかえり!」と毎日言葉を交わすことができます。
・お客様が重なった場合、玄関から直接和室に入ってお話しすることできます。
・キッチンから直接ランドリールームへ出入りできるよう、家事動線を考慮しました。
・スタディカウンターと和室はキッチンから見えるので、子どもを見守れます。
・子ども部屋は将来間仕切りができます。
・主寝室はカーテンで分けます。
・書斎の片引き戸を開けて通風と採光を取る事もでき、閉めて⾳を遮るようにする事できます。
36坪 3LDK関連の間取り
マドリー開発の『住宅営業支援ツール』
madreeデータバンク
マドリーの人気間取り4,800プランを接客・提案に活用できる営業支援ツール
- 競合他社と差がつく、スピード提案
- トレンド間取りで、集客・受注数UP
- 建築家のアイデアを参考に、質の高い提案ができる









