[37坪 4LDK] 多趣味に合わせた収納でLDKはスッキリ、ゲストが気軽に泊まれるスマート来客動線の家の間取り
全国の建築家から間取りが集まるmadree(マドリー)で集まった37坪、4LDKの間取りです。外とつながるLDKやアウトドアリビングが特徴の注文住宅の間取りです。
多趣味に合わせた収納でLDKはスッキリ、ゲストが気軽に泊まれるスマート来客動線の家はこのような方におすすめです
・30代共働き夫婦、息子(小6)/将来的に妻の母が同居予定
・趣味:映画鑑賞、服、写真、インテリア、ゴルフ、スノボ、サッカー
・家族用の庭とは別に、子どもが安心してサッカーの練習ができるスペースが欲しい。
・来客が多く泊まることもあるので、水廻りと客間を近づけたい。
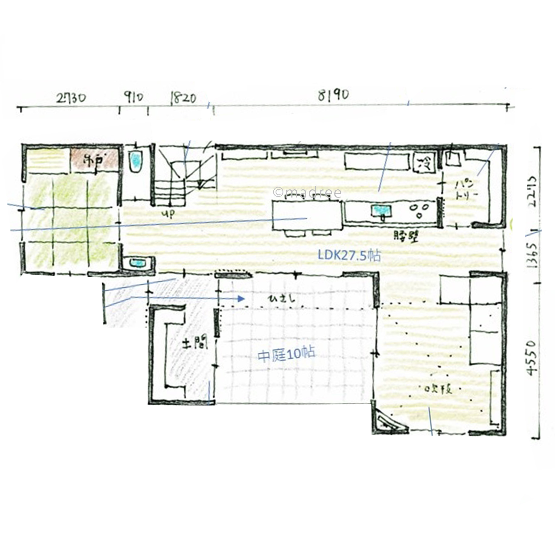
多趣味に合わせた収納でLDKはスッキリ、ゲストが気軽に泊まれるスマート来客動線の家の間取りアイデア
全国対応になりました
| 広さ | |
|---|---|
| 階数 | |
| 土地特徴 | |
| 部屋数 | |
| 家族人数 | |
| 特徴 | 
 | 
| 担当建築家・デザイナー | 
建築家・デザイナー
からのコメント
                【全体のコンセプト】
・南北に長い敷地なので、出来るだけ庭を広くとれるようなプランとした。
・北側の庭ではお子様が遊んでいても、道路側から見えないよう工夫した。
・外観は玄関部分に門型のフラットルーフを作り、2階もフラットルーフでまとめるようなお洒落な外観となるようにした。
・パブリックゾーンは1階、プライベートゾーンは2階と分け、気兼ねなく暮らせるように。
【各階のこだわりポイント】
■1階
・玄関入っての2wayアクセスで玄関はいつも綺麗に保つことが出来ます。
・リビングにはダウンフロアと大きな吹抜が有るので、大迫力のあるリビングとなります。
・リビングとダイニングの間は格子で仕切り、視覚的に少し遮るような演出と木質感を生み出しています。
・キッチンはアイランドキッチンとし、広いカップボードは食器をたくさん飾ることができます。
・脱衣室、洗面、ファミリークロークは近くに設け、家事動線も楽になります。
・将来お母様と一緒に暮らすときに利用しやすいよう、客間は水廻りを近くに配置しました。
■2階
・階段を上がって夫婦のゾーンとその前を通って子どものゾーンを分けているので、子どもの気配を感じながら暮らしていけます。
・寝室にはそれぞれWICを設け、たっぷり収納できるようにしました。
37坪 4LDK関連の間取り
マドリー開発の『住宅営業支援ツール』
 
          madreeデータバンク
            
マドリーの人気間取り4,800プランを接客・提案に活用できる営業支援ツール
- 競合他社と差がつく、スピード提案
- トレンド間取りで、集客・受注数UP
- 建築家のアイデアを参考に、質の高い提案ができる

![[37坪 4LDK] 多趣味に合わせた収納でLDKはスッキリ、ゲストが気軽に泊まれるスマート来客動線の家の間取り図 1階の画像](https://madree-production.s3.ap-northeast-1.amazonaws.com/uploads/images/plans/2321-1sp.png) 
                                                      ![[37坪 4LDK] 多趣味に合わせた収納でLDKはスッキリ、ゲストが気軽に泊まれるスマート来客動線の家の間取り図](https://madree-production.s3.ap-northeast-1.amazonaws.com/uploads/images/madree_blurred_image.png) 
                                                  








 
          