[40坪 3LDK] 中庭一体のLDKで光と風が心地良い、ゆるやかに繋がるオープンハウスの間取り
全国の建築家から間取りが集まるmadree(マドリー)で集まった40坪、3LDKの間取りです。外とつながるLDKやアウトドアリビングが特徴の注文住宅の間取りです。
中庭一体のLDKで光と風が心地良い、ゆるやかに繋がるオープンハウスはこのような方におすすめです
・40代共働き夫婦、5歳0歳の姉弟
・趣味:キャンプやスポーツ、アウトドア派
・家族のつながりを大切にしたいので、オープンな生活をしたい
・朝の準備がスムーズにできるよう、ファミクロと洗面を近くにしたい
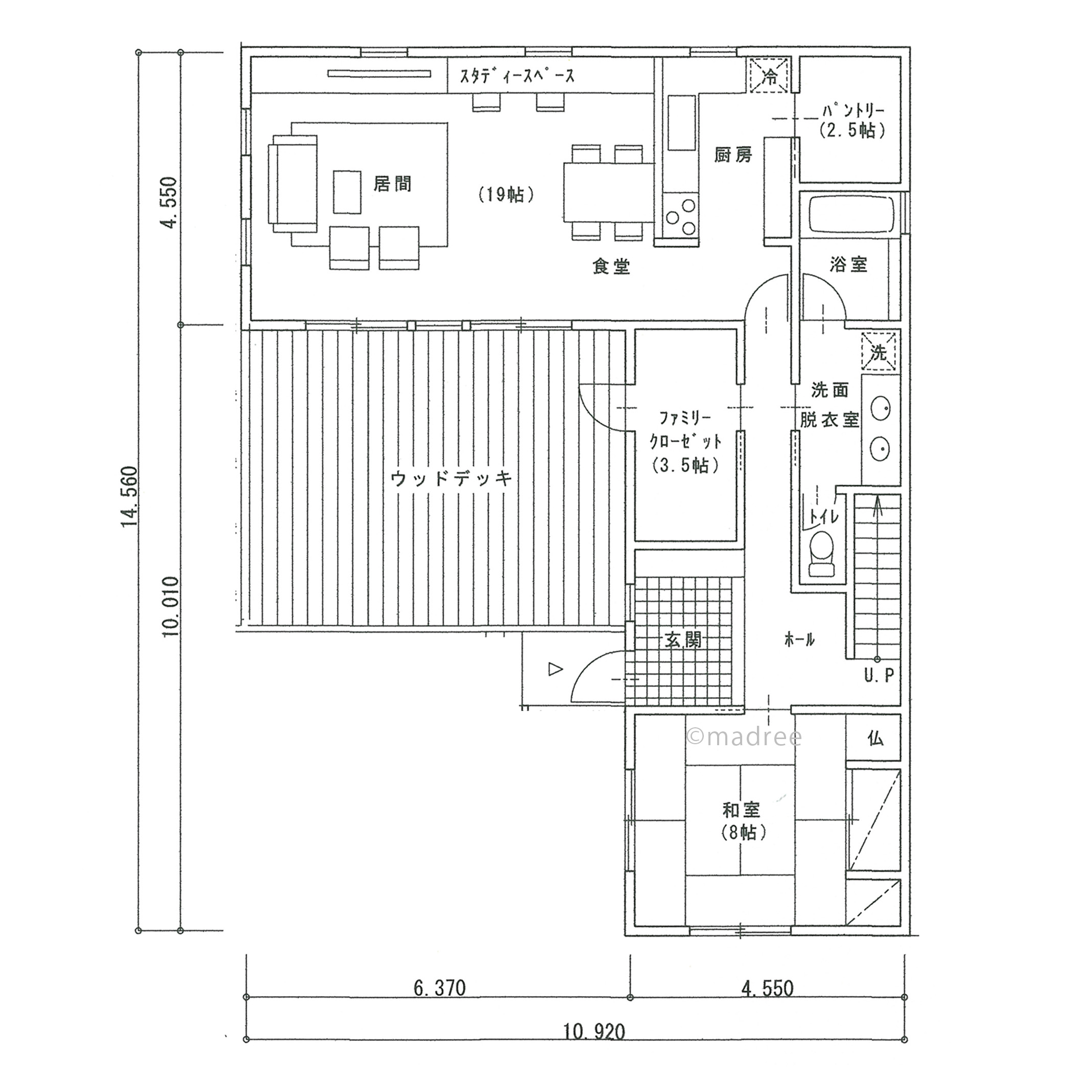
中庭一体のLDKで光と風が心地良い、ゆるやかに繋がるオープンハウスの間取りアイデア
全国対応になりました
| 広さ | |
|---|---|
| 土地特徴 | |
| 階数 | |
| 部屋数 | |
| 家族人数 | |
| 特徴 | |
| 担当建築家・デザイナー |
建築家・デザイナー
からのコメント
【全体のコンセプト】
・建物外部は趣味や家事での使い勝手、建物内部では日常生活の動線に配慮し、軽量鉄骨造の構造躯体をイメージしてプランを作成しました。
・中庭とLDKが一体的となり、光と風、広がりのあるリビングを中心として、それぞれのスペースを回遊できる間取りです。
・吹抜のあるフラットハウスですが、屋根裏空間を居室として利用しているため、建築基準法では2階建の扱いになります。
40坪 3LDK関連の間取り
マドリー開発の『住宅営業支援ツール』
madreeデータバンク
マドリーの人気間取り4,800プランを接客・提案に活用できる営業支援ツール
- 競合他社と差がつく、スピード提案
- トレンド間取りで、集客・受注数UP
- 建築家のアイデアを参考に、質の高い提案ができる









