吹抜で家族が繋がるの間取り一覧
家族や自分の”好き”を叶える注文住宅の間取りが見つかる!暮らしの要望をもとに全国の建築家が作成した吹抜で家族が繋がるの間取りを483件公開しています。毎日更新中!
-
- 34坪
- 2LDK
朝日をたっぷり取り込むLDKと、時短身支度で気持ち良い1日がスタートする家
-
- 42坪
- 5LDK
各々のパーソナルスペースで自由な自分時間、お互い気兼ねせず過ごせる二世帯住宅
-
- 42坪
- 3LDK
半個室のワークスペースで家事と仕事にメリハリを、車通りを気にせず過ごせる2階LDKの家
-
- 33坪
- 2LDK
気持ち良く過ごせる癒しの在宅ワークスペース、坪庭の緑でリフレッシュできる平屋
-
- 53坪
- 3LDK
ダイニングの余白をゲージスペースに活用、家の中でも軽く走れる回遊動線のある家
-
- 42坪
- 4LDK
LDKから縦へ屋外へ広がる開放感、奥行きのあるデッキテラスから光を採り込む家
-
- 47坪
- 4LDK
天気を気にしない帰宅後の家事楽動線、広めのガレージと玄関土間で趣味を楽しむ家
-
- 25坪
- 2LDK
キッチンカウンターで家族の会話彩る、バルコニーを囲んだ南向き2階LDKの家
-
- 35坪
- 2LDK
靴のままサッと一時置きして散らかり対策、2つの玄関扉で来客動線は常にスッキリの家
-
- 36坪
- 3LDK
帰宅後はすぐに手洗いうがい!家族も来客も利用しやすい家事楽な水廻り動線の家
-
- 34坪
- 4LDK
リビング階段と吹抜で家族を近くに感じる、明るさと開放感のある台形地に建つ家
-
- 40坪
- 3LDK
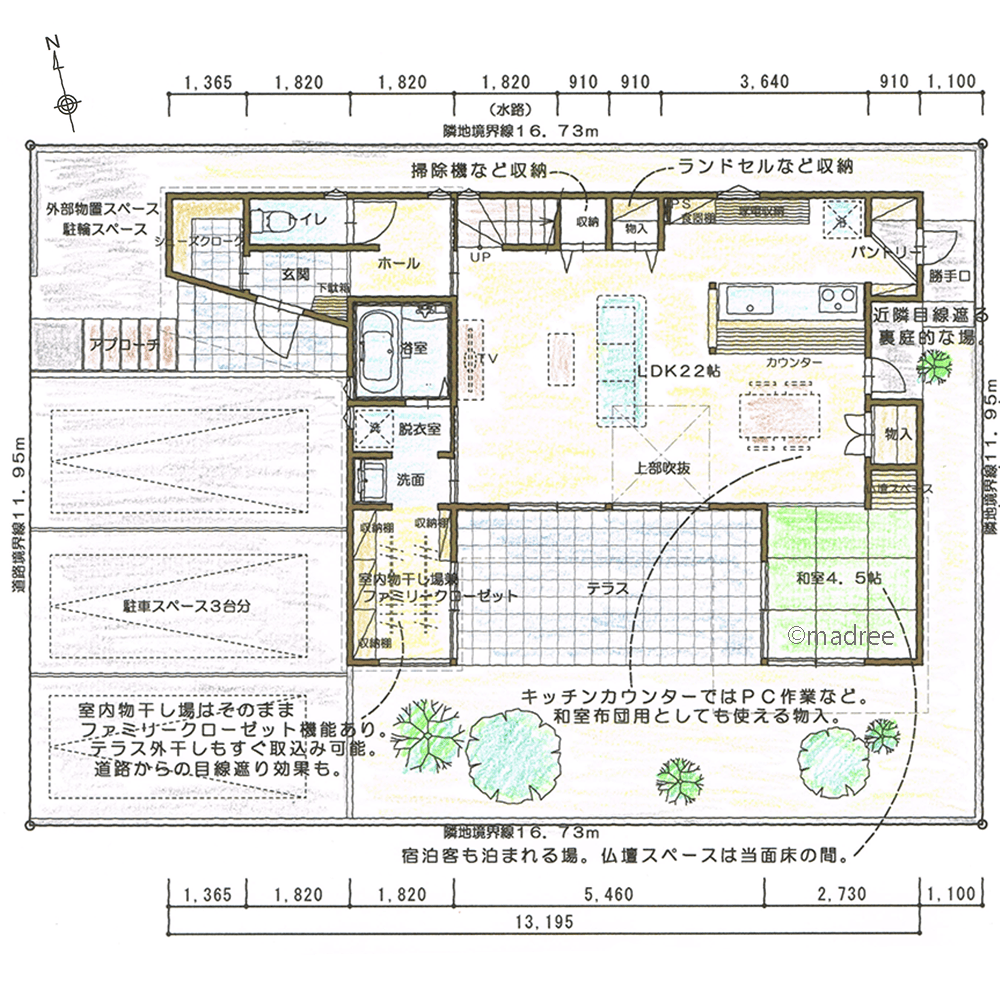
大きな吹抜で日中明るいLDKと、趣味に囲まれた心温まる家
-
- 56坪
- 4LDK
繋がる回遊動線で家事がコンパクトに完結、将来的に1階のみで生活できる家
-
- 36坪
- 2LDK
家族の中にもOFFの時間を大切に、夫婦でのんびり過ごせるプライベートデッキのある家
-
- 46坪
- 3LDK
陽当たり良い庭で楽しい週末を過ごす、家事も屋外も回遊動線で繋がりのある家
-
- 34坪
- 2LDK
テラスまで一体感のある広々空間、リビング中心に回遊しながら家事動線の繋がる家
-
- 41坪
- 4LDK
通り抜けパントリーが隙間時間に活躍、家中と繋がる家事動線で心に余裕生まれる家
-
- 39坪
- 3LDK
タイルデッキで家族団らんの休日を、生活動線を意識した片付く家
-
- 34坪
- 2LDK
視認性のある職場と隠れたプライベート空間、家族が安心して過ごせる事務所併設の家
-
- 42坪
- 5LDK
旗竿地に広がる緑の小庭、家族それぞれに篭れる陽だまり部屋のある二世帯住宅
-
- 35坪
- 4LDK
暮らしやすさを意識した空間活用、収納場所で困らずスッキリをキープできる家
-
- 39坪
- 3LDK
L字型LDKが囲むプライベードデッキで、眺望を活かしたお花見やBBQを楽しめる家
-
- 38坪
- 4LDK
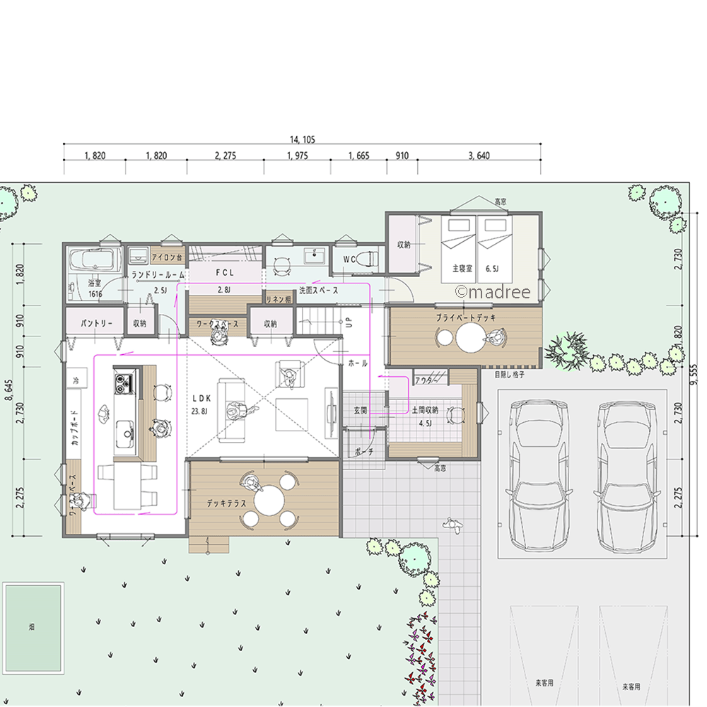
家族の時間も個々の時間も充実、外空間楽しむ来客ウェルカムな二世帯住宅
-
- 89坪
- 3LDK
ご近所のように寄り添える距離感で暮らす、各階に憩いの場がある完全二世帯住宅
マドリー開発の『住宅営業支援ツール』
madreeデータバンク
マドリーの人気間取り4,800プランを接客・提案に活用できる営業支援ツール
- 競合他社と差がつく、スピード提案
- トレンド間取りで、集客・受注数UP
- 建築家のアイデアを参考に、質の高い提案ができる
