2WAY玄関の間取り一覧
家族や自分の”好き”を叶える注文住宅の間取りが見つかる!暮らしの要望をもとに全国の建築家が作成した2WAY玄関の間取りを1491件公開しています。毎日更新中!
-
- 73坪
- 2LDK
気楽に行き来できる良い距離感、明るい日差しと海風を感じられる二世帯住宅
-
- 43坪
- 5LDK
大きな庭へ広がる眺望、個室に篭らず自然と陽だまりに家族が集まる家
-
- 36坪
- 3LDK
中2階で少し篭って在宅ワーク、いつも家族を感じる書斎のある二世帯住宅
-
- 30坪
- 2LDK
ワンルームの2階をフレキシブルに活用、家族の成長と共に部屋を変化させる家
-
- 36坪
- 4LDK
隣が公園のロケーションを活かし、景色を楽しむ同居予定の二世帯住宅
-
- 38坪
- 5LDK
充実した帰宅動線と適材適所の収納で、散らかりにくいワーママ応援の家
-
- 38坪
- 3LDK
縦横広がる大空間リビングで家族憩う、隣家の視線カットしたコの字の家
-
- 34坪
- 4LDK
共有ファミクロが家の中心、適所に隠してサッと片付く収納迷子にならない平屋
-
- 47坪
- 4LDK
中庭に臨む高天井リビングに家族集う、地震災害や防犯に配慮した平屋
-
- 38坪
- 4LDK
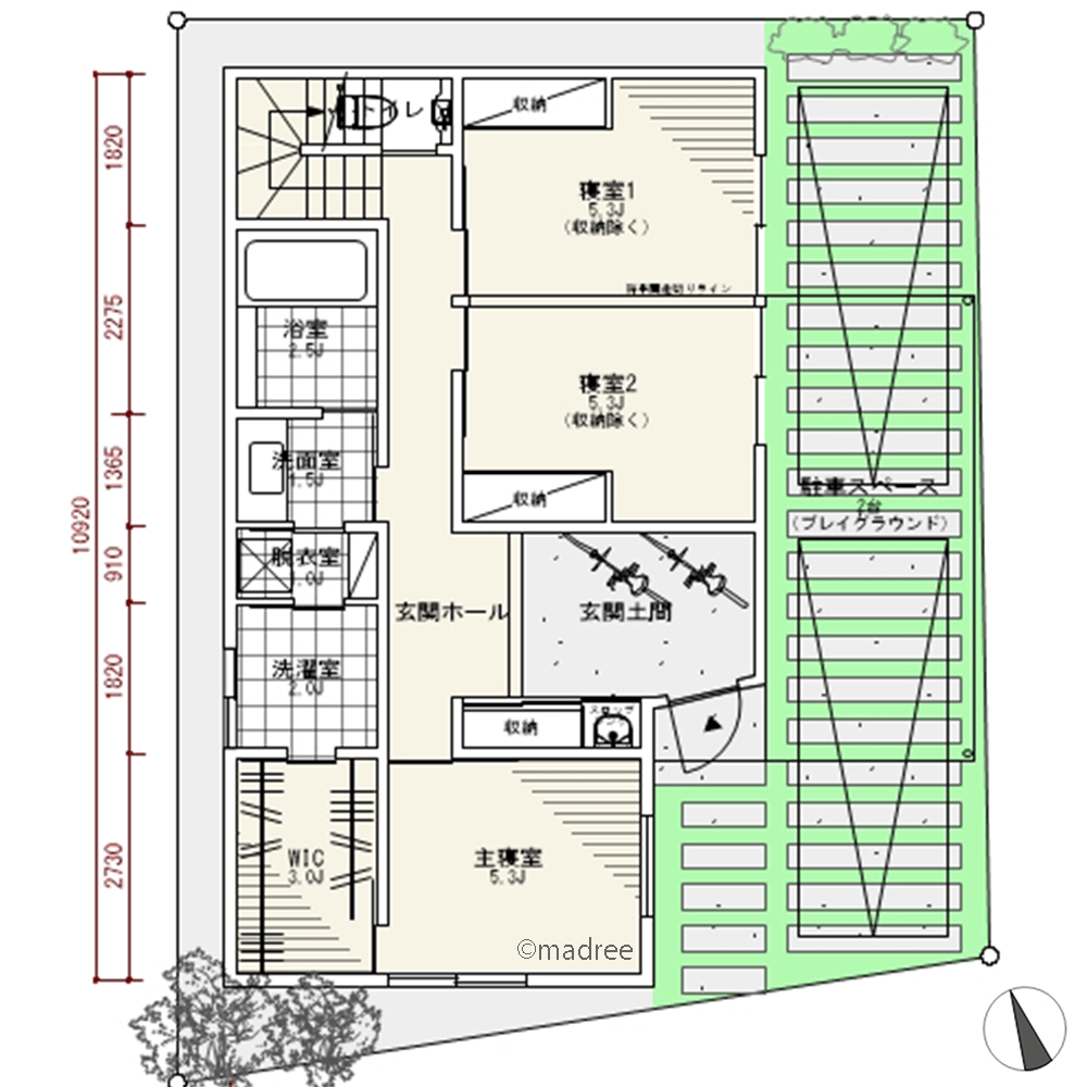
寝室から繋がる水廻りでサクサク朝支度、光と風が心地良い2階リビングの家
-
- 38坪
- 3LDK
太陽の光と空気をたっぷり浴びる、緑に囲まれたアウトドア派の二世帯住宅
-
- 42坪
- 3LDK
裏動線に生活感をまる隠し、来客ウェルカムなアウトドア好きの家
-
- 27坪〜30坪
- 4LDK
豊かな家族時間を過ごすアウトドアリビングと、適材適所の大収納で広々感じる家
-
- 36坪
- 2LDK
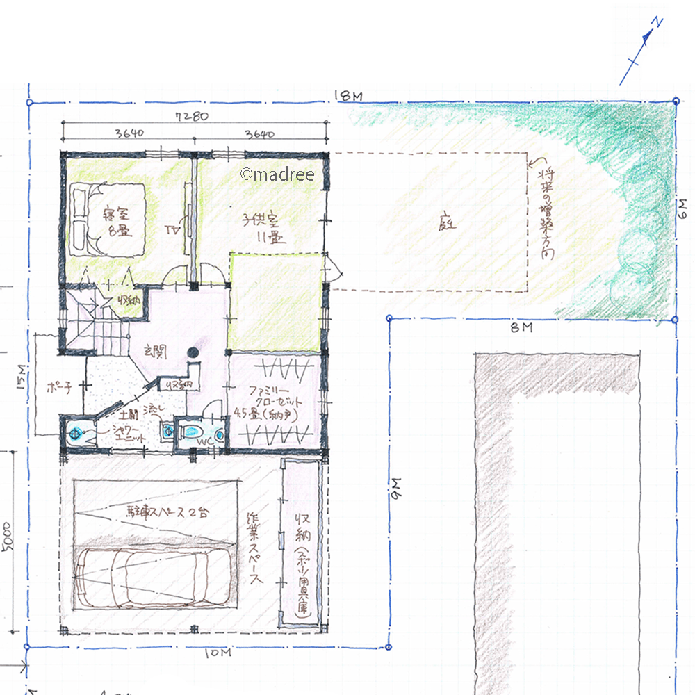
家事動線をキッチン中心にまとめた、子の成長と共にフレキシブルに対応できる家
-
- 41坪
- 5LDK
それぞれの時間も大切に過ごす、床座でくつろぐおとな3人世帯の家
-
- 41坪
- 3LDK
ファミクロ中心動線で家事&生活が捗る、吹抜越しに家族感じる在宅ワーカーの家
-
- 36坪
- 2LDK
生活動線上にある憩いの場、ガラス窓の向こうに家族の気配を感じられる平屋
-
- 25坪
- 4LDK
アウトドアリビングへ視界広がる、開放的で奥行き感じる狭小住宅
-
- 42坪
- 3LDK
自然と片付く複数の回遊動線、キッチンから最短距離で無駄なく家事を結ぶ家
-
- 45坪
- 4LDK
2階バルコニーで眺望と会話楽しむ、プライベート空間が2つの主寝室を繋ぐ家
-
- 36坪
- 3LDK
生活スタイルに合わせた余地計画、家族の今を反映して建物を変化させていく家
-
- 31坪
- 3LDK
屋根より高い開放的な家族スペース、視線を気にせず屋上でのびのび過ごす家
-
- 37坪
- 3LDK
中庭で明るさとプライバシーを確保、隣家の視線カットした平屋
-
- 19坪
- 1LDK
光と風が通り抜けるリビングで、家族時間をたっぷり共有できる平屋
マドリー開発の『住宅営業支援ツール』
madreeデータバンク
マドリーの人気間取り4,800プランを接客・提案に活用できる営業支援ツール
- 競合他社と差がつく、スピード提案
- トレンド間取りで、集客・受注数UP
- 建築家のアイデアを参考に、質の高い提案ができる
