一部2階建の間取り一覧
家族や自分の”好き”を叶える注文住宅の間取りが見つかる!暮らしの要望をもとに全国の建築家が作成した一部2階建の間取りを1017件公開しています。毎日更新中!
-
- 33坪
- 3LDK
陽だまりLDKと繋がる庭のようなバルコニー、プライベート感のある2階でゆったり暮らす家
-
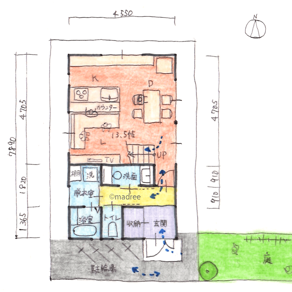
- 35坪
- 4LDK
ウッドデッキへ広がる開放感、吹抜と庭からの光で明るいLDKが生活の中心となる家
-
- 50坪
- 4LDK
階段を挟んでLDKを空間分け、デッキと繋がる楽家事動線で充実の自分時間を過ごす家
-
- 31坪
- 3LDK
LDKを通らず玄関から水廻りへ直行、自然に綺麗をキープできる帰宅後動線のある家
-
- 27坪〜30坪
- 3LDK
キッチン近くで家事完結の効率動線、狭小かつ変形地を明るく開放的にみせる家
-
- 32坪
- 4LDK
キッチンからぐるっとラク家事動線、将来のライフプラン見据えた平屋のような家
-
- 36坪
- 3LDK
大きな吹抜と大窓で縦横に空間広がる、光と風が心地良い在宅ワーカーの家
-
- 27坪〜30坪
- 3LDK
回遊動線で大人数でもストレスフリー、人が集まる賑やかな2階LDKの二世帯住宅
-
- 27坪〜30坪
- 4LDK
家事をしながら家族や庭を望む、動線良く空間を活用して6人家族が快適に暮らす家
-
- 21坪〜24坪
- 2LDK
吹抜と相性抜群のリビング階段で、コンパクトでも縦に空間の広がりを感じられる家
-
- 43坪
- 6LDK
一直線の裏動線で家事効率UP、かけがえのない家族時間をつくるママ目線の注文住宅
-
- 50坪
- 5LDK
家族が思い思いの時間を伸びやかに過ごす、縁側に囲まれた緑豊かな多世帯で住む家
-
- 39坪
- 3LDK
庭とつながるダイナミックなリビングが主役、機能別に空間分けた快適動線の家
-
- 32坪
- 3LDK
おこもりヌックが家族のお気に入りスペースに、2つの庭に囲まれた伸びやかなLDKの家
-
- 36坪
- 4LDK
デッドスペースは最大限収納に活用、リビング中心に回遊動線で家事の繋がる家
-
- 40坪
- 4LDK
玄関扉がプライバシーを守る、親しみやすいL字型キッチンを囲む快適LDK空間の家
-
- 38坪
- 3LDK
見せる収納と隠す収納を上手に使い分け、居心地を求めた落ち着くモダンな家
-
- 27坪〜30坪
- 3LDK
2つのテラスから光がLDKに届く、キッチン中心に家事動線をまとめた家
-
- 31坪
- 2LDK
一望できるキッチンと吹抜で家族見守る、光と風が心地良い変形地活かした家
-
- 41坪
- 4LDK
玄関から一直線の勝手口でラクにゴミ出し、生活感を隠せる来客動線のある家
-
- 38坪
- 3LDK
LDKと繋がる室内のような吹抜テラスで、週末はのんびりプライベート時間を過ごす家
-
- 40坪
- 2LDK
圧迫感なくフレキシブルに空間を繋ぐ、縦にも奥にも視界が抜ける明るい縦長地の家
-
- 39坪
- 3LDK
自然光の届くリラックス空間、家族みんなが通る2階廊下をホームライブラリーにした家
-
- 33坪
- 3LDK
ズボラでも整う無駄のない回遊性、コンパクトな生活動線でのんびり時間の増える家
マドリー開発の『住宅営業支援ツール』
madreeデータバンク
マドリーの人気間取り4,800プランを接客・提案に活用できる営業支援ツール
- 競合他社と差がつく、スピード提案
- トレンド間取りで、集客・受注数UP
- 建築家のアイデアを参考に、質の高い提案ができる
