[32坪 3LDK] 生活動線をわけ、プライバシーと日照を確保した平屋の間取り
全国の建築家から間取りが集まるmadree(マドリー)で集まった32坪、3LDKの間取りです。リビング一体の畳や子ども見守れるキッチンが特徴の注文住宅の間取りです。
生活動線をわけ、プライバシーと日照を確保した平屋はこのような方におすすめです
・40代夫婦と小学生の一人娘、インテリアが好き
・妻は在宅ワーカー。集中できるPCスペース希望
・生活感を隠せるよう、キッチン内はあまり見えないようにしたい
・住宅密集地なので、洗濯物は室内干しにしたい
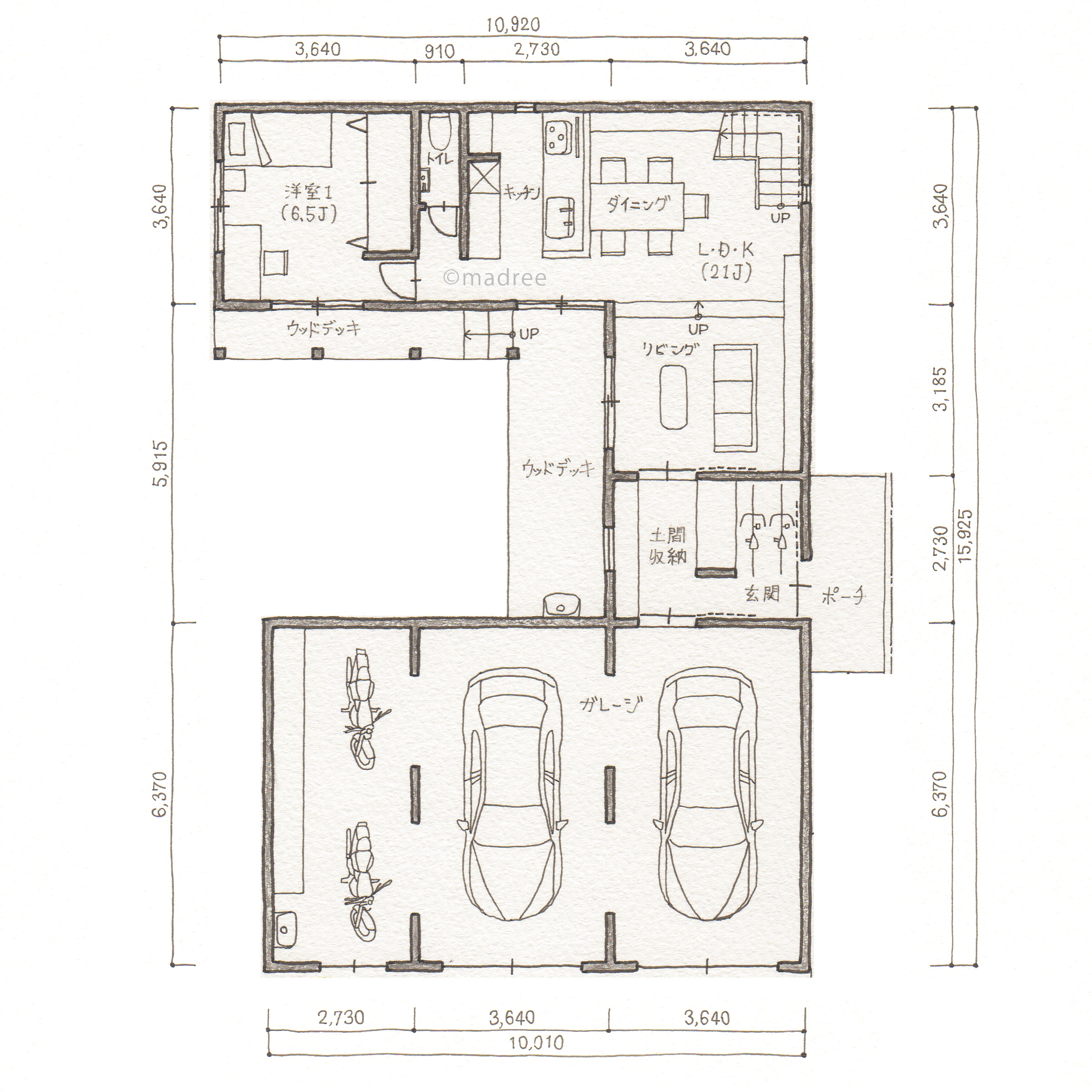
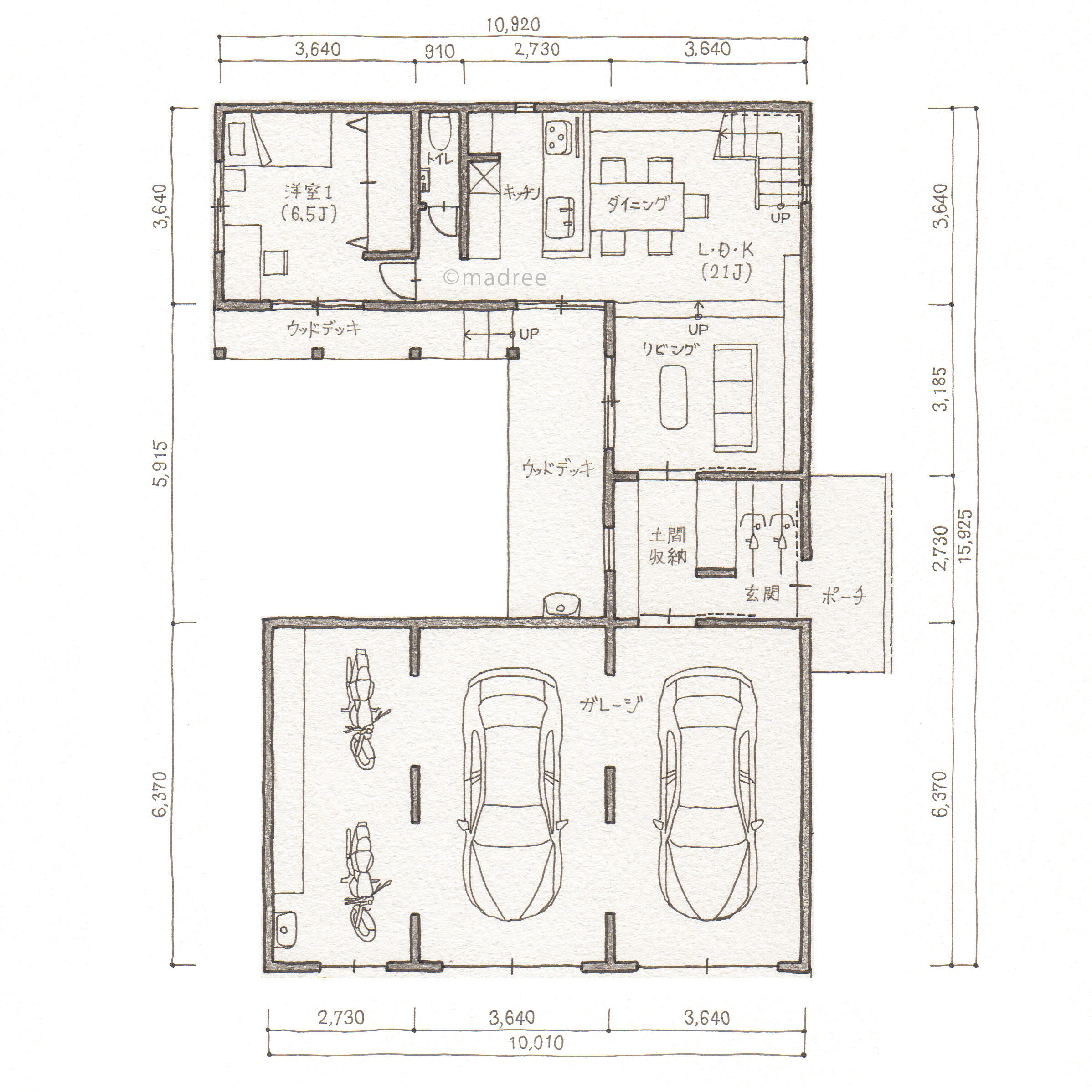
生活動線をわけ、プライバシーと日照を確保した平屋の間取りアイデア
全国対応になりました
| 広さ | |
|---|---|
| 階数 | |
| 部屋数 | |
| 家族人数 | |
| 土地特徴 | |
| 特徴 | |
| 担当建築家・デザイナー |
建築家・デザイナー
からのコメント
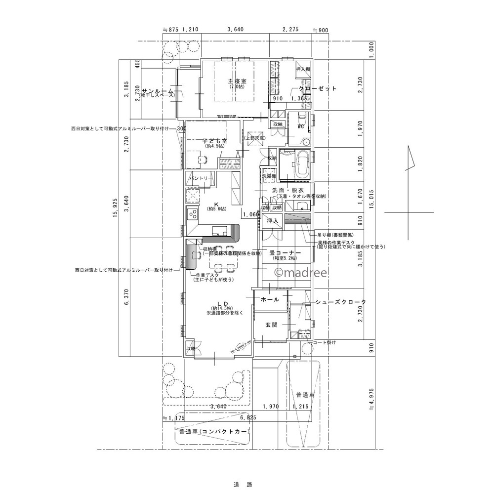
【全体のコンセプト】
・一般的には南面、東面からの日照を主体に間取りを考えますが、今回は東側の隣家が近い状況にありますので、南面と西面から日照を得るように、浴室、洗面、トイレを東側に配置する事としました。
・畳コーナーは、5.2帖ほどの広さですが、ホールからも直接入れるようにし、お客様の応接としても使える空間としました。そして、お客様をお泊めするスペースともなります。
・その畳コーナーは普段は仕切り戸を開けて、LDと一体として使います。別々の事を家族がする場合などに、有効に使える空間となります。そして、ここに奥様の仕事スペースを設けました。ちょっと集中が必要な時は仕切り戸を閉める事も出来ます。その仕事スペース、お客様対応で使う時は、そこを小ぎれいにしたり、簡単な衝立で目隠しすれば良いのではないかと思っています。
・キッチンはL型で計画しました。収納スペースの効率という面ではI型の形の方が有利ですが、出来るだけ動きやすいように考えてみました。
・キッチンと洗面、浴室が近いので、家事動線も効率が良いです。又、キッチンからLD、畳コーナーがしっかり見える配置としました。
・物干しスペースは、主寝室西側にサンルームという形で設けました。天気の良い日は、その部分の戸を開け放して干して頂ければと思います。
・トイレは、将来の事を考え、少し広めの空間としました。
32坪 3LDK関連の間取り
マドリー開発の『住宅営業支援ツール』
madreeデータバンク
マドリーの人気間取り4,800プランを接客・提案に活用できる営業支援ツール
- 競合他社と差がつく、スピード提案
- トレンド間取りで、集客・受注数UP
- 建築家のアイデアを参考に、質の高い提案ができる









