[34坪 3LDK] 趣味も家事も広々楽しめる!採光と眺望の良いサーファーズハウスの間取り
全国の建築家から間取りが集まるmadree(マドリー)で集まった34坪、3LDKの間取りです。オープンキッチンやペニンシュラキッチンが特徴の注文住宅の間取りです。
趣味も家事も広々楽しめる!採光と眺望の良いサーファーズハウスはこのような方におすすめです
家族構成:40代夫婦、子1人(未就学児)、母80代
趣味:夫婦共にサーフィンとキャンプが趣味
趣味も家事も広々楽しめる!採光と眺望の良いサーファーズハウスの間取りアイデア
全国対応になりました
| 階数 | |
|---|---|
| 部屋数 | |
| 家族人数 | |
| 土地特徴 | |
| 特徴 | |
| 広さ | |
| 担当建築家・デザイナー |
建築家・デザイナー
からのコメント
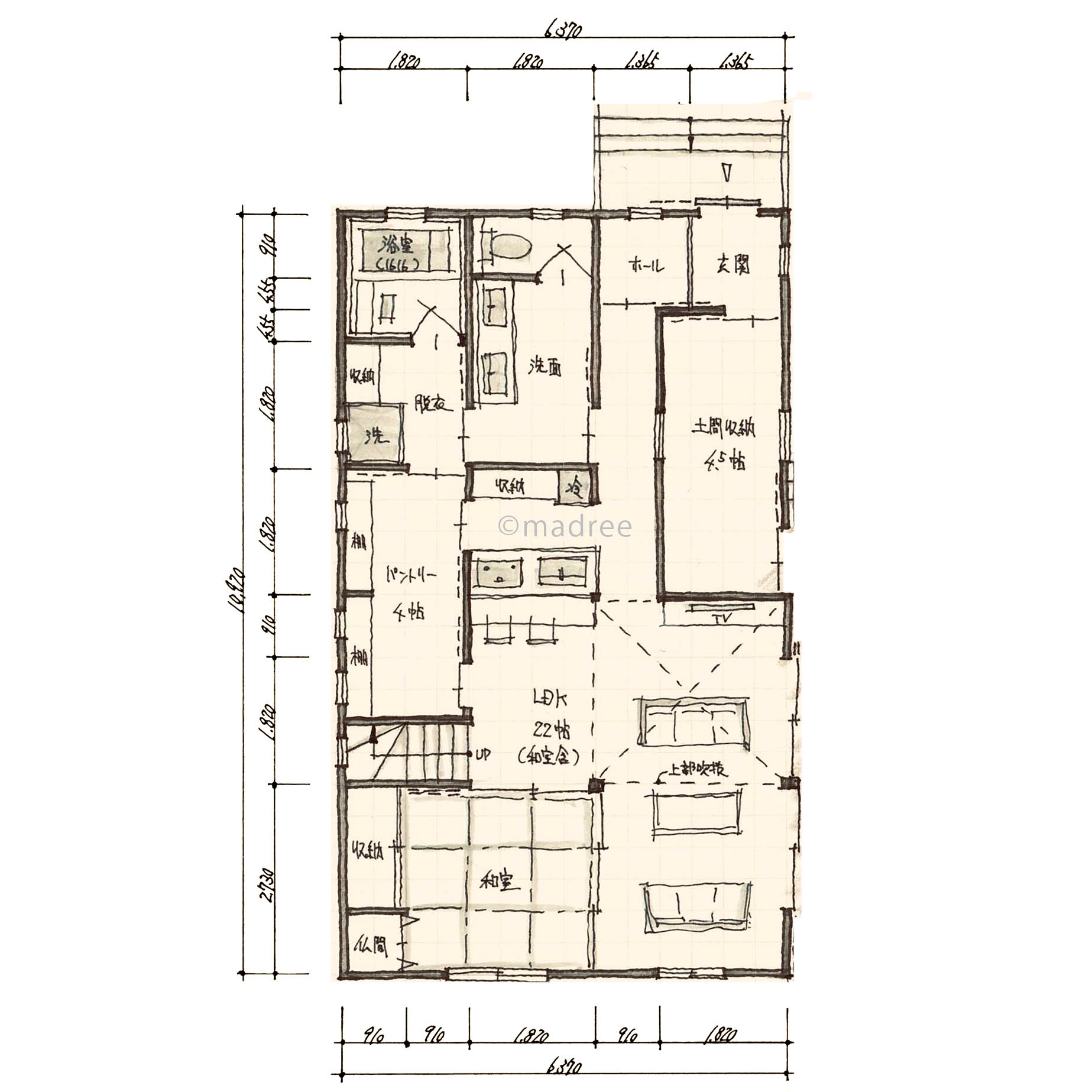
【全体のコンセプト】
・趣味も家事も広々楽しく
・敷地西側に建物を配置する事で東側の採光と眺望を確保
・サーフボード用に広い屋外の土間を設け、帰ってすぐに洗えたり、オフシーズンはメンテナンスに使えます
・駐車場2台確保(ボードをすぐに下ろせます)
・使いやすくシンプルな構造でコストも低減
【こだわりのポイント】
■1階
・明るい玄関からも直接土間収納へ繋がります
・キッチンからリビング全体が見渡せ、東側の窓を開放すると吹抜けと合わせて明るく、風通しの良い空間となります
・和室はみんなの様子が伺える位置に配置
・水回りは北西側に集約し回遊性も抜群
・外部の土間エリアが今回のプランの中心です
・土間収納やリビングへ直接アクセスでき、サーフィン仲間と楽しいパーティーを開いている時間をイメージしました
■2階
・寝室と子供部屋、納戸を配置
・寝室はクイーンサイズベットを置ける広さを確保し、クローゼットも併設
・子供部屋は各4.5畳確保
・バルコニー寝室用とパーティー用と分けており、どちらも吹抜けに面する事で明るくて開放感があり、程よくプライバシーが守れるエリアとしました
34坪 3LDK関連の間取り
マドリー開発の『住宅営業支援ツール』
madreeデータバンク
マドリーの人気間取り4,800プランを接客・提案に活用できる営業支援ツール
- 競合他社と差がつく、スピード提案
- トレンド間取りで、集客・受注数UP
- 建築家のアイデアを参考に、質の高い提案ができる









