[30坪~33坪 3LDK] 家の真ん中に中庭を配置し開放感と外の繋がりを感じられる家の間取り
全国の建築家から間取りが集まるmadree(マドリー)で集まった30坪~33坪、3LDKの間取りです。オープンキッチンやアイランドキッチンが特徴の注文住宅の間取りです。
家の真ん中に中庭を配置し開放感と外の繋がりを感じられる家はこのような方におすすめです
家族構成 30代夫婦、子供2人(未就学児)
趣味:夫は釣り・ゲーム、妻はパン作り。夫婦共通の趣味は映画鑑賞。
家の真ん中に中庭を配置し開放感と外の繋がりを感じられる家の間取りアイデア
全国対応になりました
| 階数 | |
|---|---|
| 部屋数 | |
| 家族人数 | |
| 土地特徴 | |
| 特徴 | |
| 広さ | |
| 担当建築家・デザイナー |
建築家・デザイナー
からのコメント
【全体のコンセプト】
・中庭を敷地の真ん中に配置することで、隣地の建物に囲まれた敷地条件でも、開放感のある外部との繋がりを感じられる構成としています。
・中庭より東側を平屋、西側を2階建のボリュームとすることで、吹抜けを介さず、南・東からの採光を確保する計画としています。
【こだわりのポイント】
■1階
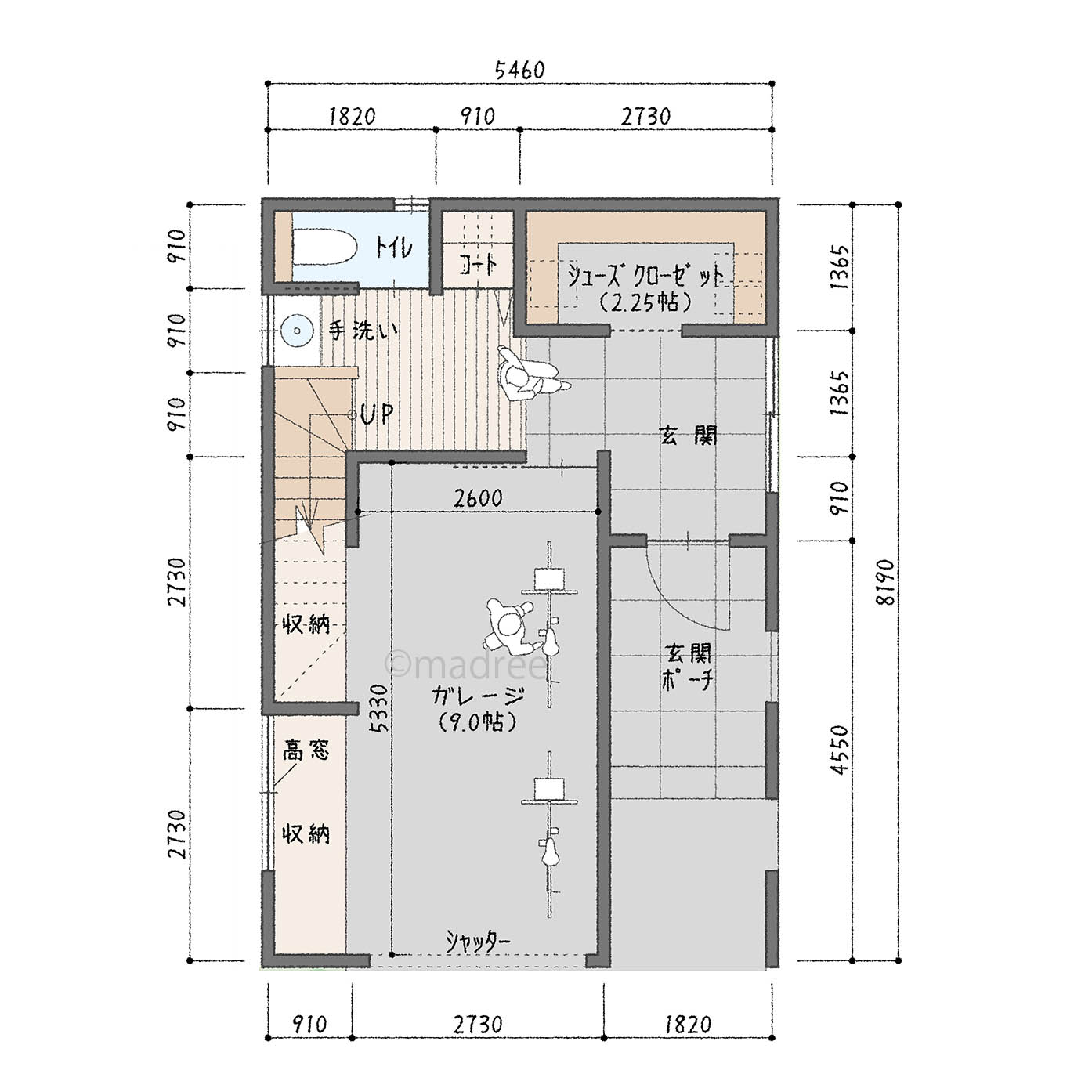
・玄関
アプローチを抜けて、玄関扉を開くと、中庭への視界が広がる開放的な玄関としています。
SICを兼ねた土間収納を併設すると共に、玄関に近い位置に洗面室・パントリーを設置し、帰宅後の手洗い・パントリーへの買物収納をスムーズに行える計画としています。
・LDK+和室
中庭の緑を感じられる配置とすると共に、掃出し窓を開けると外部と一体的に使用できる構成としています。
DK廻り・ソファ廻りに回遊動線を確保することで、生活する上でストレスのない動線計画としています。
お子様が小さい間は、DKの両脇と階段前にベビーゲートを設置することで、危険なキッチン・階段への侵入と収納を勝手に開けて物を取り出すという行動を防ぐことができます。
和室には間口の広い押入、DKにはFCLを含めた大容量の収納を確保しています。
■2階
・個室
寝室は中庭に面した東側に、子供部屋は隣地建物が平屋建の西側に向けて窓を設けることで、明るく開放的な構成としています。
子供部屋は将来間仕切で分割できる構成とすることで、お子様が小さい間は家族揃って子供部屋で寝る等、お子様の成長にあわせた可変性をもたせた計画としています。
子供部屋の上部には小屋裏収納を配置し、季節物や大きなモノの収納スペースを確保しています。
・廊下
廊下の突き当たりには開閉式の窓を設置し、風の通り道を確保しています。
30坪~33坪 3LDK関連の間取り
マドリー開発の『住宅営業支援ツール』
madreeデータバンク
マドリーの人気間取り4,800プランを接客・提案に活用できる営業支援ツール
- 競合他社と差がつく、スピード提案
- トレンド間取りで、集客・受注数UP
- 建築家のアイデアを参考に、質の高い提案ができる









