[45坪~49坪 3LDK] 機能性と空間で家族みんなの暮らしを楽しく心地よくしてくれる家の間取り
全国の建築家から間取りが集まるmadree(マドリー)で集まった45坪~49坪、3LDKの間取りです。オープンキッチンやアイランドキッチンが特徴の注文住宅の間取りです。
機能性と空間で家族みんなの暮らしを楽しく心地よくしてくれる家はこのような方におすすめです
夫:20代,妻30代、子供1人(3人予定)
趣味:夫は山登り,アウトドアが趣味。自宅でもキャンプやバーベキューをしたい。また,お酒を飲むのも好きでウイスキーを集めている。
妻は料理やお菓子づくりが好き。夫婦ともに休日には友人を招いてワイワイするのが好き。
機能性と空間で家族みんなの暮らしを楽しく心地よくしてくれる家の間取りアイデア
全国対応になりました
| 階数 | |
|---|---|
| 部屋数 | |
| 家族人数 | |
| 土地特徴 | |
| 特徴 | |
| 広さ | |
| 担当建築家・デザイナー |
建築家・デザイナー
からのコメント
【こだわりのポイント】
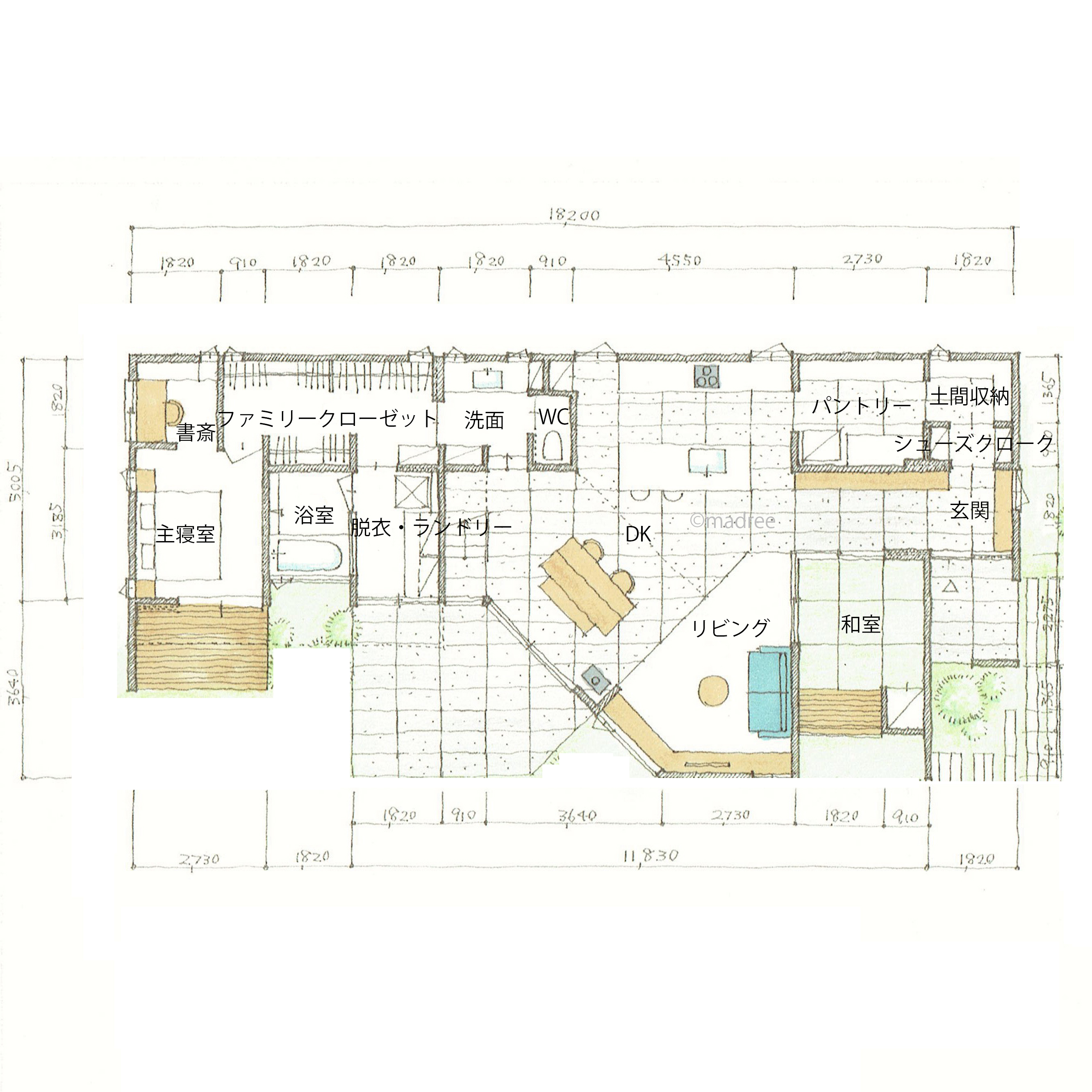
■1階
・配置・外構 安全性に考慮し、道路に直交して駐車場を配置し車路を介してのアクセスとしました。
・2台分のインナーガレージは十分な広さと収納を確保しました。
・車路はコンクリート平板とグランドカバー(芝、ダイカンドラなど)による舗装として、日々ご家族を迎える前庭・アプローチ空間として魅力あるスペースとしました。
・お子様の遊び場として、自転車に乗ったり、ボール遊びをしたり、時にはテントを張ってキャンプ気分を楽しんだり、暑い夏にはプールを出して水遊びをしたり、アクティブな庭として利用できるようにしました。
・建物配置は敷地周辺環境(南側隣地の車)を考慮し、取り込む風景の軸を南西にとって、LDKを45°ふっています。
・1階にはLDKと和室、主寝室、水周りを配置しています。
・ガレージから玄関へは雨に濡れずにアクセスできるよう屋根をかけています。
・玄関の土間はシューズクローク→土間収納→パントリー、LDKに2通りの動線で連続します。
・ダイニングも土間空間としてリビングとの真ん中に薪ストーブを配置しました。
・軽やかなスチール階段と吹抜けによって、光あふれるダイナミックな空間となっています。
・ステンレスのアイランドキッチンはリビング・ダイニング・和室まで見通せるので、ご家族の様子を眺めつつ料理をすることができます。
・リビングは土間から400mm床を上げた小上がりとして、床座の居心地のよいコーナーとしました。
・リビングと段差なしに和室を隣接させています。
・床の素材・高さの違いとリビング・ダイニングを45°ふったことにより、動きのある変化に富んだ空間となっています。
・LDKの奥に洗面→クローゼット→脱衣→浴室と水周りの各室を無駄なくレイアウトしています。
・脱衣室には、洗濯機置場、脱衣収納を設けています。
・脱衣収納は吊り戸棚と下部キャビネットに分け、キャビネット上部カウンターを作業台として利用できるようにしました。
・脱衣、浴室の天井に物干し金物と乾燥換気扇を設けて部屋干しできるようにしています。
・浴室は洗面とガラスで間仕切り、広がりのある水周り空間を演出しています。
・クローゼットの奥に主寝室を配置しています。
・主寝室に隣接して書斎を設けています。
■2階
・2階には子供部屋、WCを配置しています。
・廊下には3.6mの長さを持つデスクカウンターと本棚、収納を設け、お子様の共有のスタディコーナーとしています。
・子供部屋は将来間仕切りできるよう左右対称のレイアウトになっています。
※間口奥行きにガレージ含まず。
45坪~49坪 3LDK関連の間取り
マドリー開発の『住宅営業支援ツール』
madreeデータバンク
マドリーの人気間取り4,800プランを接客・提案に活用できる営業支援ツール
- 競合他社と差がつく、スピード提案
- トレンド間取りで、集客・受注数UP
- 建築家のアイデアを参考に、質の高い提案ができる









