[39坪~42坪 4LDK] ストレスフリーの快適家事ラク動線で充実した暮らしにゆとりが持てる家の間取り
全国の建築家から間取りが集まるmadree(マドリー)で集まった39坪~42坪、4LDKの間取りです。オープンキッチンやペニンシュラキッチンが特徴の注文住宅の間取りです。
ストレスフリーの快適家事ラク動線で充実した暮らしにゆとりが持てる家はこのような方におすすめです
共働き30代夫婦、子ども2人(4歳、1歳) 犬1匹
趣味:バスケットボール、テレビで映画を見たり、犬の散歩、料理
ストレスフリーの快適家事ラク動線で充実した暮らしにゆとりが持てる家の間取りアイデア
全国対応になりました
| 階数 | |
|---|---|
| 部屋数 | |
| 家族人数 | |
| 土地特徴 | |
| 特徴 | |
| 広さ | |
| 担当建築家・デザイナー |
建築家・デザイナー
からのコメント
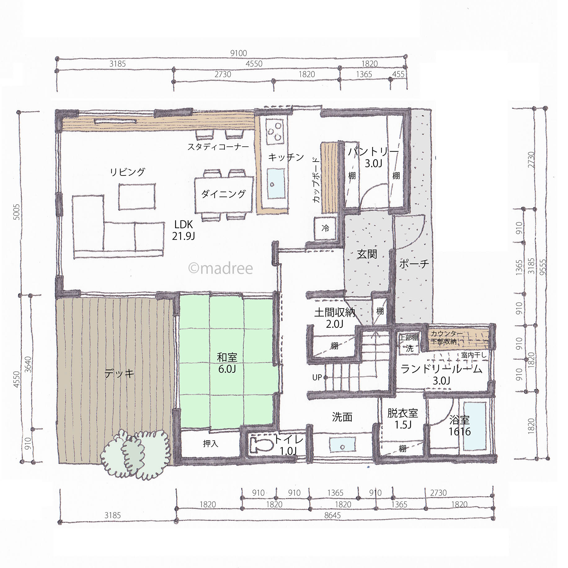
【全体のコンセプト】
・駐車スペースについてですが、ご両親やお客様がいらっしゃる際には縦列駐車にて停められるよう、普段使わないスペースをできるだけ少なくできるよう考えました。
・風水についてですが、玄関や水廻りについては鬼門となる北東を(ギリギリですが・・・)避けるように計画しております。
・ひらけている南西方向にはリビングとデッキを配し、明るさを確保できるよう考えました。
【こだわりのポイント】
■1階
・玄関からは、ご家族専用動線を通り、土間収納から入ることができます。
・土間収納には、靴やアウターやベビーカーなどしまっておけます。
・玄関を挟んで反対側は、パントリーを通ってキッチンまで直接行けるので、お買い物帰りにも便利です。
・LDKは南西に配置し、一日を通して明るい空間となるよう考えました。
・そのままつながるデッキは、お子様やワンちゃんが遊んでいても、キッチンから見渡せます。
・お子様が小さいうちは1階の和室にてお休みになるとの事でしたので、6畳の広さを確保し、 布団がしまえるよう押入れを設けています。
・脱衣室やランドリールームには、タオルや下着などをしまえるよう収納棚を多くとっています。
・室内干しできるよう、ランドリーパイプを造り付け、梅雨や寒い時期でも気兼ねなくお洗濯できます。
■2階
・2階は各個室です。
・主寝室には作り付けのドレッサーをとっています。
・バルコニーは、ご家族分の布団が干せるよう、幅・奥行余裕をもって南側に配置しました。
39坪~42坪 4LDK関連の間取り
マドリー開発の『住宅営業支援ツール』
madreeデータバンク
マドリーの人気間取り4,800プランを接客・提案に活用できる営業支援ツール
- 競合他社と差がつく、スピード提案
- トレンド間取りで、集客・受注数UP
- 建築家のアイデアを参考に、質の高い提案ができる









