[31坪 3LDK] リビング一体の畳空間を多目的に活用、並行家事がしやすいコンパクト動線の家の間取り
全国の建築家から間取りが集まるmadree(マドリー)で集まった31坪、3LDKの間取りです。ウッドデッキやテラスが特徴の注文住宅の間取りです。
リビング一体の畳空間を多目的に活用、並行家事がしやすいコンパクト動線の家はこのような方におすすめです
・30代共働き夫婦、長男5歳、長女2歳
・趣味:読書
・畳空間を普段は物干しスペースとして、来客時は客間として使用したい。
・個室にこもらないようにしたいので、家族の気配を感じる子ども部屋にしたい。
リビング一体の畳空間を多目的に活用、並行家事がしやすいコンパクト動線の家の間取りアイデア
全国対応になりました
| 広さ | |
|---|---|
| 階数 | |
| 部屋数 | |
| 家族人数 | |
| 土地特徴 | |
| 特徴 | |
| 担当建築家・デザイナー |
建築家・デザイナー
からのコメント
【全体のコンセプト】
共働き夫婦の毎日の家事動線を考慮し、収納スペースもできるだけ確保することを考えました。
【こだわりのポイント】
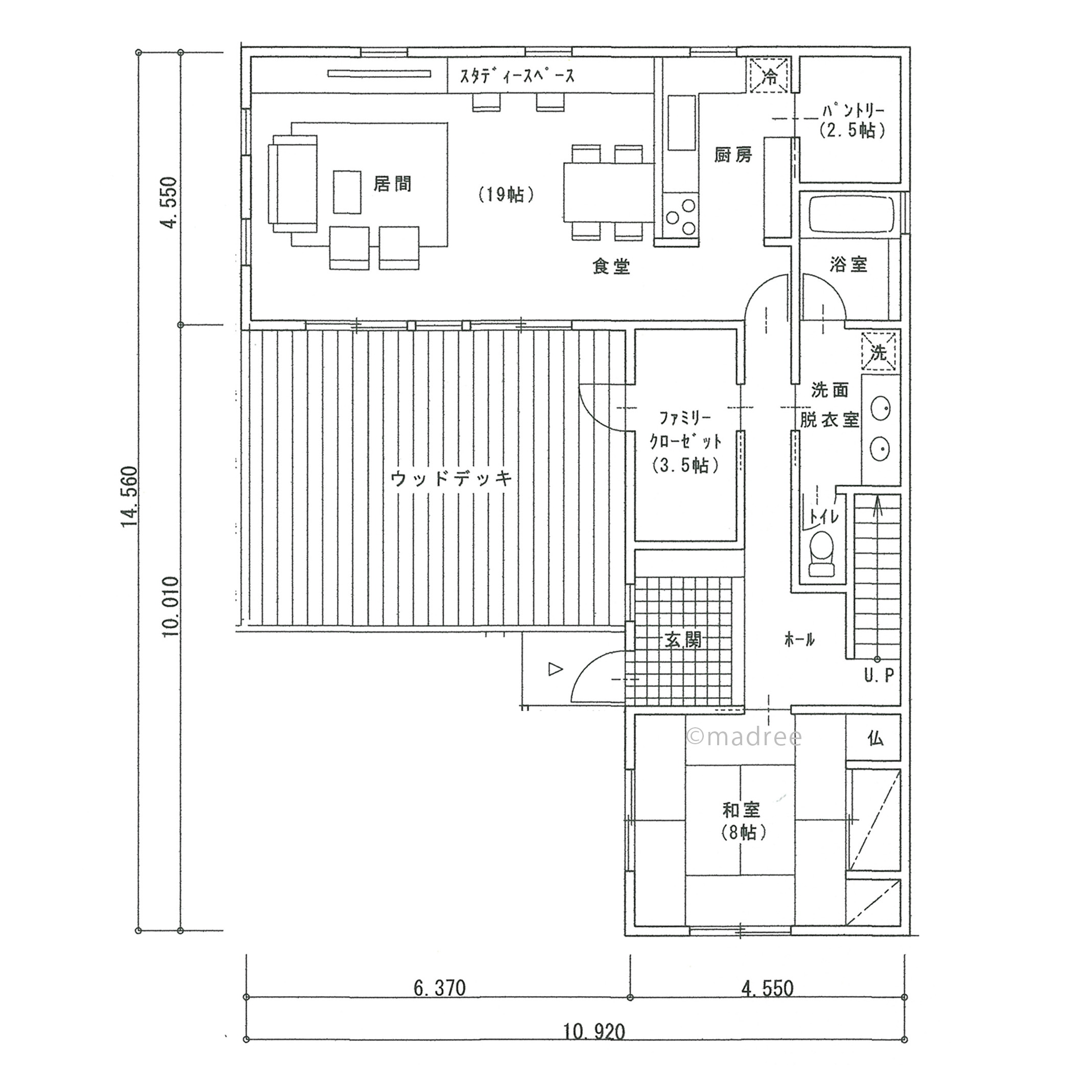
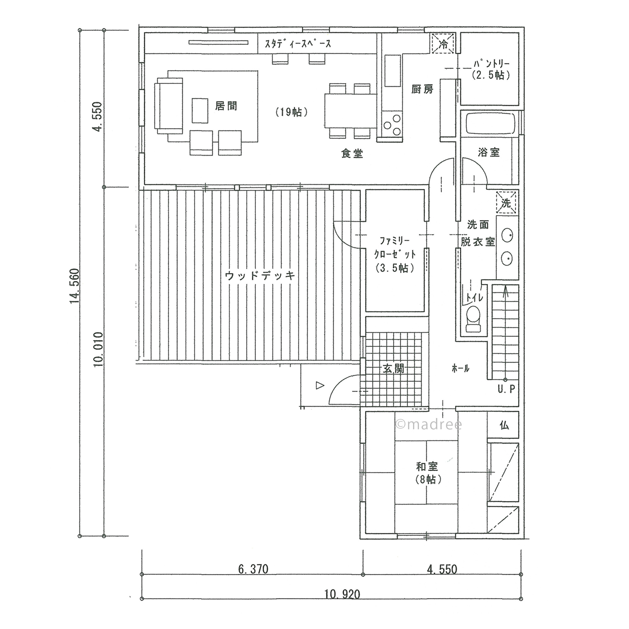
■1階
前面道路の開けた南西側にリビングを設け明るく風通しのよい配置に。防犯面も考慮し、車や人通りの多い西側の道路を避け、南側に玄関と車庫を配置しました。対面キッチンからはリビングや畳のお部屋が見渡せ、お子さんや家族の様子を見守りながら家事をすることができます。
■2階
お子さんは異性なので将来的にも別々の個室が必要ですね。こもりきりにならないよう、廊下側に小窓を設けました。スリガラスのようなものにして、直接は見えなくても人影は確認できるでしょう。室内にいても家族の気配を感じられます。
31坪 3LDK関連の間取り
マドリー開発の『住宅営業支援ツール』
madreeデータバンク
マドリーの人気間取り4,800プランを接客・提案に活用できる営業支援ツール
- 競合他社と差がつく、スピード提案
- トレンド間取りで、集客・受注数UP
- 建築家のアイデアを参考に、質の高い提案ができる









