開放感ある浴室の間取り一覧
家族や自分の”好き”を叶える注文住宅の間取りが見つかる!暮らしの要望をもとに全国の建築家が作成した開放感ある浴室の間取りを577件公開しています。毎日更新中!
-
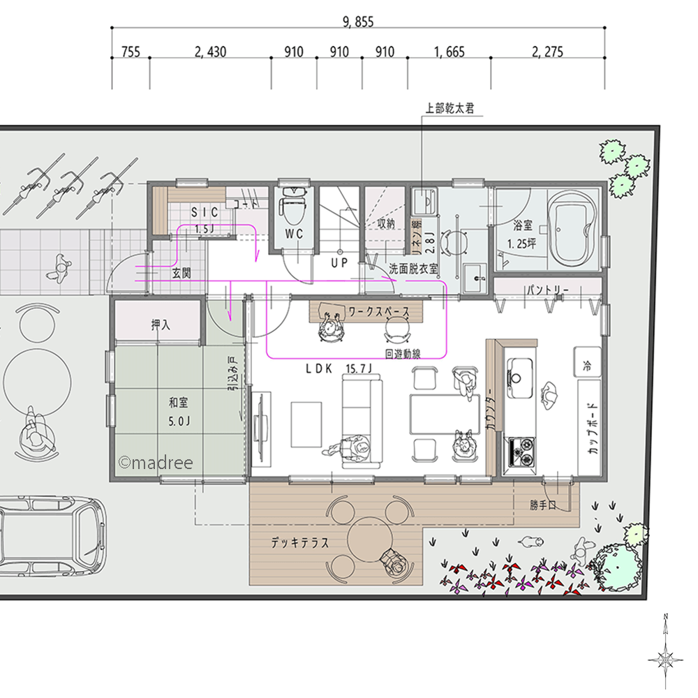
- 34坪
- 2LDK
キッチンからの回遊動線がゆとり獲得の鍵、一直線の水廻りで家事も身支度もゆったりの家
-
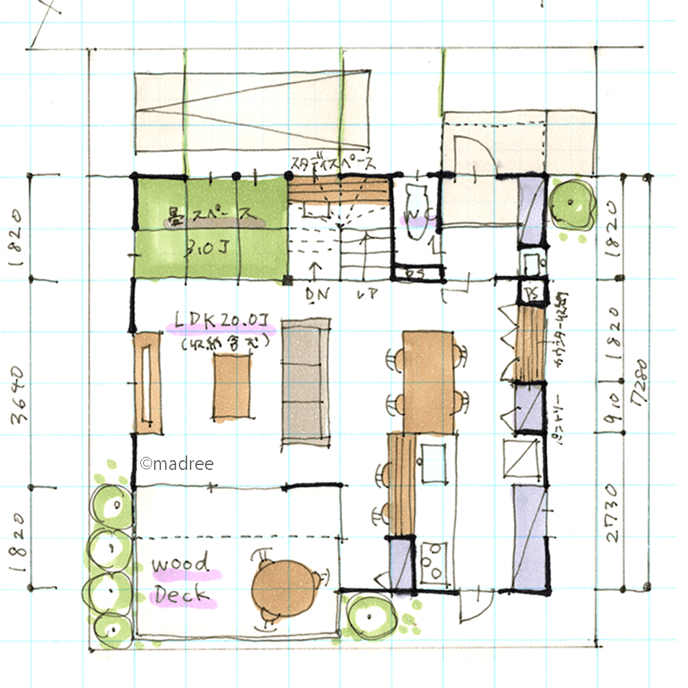
- 40坪
- 4LDK
コンパクトでもスッキリな充実収納、近隣を気にせず屋上テラスでアウトドア時間過ごす家
-
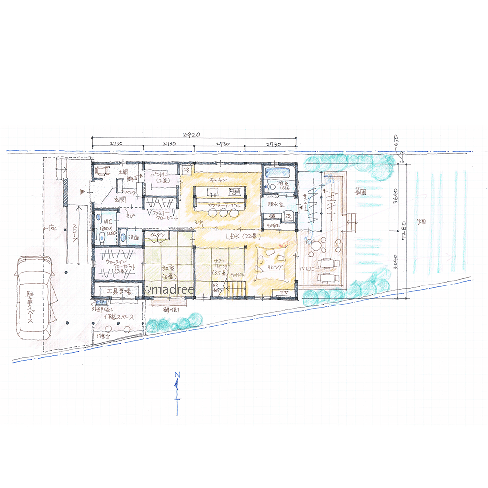
- 45坪~49坪
- 4LDK
効率的な回遊動線で家事が充実、吹抜とテラスからの光で明るい2階LDKの家
-
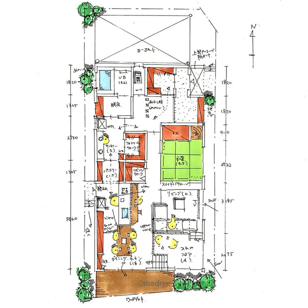
- 34坪
- 3LDK
縦横に繋がる吹抜の遊び場、お互いに落ち着く場所のある猫と一緒に暮らす家
-
- 49坪
- 3LDK
キッチン裏のゆったり水廻りと収納力で、ストレスフリーな家事叶える家
-
- 59坪
- 4LDK
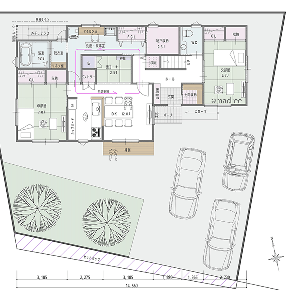
緑豊かな庭で季節の移ろい感じる、凸凹変形地をうまく活用した二世帯住宅
-
- 33坪
- 4LDK
一直線の水廻りで時短家事、趣味楽しむリラックススペースのある家
-
- 39坪
- 3LDK
収納を充実させた回遊できる家事動線、一体感が心地良い庭と眺望を楽しむ家
-
- 37坪
- 4LDK
お年頃の子どもが自由に友達を呼べる、家族のプライバシーと繋がり感を叶えた家
-
- 42坪
- 4LDK
目線が合うキッチンで会話が弾む、人が集まるリゾートホテルライクな家
-
- 49坪
- 3LDK
スキップフロアや雲梯で好奇心育む、子ども達が心身ともに成長できる家
-
- 27坪〜30坪
- 3LDK
廊下も階段下も無駄なく活用、南側に開放感のあるリビング時間を満喫できる家
-
- 61坪
- 6LDK
自分らしい豊かなセカンドライフを送る、生活感をoffしたキッチンが主役の家
-
- 41坪
- 3LDK
縦長地を生かした奥行きある眺望、余裕ある広さで介護もしやすい同居予定の二世帯住宅
-
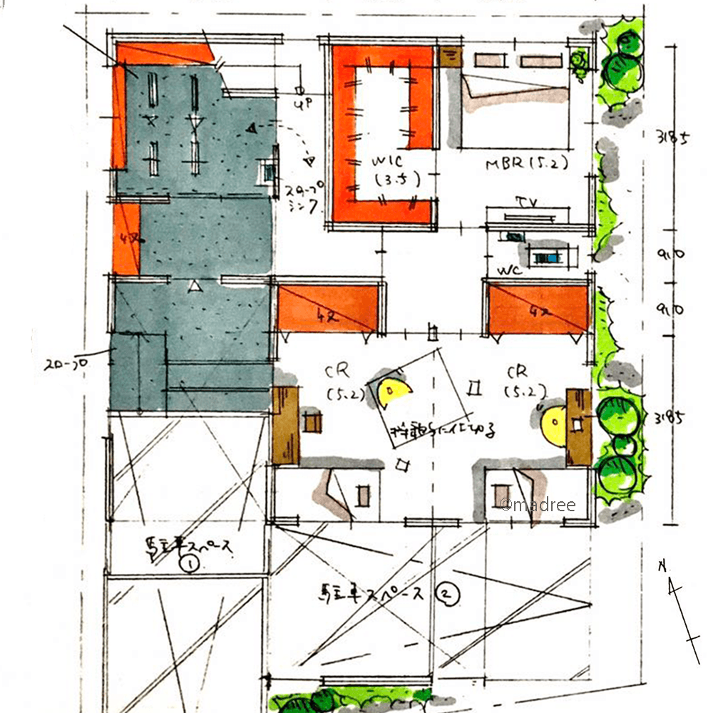
- 45坪
- 4LDK
成長に合わせた空間演出、回遊性はそのままにレイアウトで変化を楽しむ家
-
- 49坪
- 4LDK
友人が気軽に遊びに来て泊まれる、人との繋がりを大切にしたおもてなし上手の家
-
- 45坪
- 4LDK
自然光がたっぷり入るリビングに家族集う、多収納で生活感をまるっと隠せる平屋
-
- 36坪
- 2LDK
家事と収納をキッチンまわりに集約、明るい2階アウトドアリビングの家
-
- 31坪
- 4LDK
コンパクトな動線で時短家事、デッキと繋がる広々リビングで家族がゆったり過ごす家
-
- 42坪
- 3LDK
帰宅後の片付けが裏動線で習慣になる、急な来客でも困らない散らかるゾーンを隠せる家
-
- 38坪
- 5LDK
エアコンがなくても風通し良好、アルコーブでのプライベート時間を楽しむ二世帯住宅
-
- 27坪〜30坪
- 5LDK
スムーズなおもてなし動線で気軽にお泊りできる、人が自然と集まる賑やかな家
-
- 41坪
- 4LDK
コンパクトに繋がる生活動線、高齢・介護を見据えた無理なく家事をこなせる家
-
- 25坪
- 2LDK
おうちアウトドアの準備がサクッとできる、キッチンとリビングから繋がるウッドデッキのある家
マドリー開発の『住宅営業支援ツール』
madreeデータバンク
マドリーの人気間取り4,800プランを接客・提案に活用できる営業支援ツール
- 競合他社と差がつく、スピード提案
- トレンド間取りで、集客・受注数UP
- 建築家のアイデアを参考に、質の高い提案ができる
