リビング階段の間取り一覧
家族や自分の”好き”を叶える注文住宅の間取りが見つかる!暮らしの要望をもとに全国の建築家が作成したリビング階段の間取りを1160件公開しています。毎日更新中!
-
- 39坪~42坪
- 4LDK
デッキで繋がるLDKと和室の開放感と家事裏動線の空間分けでメリハリある暮らしが叶う間取り
-
- 33坪~36坪
- 4LDK
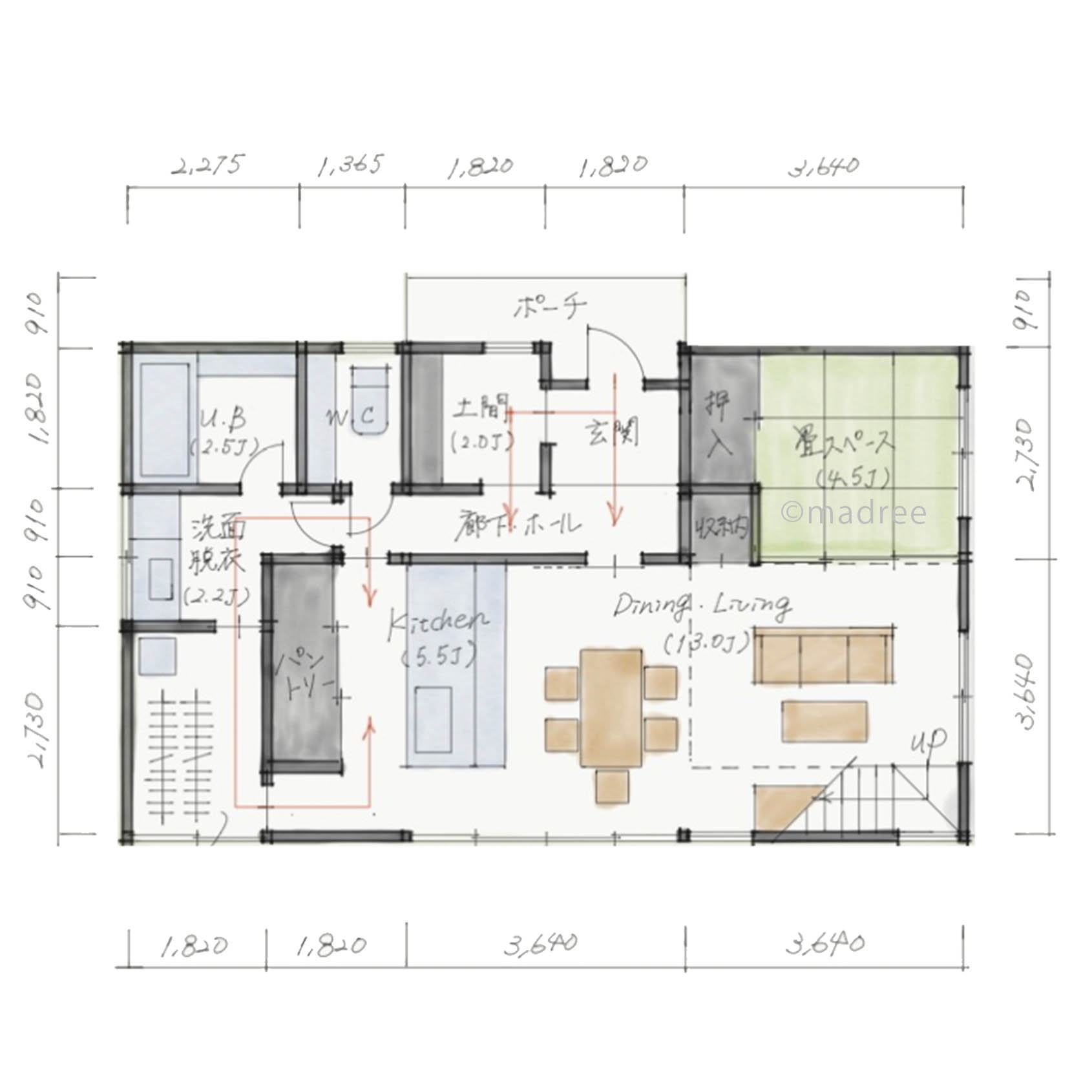
東西に長い回遊動線で日々の暮らしがスムーズになる日当たり良いほぼ平屋
-
- 36坪
- 4LDK
適材適所の収納とスムーズな洗濯が叶う家事ラク動線で暮らしが整う間取り
-
- 50坪以上
- 4LDK
フロアごとに暮らしが充実しrやすさが詰まった音楽練習室のある3階建ての家
-
- 36坪~39坪
- 4LDK
開放性の高い家族空間もプライバシーを確保した個々の空間も両立した5人家族が快適に過ごせる間取り
-
- 37坪
- 4LDK
ストレスフリーな洗濯動線で快適に家事をこなしつつ開放感あるLDKでゆったり寛げる間取り
-
- 39坪~42坪
- 5LDK
家族それぞれが暮らしやすい適材適所の空間と動線で心地良く過ごせる家
-
- 26坪
- 3LDK
狭小地を広々使える工夫が詰まったシンプル家事動線で暮らしやすく木の温もり感じられる家
-
- 45坪~49坪
- 5LDK
キッチンからのウォークスルー家事動線と開放的なLDK・セカンドリビングで子育てしやすい家
-
- 36坪~39坪
- 4LDK
外干し部屋干しOKの洗濯動線と買い物帰宅動線の快適性で暮らしがスムーズになる家
-
- 42坪~45坪
- 4LDK
採光たっぷり!キッチン中心の回遊動線で家事がどんどん捗る3階建の家
-
- 27坪〜30坪
- 2LDK
思わず家族が集まりたくなる開放感と居心地の良さが叶うLDKと繋がる吹き抜けで子育てしやすい間取り
-
- 36坪~39坪
- 4LDK
自然の光が優しく差し込むステップフロアでゆるく区切られたLDKと家事ラク動線で暮らしが整う間取り
-
- 24坪~27坪
- 2LDK
コンパクトながら機能性をぎゅっと詰め込んだ堀座卓でのんびり寛げる家
-
- 45坪~49坪
- 4LDK
真ん中LDKで家族が繋がる庭とデッキを囲んだL字型平屋の間取り
-
- 45坪~49坪
- 4LDK
生活シーン毎にフロアを分けつつスムーズな動線で子育てもしやすいほぼ真四角の家
-
- 27坪〜30坪
- 3LDK
光が差し込む中庭で明るく快適に過ごせる縦長の間取り
-
- 27坪〜30坪
- 1LDK
猫3匹と心地良く過ごせるコンパクトでありながら機能的な間取り
-
- 34坪
- 3LDK
趣味も家事も広々楽しめる!採光と眺望の良いサーファーズハウス
-
- 39坪~42坪
- 3LDK
廊下の代わりにウォークスルーのファミクロ!収納充実で家中スッキリ間取り以上に広く感じる家
-
- 27坪〜30坪
- 2LDK
隠す収納で家中スッキリ!縦長敷地を活かしたレイアウトで生活感を見せずに暮らせる家
-
- 45坪~49坪
- 5LDK
2つの和室で寛ぎながら吹き抜けで家族を繋がる!暮らしやすい家事動線で心にゆとりが生まれる家
-
- 33坪~36坪
- 3LDK
趣味にフィットした動線で快適に楽しめるサーファーズハウスの間取り
-
- 36坪
- 3LDK
細長敷地に暮らしやすさを詰め込んだ二世帯バリアフリーの採光ある間取り
マドリー開発の『住宅営業支援ツール』
madreeデータバンク
マドリーの人気間取り4,800プランを接客・提案に活用できる営業支援ツール
- 競合他社と差がつく、スピード提案
- トレンド間取りで、集客・受注数UP
- 建築家のアイデアを参考に、質の高い提案ができる
