南向き庭の間取り一覧
家族や自分の”好き”を叶える注文住宅の間取りが見つかる!暮らしの要望をもとに全国の建築家が作成した南向き庭の間取りを951件公開しています。毎日更新中!
-
- 39坪
- 4LDK
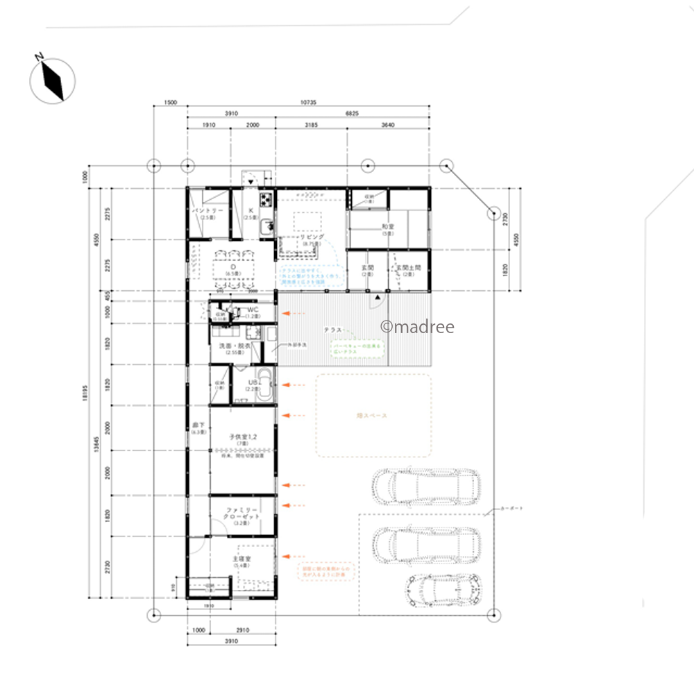
家事動線がよく、プライバシーを確保できる平屋
-
- 26坪
- 2LDK
家族で楽しめる庭と、ほっと落ち着くリビングの平屋
-
- 27坪
- 2LDK
キッチン中心の便利な生活動線で、遊び心のある平屋の終いの棲家
-
- 33坪
- 3LDK
緑豊かな広いテラスで、収納たっぷり片付く平屋
-
- 27坪
- 3LDK
明るく暖かく気分ほっこり、家族が自然とリビングに集まる平屋
-
- 35坪
- 3LDK
パブリックとプライベートを中庭で分け、光と風を招き入れる平屋
-
- 42坪
- 4LDK
無駄な動きのない生活動線で、共働き夫婦に余裕与える平屋
-
- 31坪
- 3LDK
リビングは離れで特別感を、遊びのきいたユニークな平屋
-
- 27坪
- 2LDK
ロフトを孫の遊び場に、リタイア後にちょうどいい平屋の終の棲家
-
- 66坪
- 5LDK
庭と繋がる広々LDKで、家族の気配感じる家
-
- 31坪
- 3LDK
家族が自然と集うLDK、全居室明るい平屋
-
- 33坪
- 4LDK
回遊動線でテキパキ家事、各所に収納工夫ある平屋
-
- 25坪
- 3LDK
日当たり良いLDKで家族団欒、子どもと伸び伸び暮らす平屋
-
- 31坪
- 3LDK
家事効率の良い、独立型キッチンの平屋
-
- 27坪〜30坪
- 3LDK
四季を感じる広いテラスと庭がある平屋
-
- 40坪
- 3LDK
変形地を有効活用、複数リビングで愉しい平屋
-
- 33坪
- 3LDK
玄関のプライバシーを配慮し、使い勝手良い生活動線の平屋
-
- 34坪
- 3LDK
明るい吹抜リビングで、回遊性ある家事動線の家
-
- 33坪
- 4LDK
便利な回遊動線で、たっぷり収納の平屋
-
- 27坪
- 3LDK
母子のコミュニケーションが増える、充実したLDKの平屋
-
- 31坪
- 3LDK
採光良いL型間取りで、家族がリビングに集まる平屋
-
- 30坪
- 2LDK
夫婦二人でゆっくり過ごす平屋の家
-
- 39坪
- 4LDK
回遊性ある広いキッチンで、庭の景色を楽しむ平屋
-
- 50坪
- 3LDK
ストレスフリー介護で家庭円満、明るいリビングに3世代集う平屋の二世帯住宅
マドリー開発の『住宅営業支援ツール』
madreeデータバンク
マドリーの人気間取り4,800プランを接客・提案に活用できる営業支援ツール
- 競合他社と差がつく、スピード提案
- トレンド間取りで、集客・受注数UP
- 建築家のアイデアを参考に、質の高い提案ができる
