一部2階建の間取り一覧
家族や自分の”好き”を叶える注文住宅の間取りが見つかる!暮らしの要望をもとに全国の建築家が作成した一部2階建の間取りを1017件公開しています。毎日更新中!
-
- 33坪
- 3LDK
天候を気にしない安心感、ガレージから屋根付きポーチへ楽に荷下ろしできる家
-
- 37坪
- 3LDK
通り道の収納が家事楽のポイント、衣類も小物もサッと隠せるファミクロのある家
-
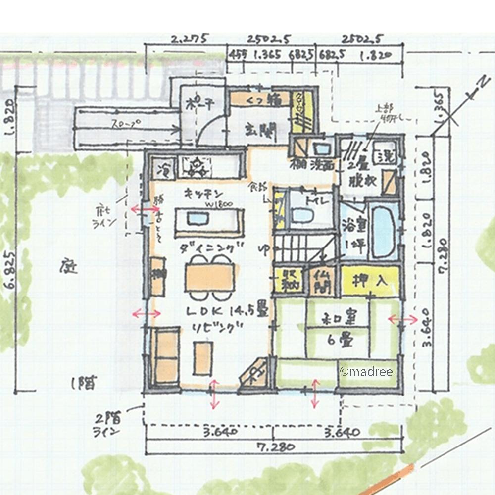
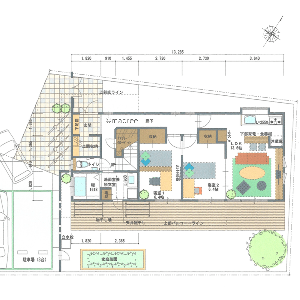
- 42坪
- 6LDK
視線カットでプライベート感を創り出す、家族のつながりを感じる回遊LDKの家
-
- 21坪〜24坪
- 3LDK
家族それぞれの家時間を充実させる、大人3人で明るく暮らすコンパクトな家
-
- 39坪
- 4LDK
生活感隠してサクサク捗るキッチン裏の家事動線、LDKから海を楽しむ大開口窓の家
-
- 38坪
- 4LDK
視線を気にせずにのんびり過ごせる、家族それぞれが居心地良い空間を見つけられる家
-
- 32坪
- 2LDK
眺望を活かした空間で毎日気持ち良くお洗濯、吹抜に面した2階サンルームのある家
-
- 41坪
- 3LDK
LDKは通らず玄関からまず水廻りへ!思い切り遊んだ後でもすぐにサッパリできる家
-
- 35坪
- 3LDK
キッチンから望む緑の趣味スペース、庭で家庭菜園もサッカー練習も楽しめる家
-
- 26坪
- 2LDK
フレキシブルな子ども部屋活用、間仕切りをなくすと2階がLDKの大空間になる家
-
- 33坪
- 4LDK
将来的にワンフロアで生活かつ夫婦別寝、ライフスタイルに寄り添う柔軟な家
-
- 50坪
- 2LDK
さくっと片付く家事動線と収納で、テラス越しに外界を取り込むのびやかな家
-
- 47坪
- 6LDK
家族それぞれに癒しの篭り空間、パーソナルスペースで充実の時間を過ごす注文住宅
-
- 38坪
- 4LDK
土間収納から適所にサッと荷下ろし、時短家事で生まれたゆとり時間を楽しむ家
-
- 39坪
- 3LDK
行き止まりなく屋内外へ動線繋がる、空間を無駄なく活用した回遊性のある家
-
- 39坪
- 4LDK
3WAY玄関で各所にサクサク動ける、身も心もスッキリ整う片付け上手の帰宅動線の家
-
- 39坪
- 2LDK
グリーンの目隠しでのびのび遊べ、2つのデッキから光溢れる陽だまりリビングの家
-
- 36坪
- 4LDK
森の小道のような癒しの玄関アプローチ、中央玄関から2つの庭へ眺望の広がる家
-
- 35坪
- 3LDK
少し離れた落ち着くリビングで、のんびり家時間を満喫できる空間変化のある家
-
- 40坪
- 4LDK
大きなキッチンカウンターが主役、家族で食事を楽しむ伸びやかな家
-
- 32坪
- 3LDK
のびのび過ごす子どもをそっと見守る、親子の距離が程よい温かみある家
-
- 42坪
- 3LDK
ダイナミックな吹抜から光溢れる、気持ち良くゲストをお迎えする店舗兼用の家
-
- 46坪
- 3LDK
視線が外に抜けるように意識した、北東の景色を望む2階リビングの家
-
- 46坪
- 4LDK
旅館のような回廊で母屋へ繋がる、L字型のLDKから縦に外に自然を感じられる平屋
マドリー開発の『住宅営業支援ツール』
madreeデータバンク
マドリーの人気間取り4,800プランを接客・提案に活用できる営業支援ツール
- 競合他社と差がつく、スピード提案
- トレンド間取りで、集客・受注数UP
- 建築家のアイデアを参考に、質の高い提案ができる
