南向き庭の間取り一覧
家族や自分の”好き”を叶える注文住宅の間取りが見つかる!暮らしの要望をもとに全国の建築家が作成した南向き庭の間取りを952件公開しています。毎日更新中!
-
- 42坪
- 4LDK
目線が合うキッチンで会話が弾む、人が集まるリゾートホテルライクな家
-
- 31坪
- 2LDK
お互いを尊重したペットとの生活、テリトリーを守りながら人も猫も快適に過ごす家
-
- 38坪
- 3LDK
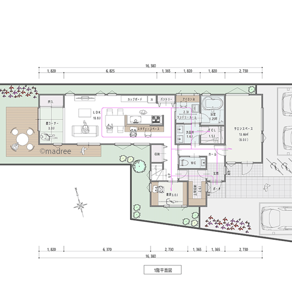
仕事とプライベートを空間で切り替え、来客と動線の交わらないサロン併用の家
-
- 42坪
- 3LDK
趣味を楽しむ時間が増える、効率的な回遊動線で家事時間を軽減できる家
-
- 27坪〜30坪
- 3LDK
廊下も階段下も無駄なく活用、南側に開放感のあるリビング時間を満喫できる家
-
- 61坪
- 6LDK
自分らしい豊かなセカンドライフを送る、生活感をoffしたキッチンが主役の家
-
- 69坪
- 3LDK
各階ともに造作棚でオシャレに魅せる、廊下を省いたコンパクト動線の2.5世帯住宅
-
- 38坪
- 4LDK
庭の緑と光をたっぷり取り込み、のびのび過ごせる耐震性に優れた家
-
- 32坪
- 4LDK
眺望も楽しむ癒しのワークスペース、収納たっぷり角部屋ホームライブラリーのある家
-
- 41坪
- 3LDK
縦長地を生かした奥行きある眺望、余裕ある広さで介護もしやすい同居予定の二世帯住宅
-
- 39坪
- 5LDK
パントリーを介して水廻りへアクセス、家事も生活も回遊動線でLDKと繋がる家
-
- 45坪
- 4LDK
成長に合わせた空間演出、回遊性はそのままにレイアウトで変化を楽しむ家
-
- 44坪
- 4LDK
吹抜を介して自然と会話生まれる、パーソナル空間をブリッジ廊下で結ぶ家
-
- 32坪
- 3LDK
ぐるぐる家事動線で時間ロスなくす、災害に備えた家族の安全守る平屋
-
- 31坪
- 4LDK
コンパクトな動線で時短家事、デッキと繋がる広々リビングで家族がゆったり過ごす家
-
- 36坪
- 3LDK
玄関に続く発想自由な収納スペース、たくさんのアウトドア用品も土間でスッキリ整う二世帯住宅
-
- 42坪
- 3LDK
帰宅後の片付けが裏動線で習慣になる、急な来客でも困らない散らかるゾーンを隠せる家
-
- 38坪
- 5LDK
エアコンがなくても風通し良好、アルコーブでのプライベート時間を楽しむ二世帯住宅
-
- 34坪
- 2LDK
裏動線と多収納でしっかり生活感隠す、天窓と吹抜で家中に自然光が届く家
-
- 27坪〜30坪
- 5LDK
スムーズなおもてなし動線で気軽にお泊りできる、人が自然と集まる賑やかな家
-
- 41坪
- 4LDK
コンパクトに繋がる生活動線、高齢・介護を見据えた無理なく家事をこなせる家
-
- 34坪
- 4LDK
片付け迷子にならない充実収納、廊下もファミクロになるウォークスルーで整う家
-
- 43坪
- 3LDK
アウトドア後の片付けも楽しむ、ストレスなく外時間を過ごせる土間のある家
-
- 38坪
- 5LDK
生活空間をさっと仕切り目隠し、気軽に人を呼べるおもてなし上手の家
マドリー開発の『住宅営業支援ツール』
madreeデータバンク
マドリーの人気間取り4,800プランを接客・提案に活用できる営業支援ツール
- 競合他社と差がつく、スピード提案
- トレンド間取りで、集客・受注数UP
- 建築家のアイデアを参考に、質の高い提案ができる
