一列に並んだ水廻りの間取り一覧
家族や自分の”好き”を叶える注文住宅の間取りが見つかる!暮らしの要望をもとに全国の建築家が作成した一列に並んだ水廻りの間取りを403件公開しています。毎日更新中!
-
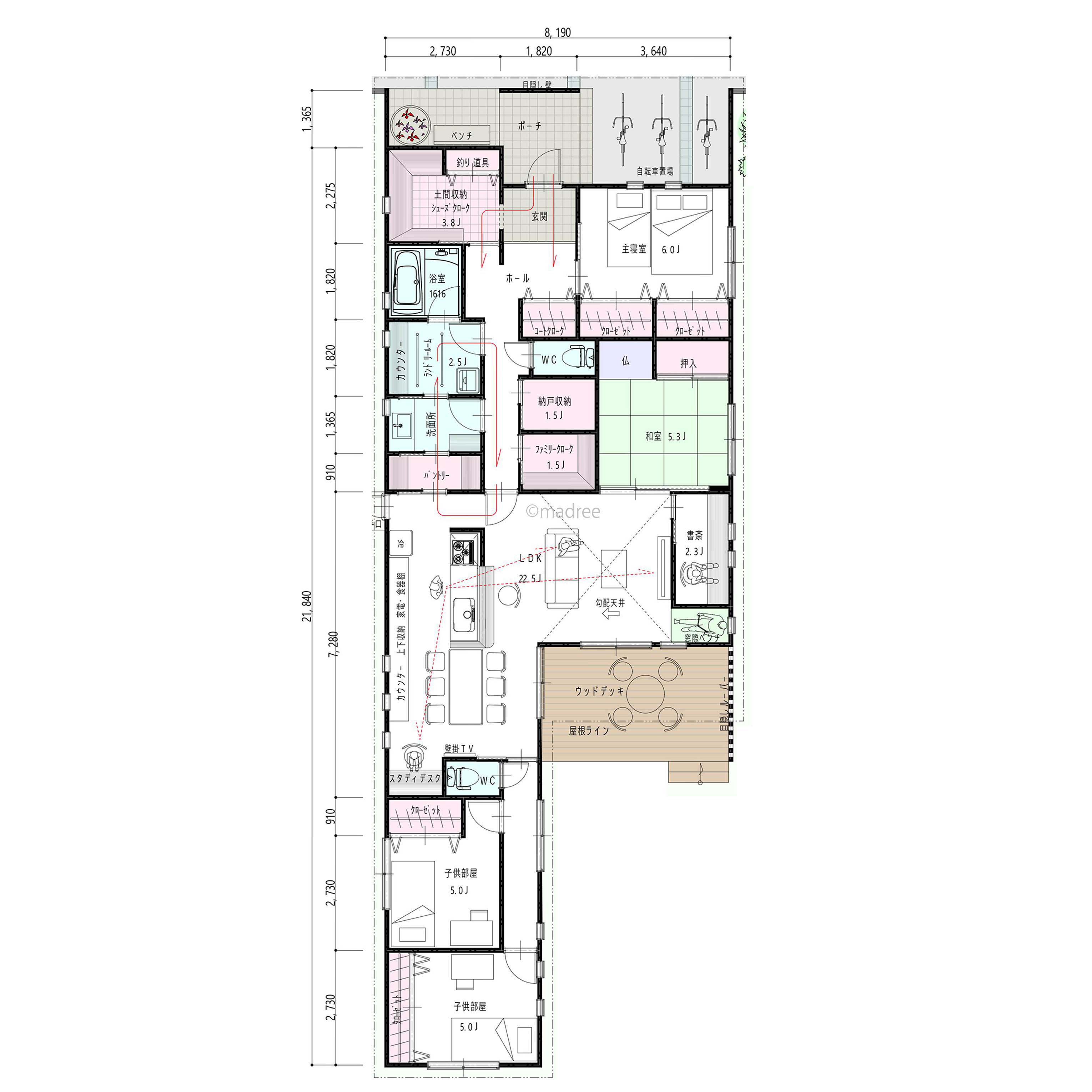
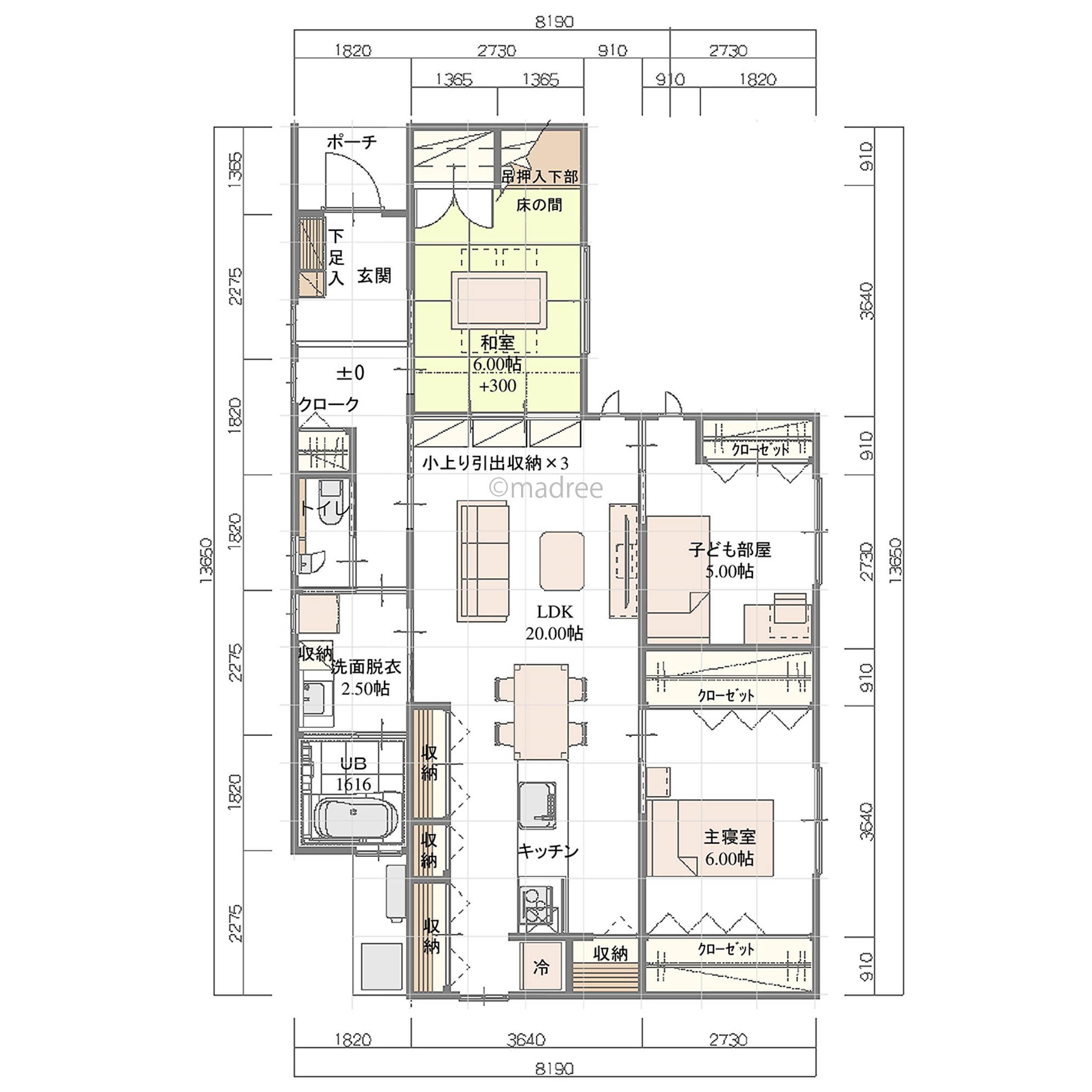
- 39坪~42坪
- 3LDK
プライベートスペースを分けて来客時も対応スムーズ!大きめキッチンで料理が楽しめる家
-
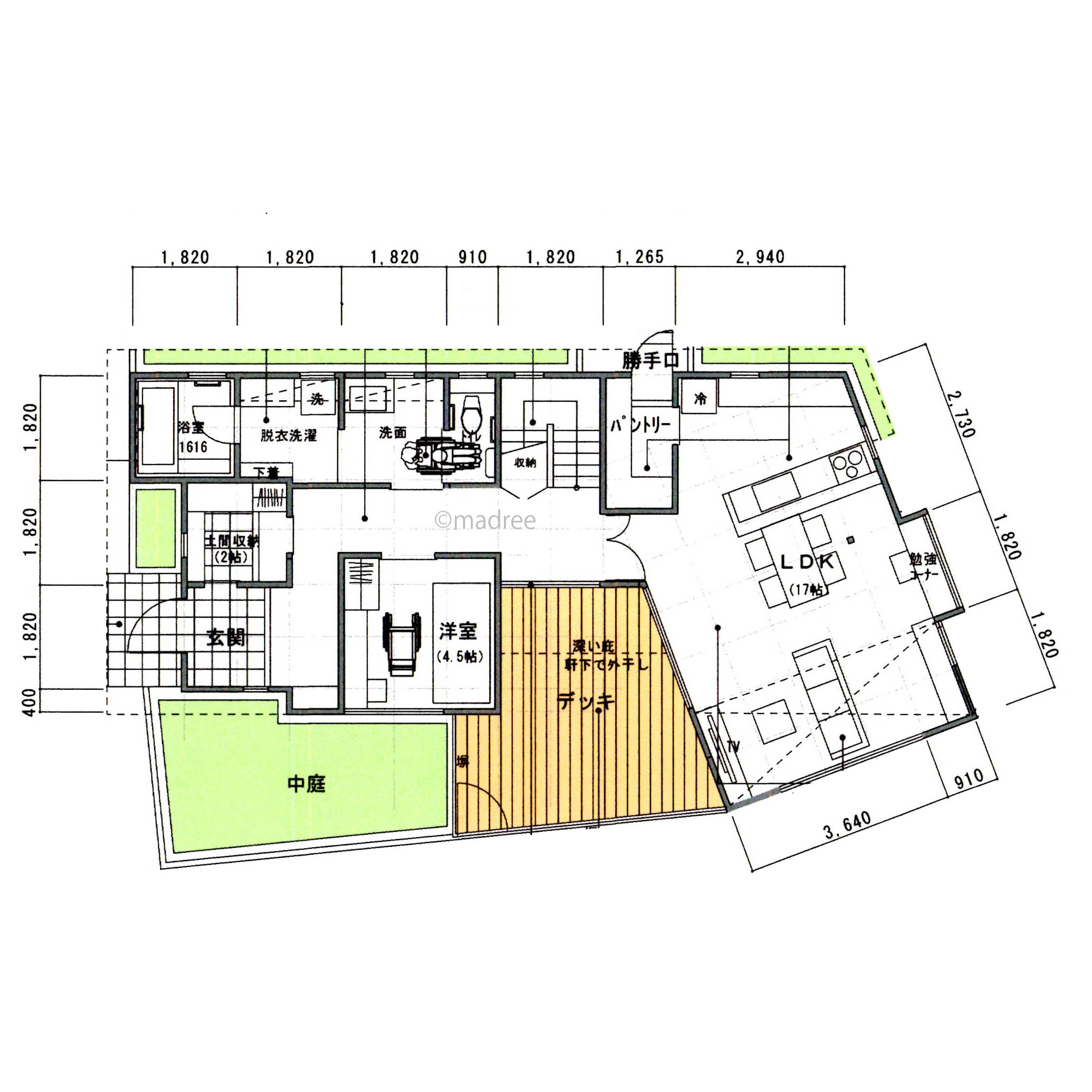
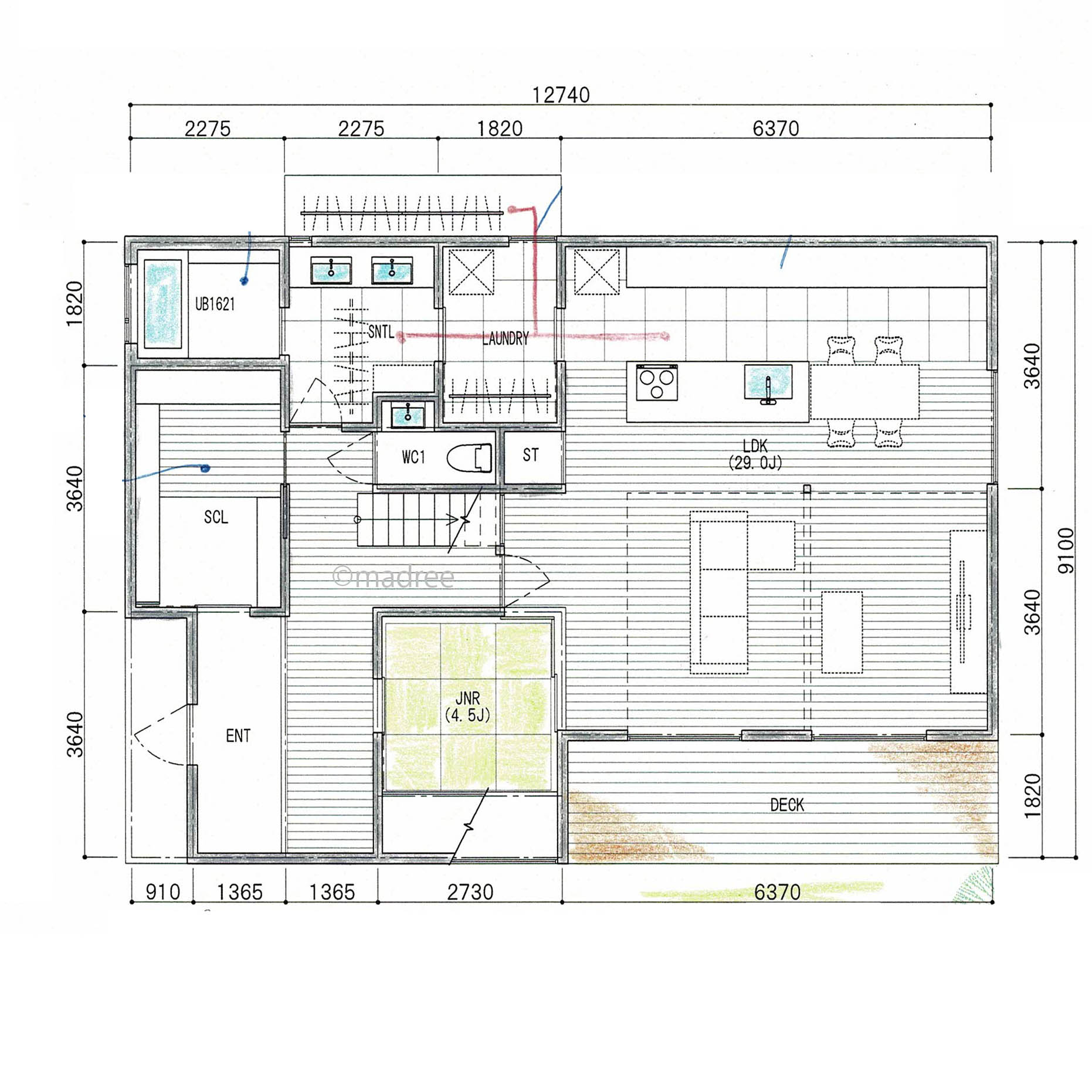
- 33坪~36坪
- 3LDK
一直線の水回りとキッチンで効率的な家事が叶う!家族が心地良く過ごせる空間が充実した家
-
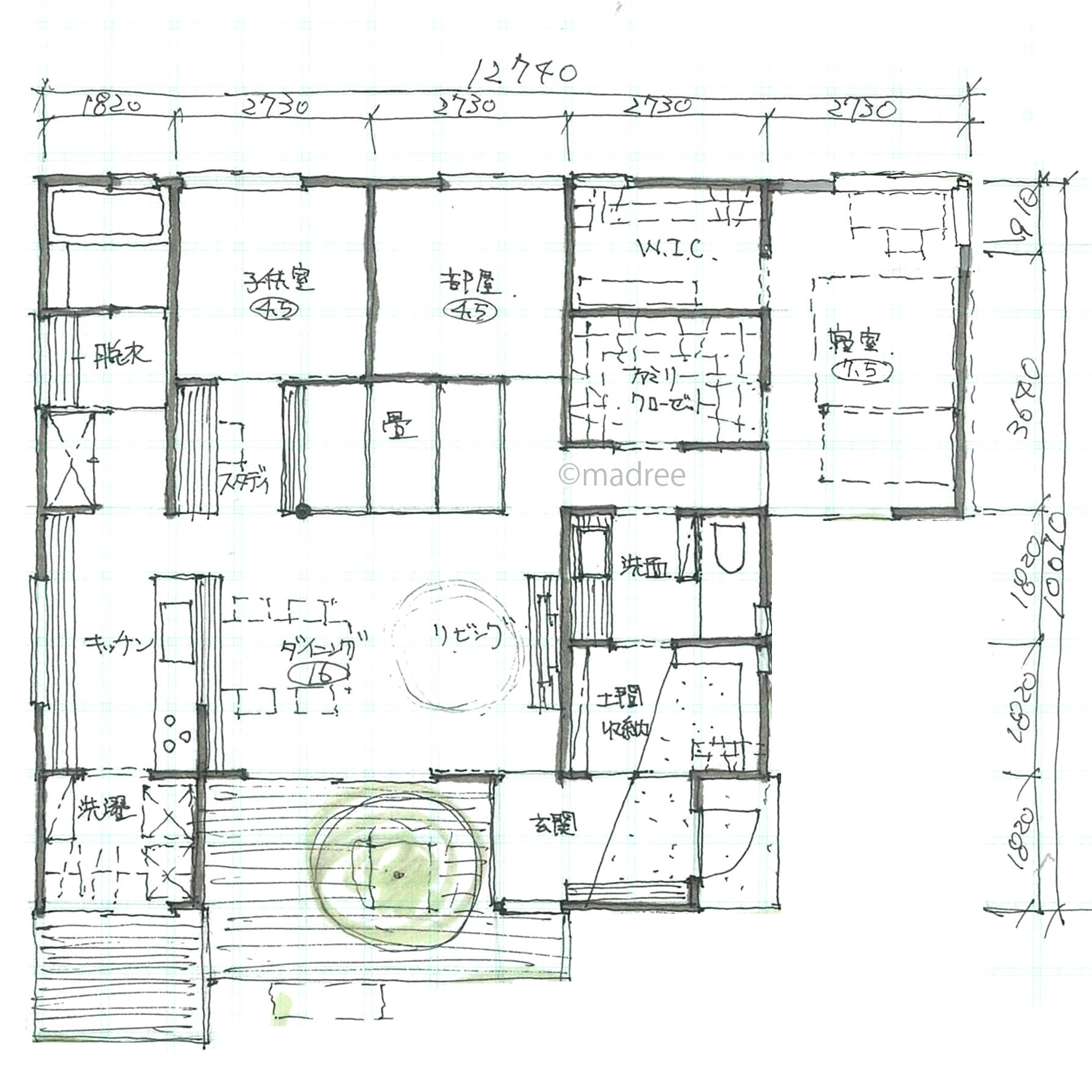
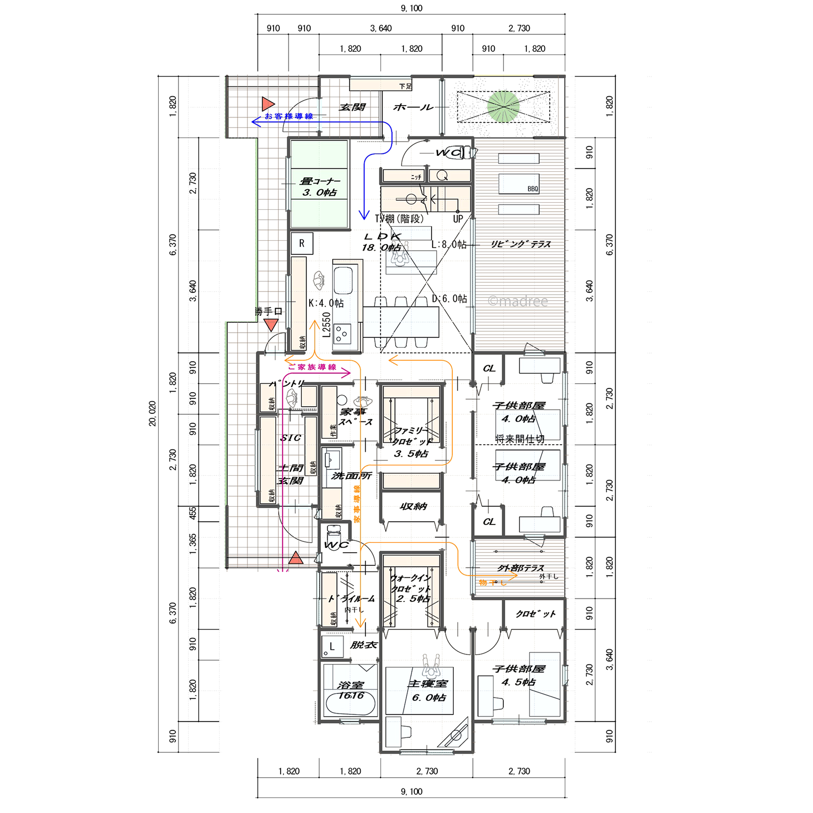
- 30坪~33坪
- 4LDK
趣味も家族それぞれの暮らしも充実するシンプルで明るい家
-
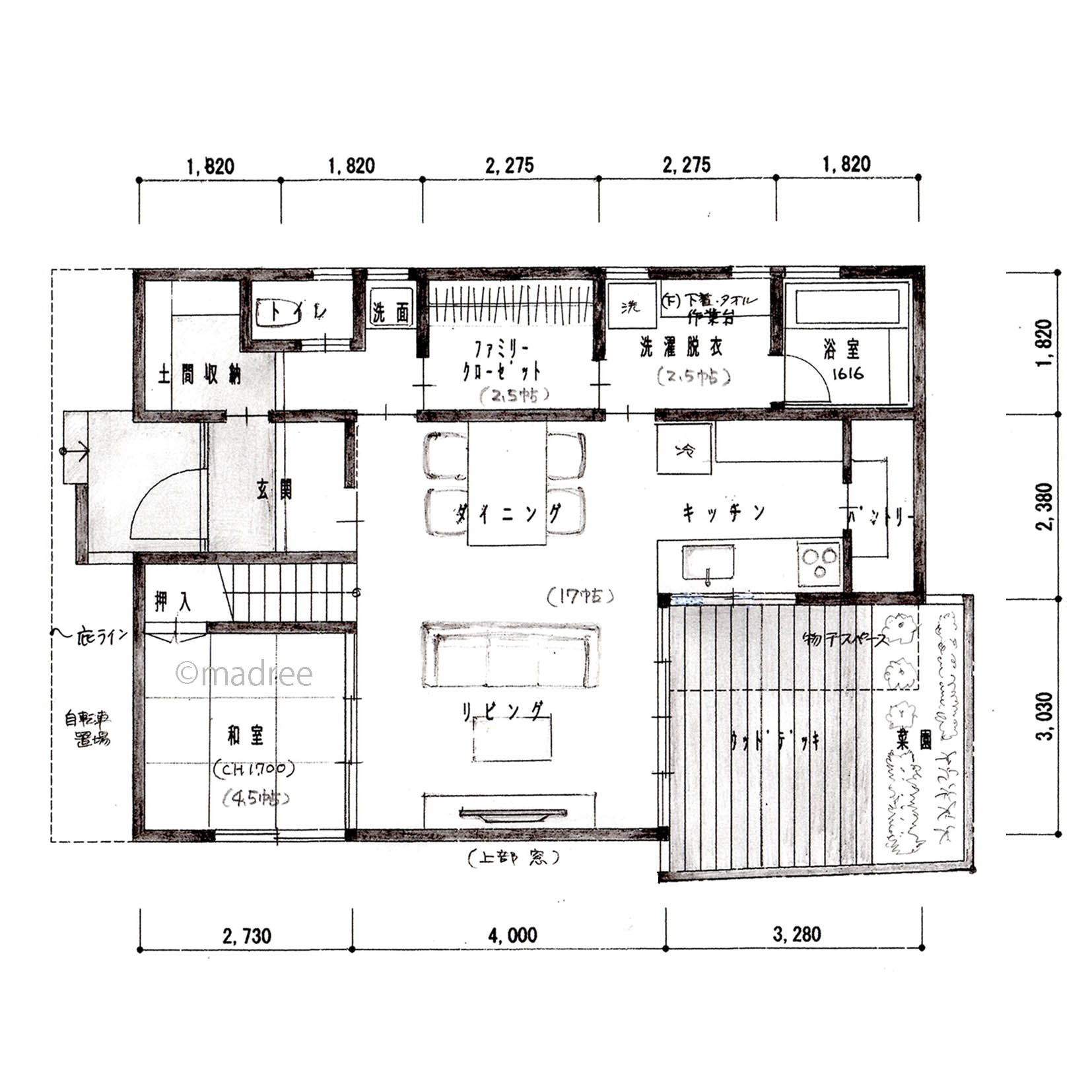
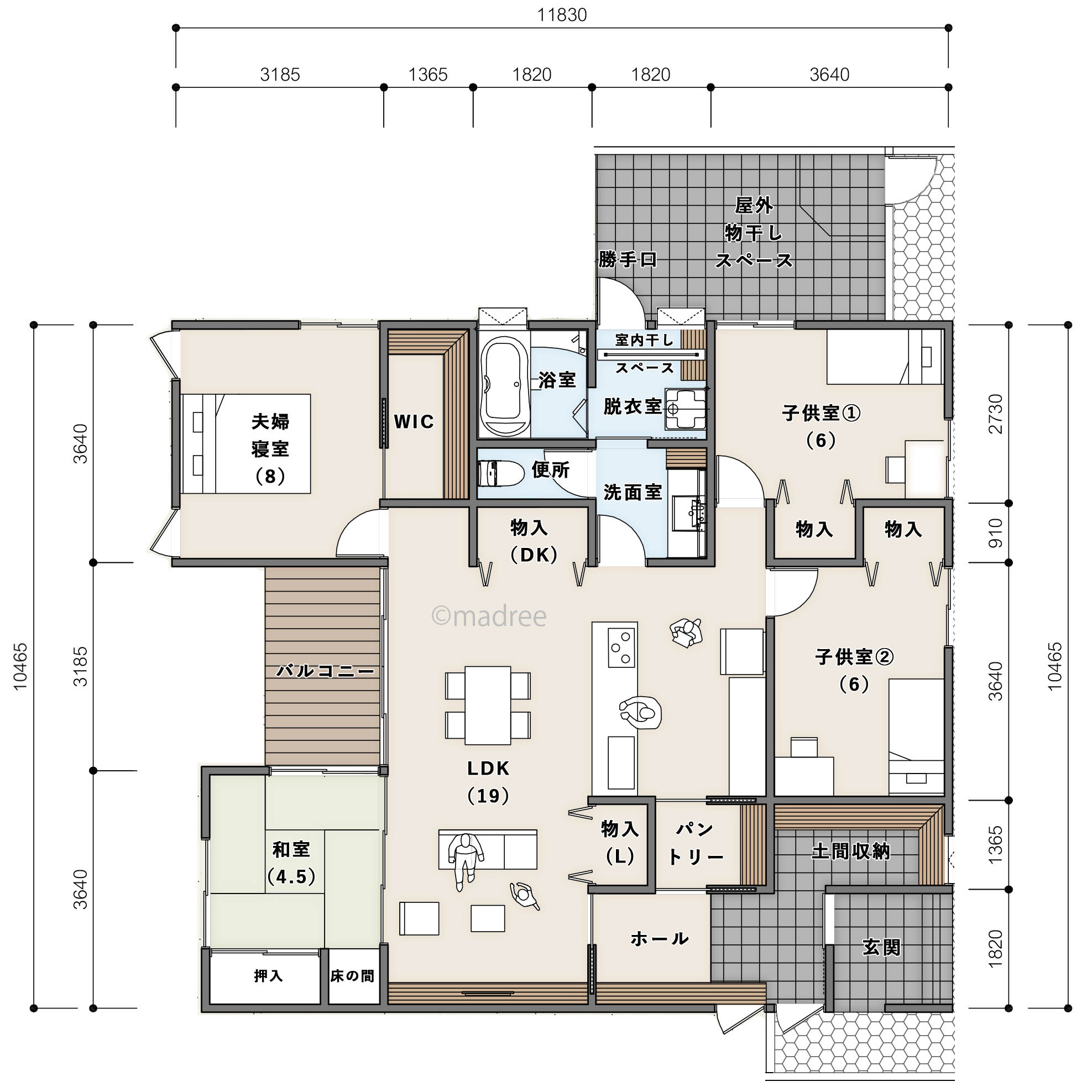
- 36坪~39坪
- 3LDK
シンプルで使いやすい家事動線と日当たりの良い明るい家
-
- 42坪~45坪
- 2LDK
食卓を中心にした家族が楽しめる空間と充実の収納で暮らしが豊かになる家
-
- 33坪
- 4LDK
庭から吹き抜ける風と光で心地良く過ごせるシンプルで暮らしやすい間取り
-
- 33坪~36坪
- 4LDK
3世帯暮らしで快適に過ごせる!コンパクト家事動線と光が降り注ぐ心地良い家
-
- 42坪~45坪
- 3LDK
一直線家事動線で家事効率UP!採光をしっかり確保した居心地良いほぼ平屋
-
- 33坪~36坪
- 4LDK
3世帯同居でも効率的な家事ラク動線と適材適所の収納で快適に暮らせる家
-
- 45坪~49坪
- 4LDK
光を取り込む明るく開放的なLDKと水回り直線動線で家事ラクの平屋
-
- 30坪~33坪
- 4LDK
T字型の間取りで採光を確保!シンプル家事動線が心地良い家
-
- 31坪
- 3LDK
片付けしながらの帰宅動線、シンボルツリーに癒される平屋
-
- 50坪
- 4LDK
一直線の水回りで家事ラクに!デッキとつながる大空間リビングの家
-
- 35坪
- 3LDK
緑と風と光をたっぷり取り込む、ひとり時間も充実できる南向きの家
-
- 39坪
- 3LDK
広々デッキと中庭に視線が抜ける、心地良い自然光で過ごす採光工夫の家
-
- 39坪
- 4LDK
玄関近くの水廻りと主寝室で、朝の準備も夜の着替えもラクラクな平屋
-
- 38坪
- 2LDK
キッチンを中心にぐるっと回遊できる家事動線、おしゃれと実用性を兼ねた衣類収納のある家
-
- 39坪
- 2LDK
オープンな吹抜で家族との会話も弾む、キッチンを中心に生活が繋がる家
-
- 42坪
- 2LDK
おこもりスペースで読書に浸かる贅沢時間、気持ちを切替え心満たす工夫ある家
-
- 36坪
- 3LDK
帰宅後は汚れたままお風呂へ直行、縦長LDKから生活感を隠せるL字型の家
-
- 39坪
- 2LDK
キッチンからぐるっと目配りでき、家族みんながわかりやすい収納工夫のある家
-
- 40坪
- 3LDK
中二階に本に囲まれる空間を、家族が自由に使える読書コーナーのある家
-
- 24坪
- 3LDK
玄関を開けると視線と風が抜ける、LDKから全ての部屋へ繋がりを持つ平屋
-
- 36坪
- 5LDK
陽当たり最高な角部屋を洗濯室に、部屋干し派に嬉しい水廻り動線の家
マドリー開発の『住宅営業支援ツール』
madreeデータバンク
マドリーの人気間取り4,800プランを接客・提案に活用できる営業支援ツール
- 競合他社と差がつく、スピード提案
- トレンド間取りで、集客・受注数UP
- 建築家のアイデアを参考に、質の高い提案ができる
