吹抜で家族が繋がるの間取り一覧
家族や自分の”好き”を叶える注文住宅の間取りが見つかる!暮らしの要望をもとに全国の建築家が作成した吹抜で家族が繋がるの間取りを477件公開しています。毎日更新中!
-
- 40坪
- 3LDK
開口窓で庭の自然を近くに感じる、心地よいLDKでのびのびと過ごす家
-
- 35坪
- 4LDK
三世帯どこからもアクセス良好、明るいLDKに自然と家族の足が向かう家
-
- 33坪
- 3LDK
生活リズムのズレは別動線でカバー、家族も犬も伸びやかに過ごす二世帯住宅
-
- 65坪
- 4LDK
中庭へと繋がるゆったり空間、建物中央から光届ける縦長コートハウス
-
- 39坪
- 5LDK
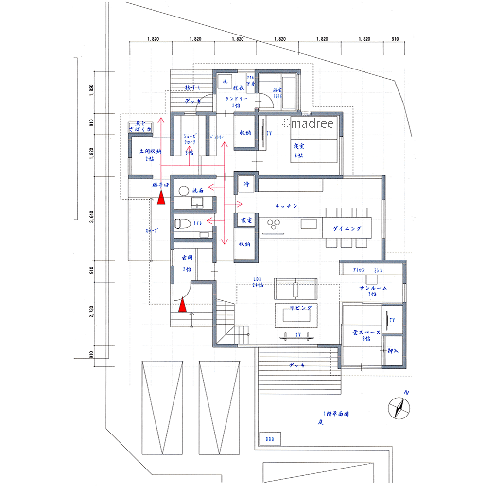
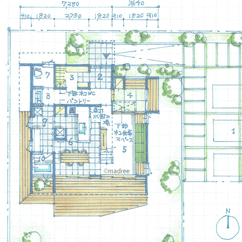
吹抜と回遊動線で家族も猫も自由度UP、まわりの自然とつながる緑豊かな家
-
- 36坪
- 2LDK
備え付け収納で掃除がしやすく生活整う、キッチン中心ぐるぐる家事動線の家
-
- 31坪
- 2LDK
急な来客もブラインドで対応、フレキシブルに隠せるスッキリLDKの家
-
- 58坪
- 6LDK
介護しやすいゆとりある空間、程良きプライベート保つ二世帯住宅
-
- 21坪〜24坪
- 1LDK
圧迫感なく空間繋がる、床の高さに変化を付けた自然と目線の合う家
-
- 35坪
- 2LDK
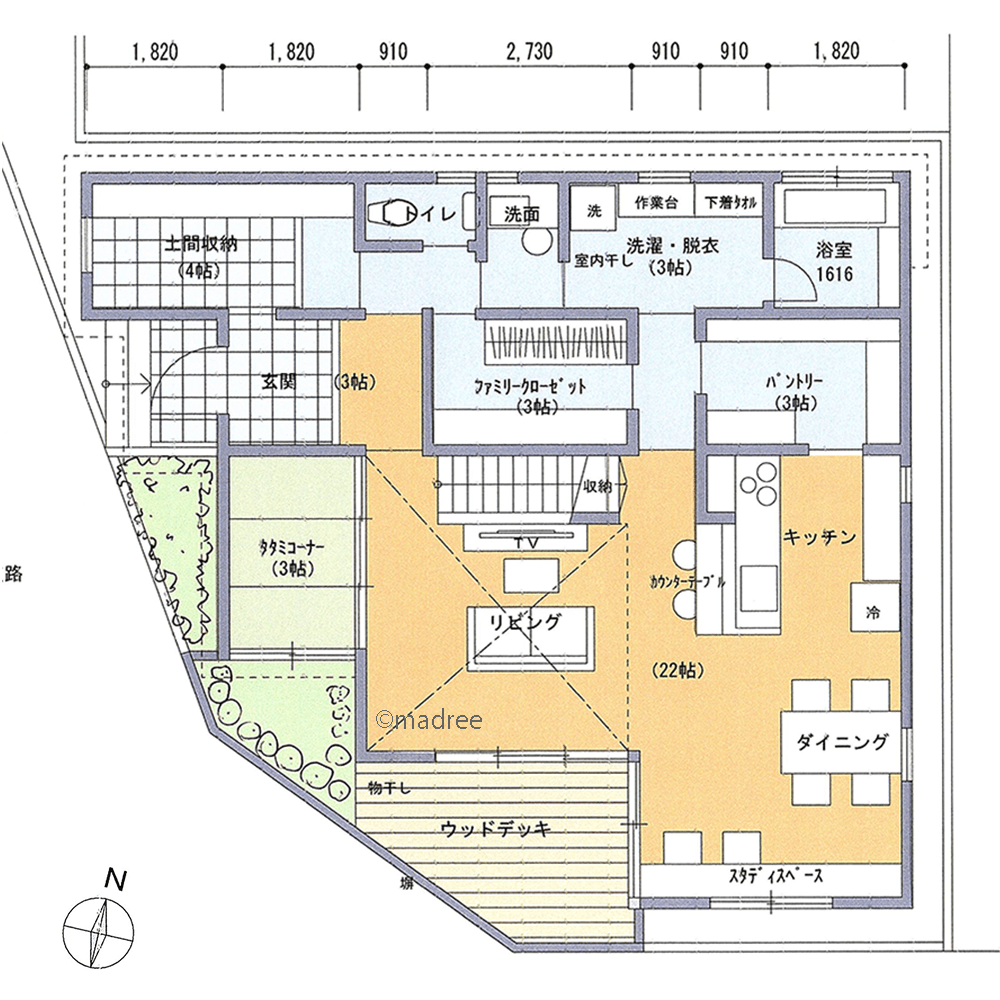
充実ランドリーで大量の衣類もスッキリ、伸びやかな子育てができる内外つながる家
-
- 38坪
- 2LDK
キッチンからのコンパクト動線で、複数の家事をスムーズにこなす家
-
- 36坪
- 4LDK
縦にも屋外にも広がる大空間、広々LDKでホームパーティー楽しむ家
-
- 36坪
- 2LDK
コの字の隠せる生活裏動線で、LDKを心地良いリラックス空間にする家
-
- 39坪
- 3LDK
開放感とプライベートを両立、中庭と吹抜から光溢れるコの字の家
-
- 32坪
- 4LDK
適材適所の収納ですっきり片付く、廊下少なく最大限に土地活用した家
-
- 36坪
- 3LDK
コンパクト回遊家事と帰宅動線で、家族時間生み出す共働き応援の家
-
- 36坪
- 2LDK
共有空間にも適度な距離感、快適なパーソナルスペースを保つLDKの家
-
- 38坪
- 3LDK
キッチン中心に短く繋がる、生活にゆとりが生まれる楽家事動線の家
-
- 36坪
- 3LDK
入った瞬間に心地良い雰囲気、光と緑取り込む玄関で自然感じる家
-
- 37坪
- 3LDK
ガラス壁で生まれる屋外との一体感、LDKと繋がるプライベートテラスのある家
-
- 33坪
- 2LDK
リビング上部に広がる縦空間、吹抜と繋がる多目的ロフトのある家
-
- 39坪
- 4LDK
海への眺望を家中で感じる、ゆとりある家時間を気分良く過ごす家
-
- 33坪
- 2LDK
空き時間を有意義に活用、ホームジムで気軽にリフレッシュできる家
-
- 36坪
- 3LDK
コンパクトな動線で日常生活の手間を省く、暮らしの中心に階段のある家
マドリー開発の『住宅営業支援ツール』
madreeデータバンク
マドリーの人気間取り4,800プランを接客・提案に活用できる営業支援ツール
- 競合他社と差がつく、スピード提案
- トレンド間取りで、集客・受注数UP
- 建築家のアイデアを参考に、質の高い提案ができる
