吹抜で家族が繋がるの間取り一覧
家族や自分の”好き”を叶える注文住宅の間取りが見つかる!暮らしの要望をもとに全国の建築家が作成した吹抜で家族が繋がるの間取りを483件公開しています。毎日更新中!
-
- 51坪
- 5LDK
中庭からの光と風が心地よい、緑豊かで人が集まる賑やかな家
-
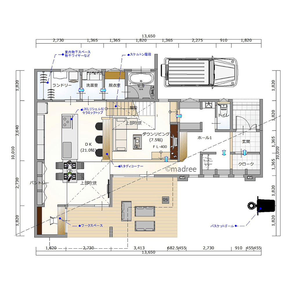
- 44坪
- 3LDK
コの字のカフェ風キッチンに家族集う、実用性に温かみを加えた心地良き家
-
- 43坪
- 4LDK
ファミクロ中心に家事シェアしやすい、自然に囲まれたアウトドアな家
-
- 47坪
- 4LDK
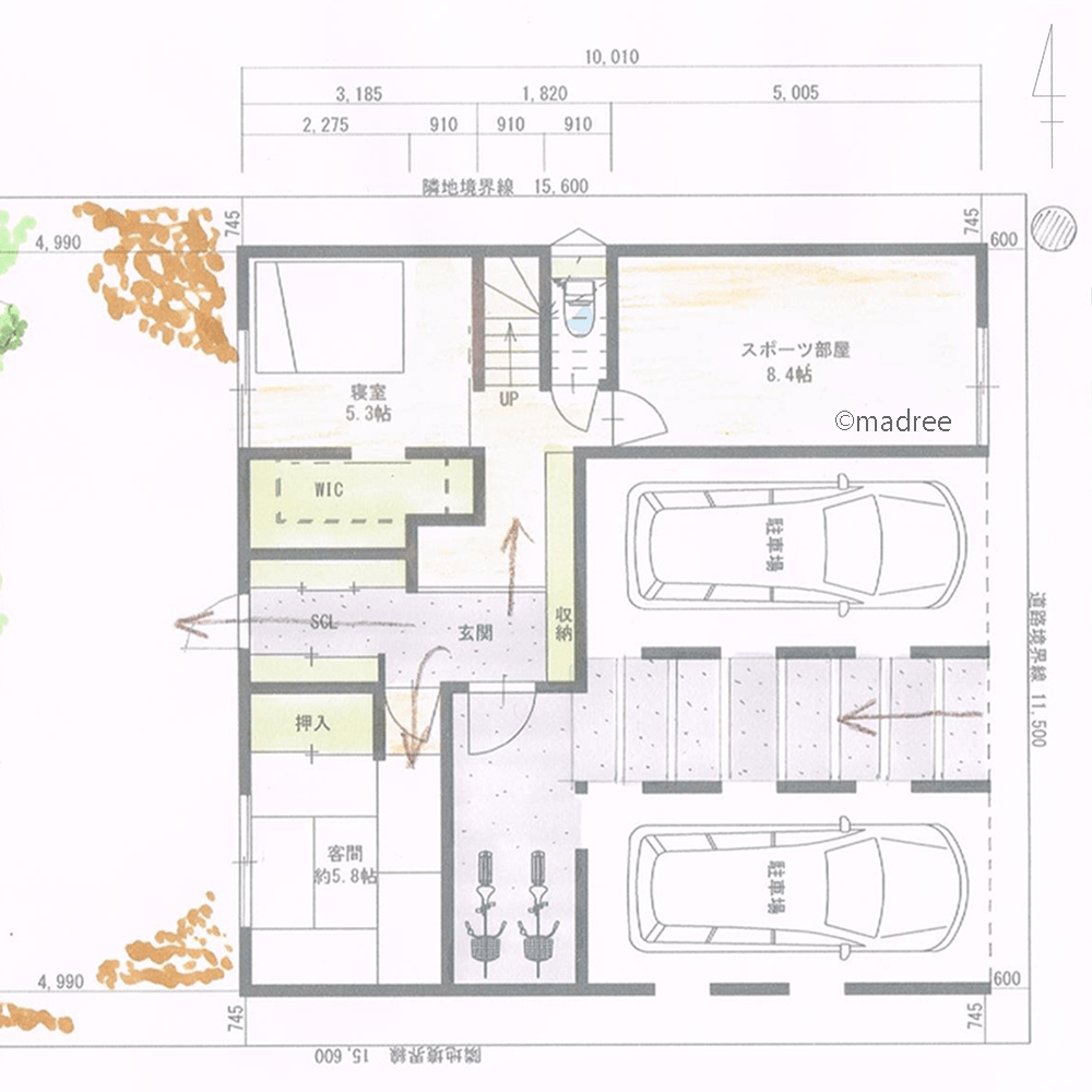
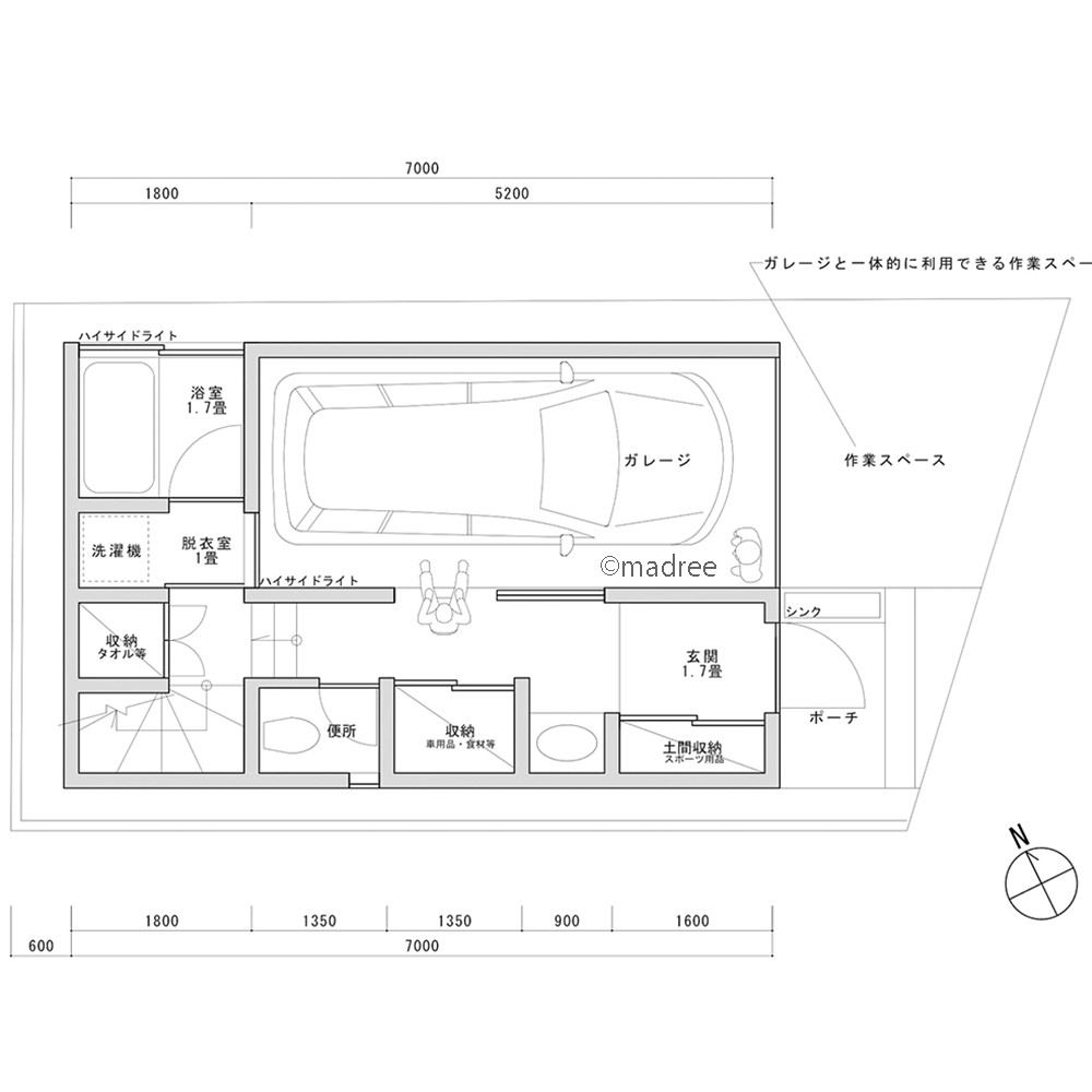
螺旋階段と吹抜で開放的なリビングに、人が集まるビルトインガレージの家
-
- 38坪
- 3LDK
料理動線と洗濯動線を完全に分けて、家事分担が楽にできる共働きに嬉しい家
-
- 42坪
- 3LDK
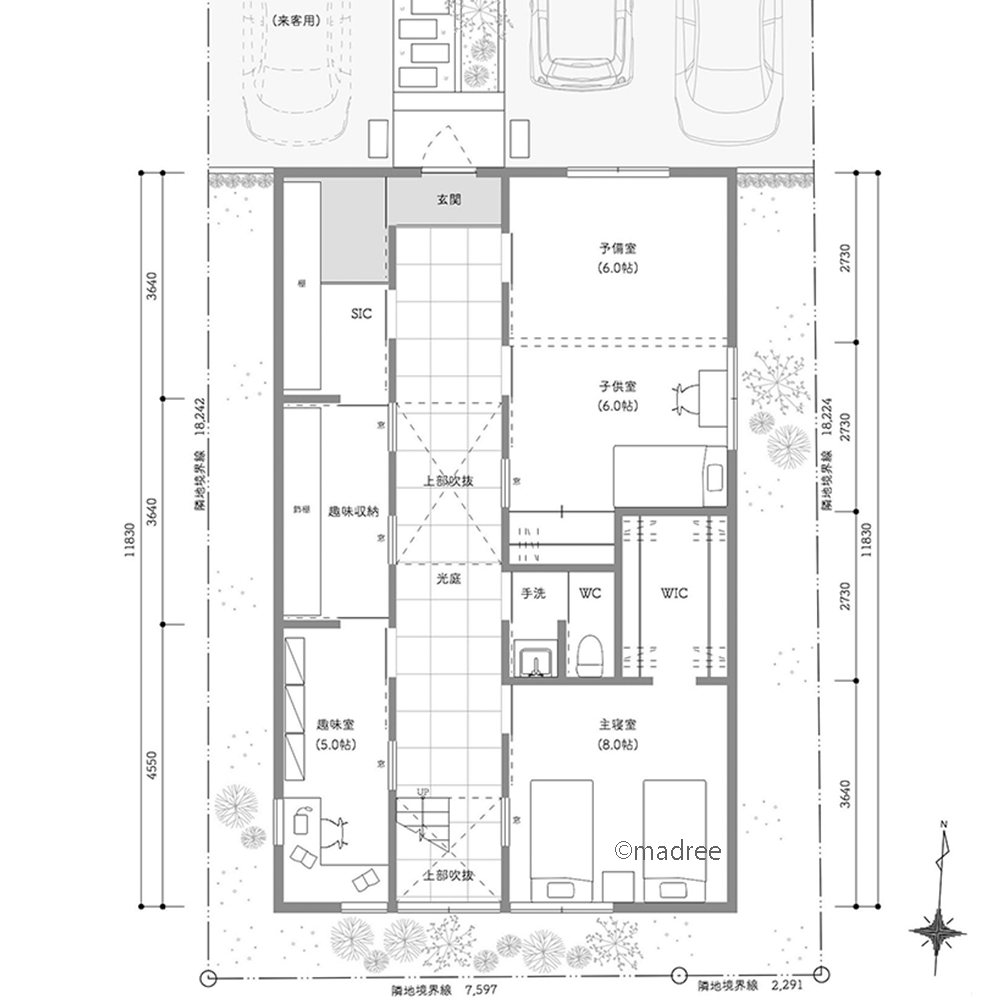
子育ても趣味もゆったり楽しむ、各々にパーソナルスペースがある縦長地の家
-
- 45坪
- 3LDK
大きな収納を家族で共有、コンパクトな各部屋を最大限に活かせる家
-
- 33坪
- 3LDK
繋がるコの字テラスで楽に出入り、愛犬も充実のプライベート時間過ごす家
-
- 66坪
- 5LDK
家事も趣味も家族で楽しむ、インナーテラスと吹抜で縦横に視線が抜ける家
-
- 30坪
- 4LDK
ブリッジと吹抜でいつも家族感じる、遊び心満載の世界にひとつだけの家
-
- 51坪
- 4LDK
天窓から光庭廊下へ採光届ける、吹抜を介して家族の気配を感じられる家
-
- 37坪
- 1LDK
家のどこにいても家族つながる、吹抜をぐっと回れる遊び心感じる家
-
- 25坪
- 3LDK
帰宅後はキレイサッパリしてLDKへ、壁面収納で狭小地を広々使える家
-
- 32坪
- 3LDK
光と風が気持ち良く流れる、好きな陽だまりスポットで家時間を過ごす家
-
- 54坪
- 4LDK
リゾートを感じるゆったり生活動線、庭のガゼボでリゾートらしさが増す家
-
- 38坪
- 3LDK
リビング吹抜が家族を繋ぐ、2階からそっと見守る書斎スペースのある家
-
- 26坪
- 3LDK
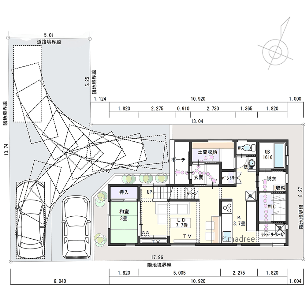
旗竿地を生かして回転駐車、アプローチが屋外プライベート場になる家
-
- 37坪
- 4LDK
部屋の奥まで光が届く、自然と家族が顔を合わせる開放的なLDKの家
-
- 47坪
- 3LDK
縦にも奥にもパッと視界広がる、段差で変化をつけた開放的LDKの家
-
- 41坪
- 4LDK
中心の吹抜で家族つながり感じる、広庭の緑を望むLDKの家
-
- 42坪
- 3LDK
ランドリーでサクッと完結、洗濯が楽しくなる回遊水廻り動線の家
-
- 41坪
- 3LDK
通り道になる回遊キッチン、家の真ん中から短く家事が繋がる家
-
- 41坪
- 3LDK
キッチンがお気に入りの場所になる、回遊動線で家事がサッと片付く家
-
- 38坪
- 4LDK
座れる休める収納できる、小上がり畳の便利な階段踊り場がある家
マドリー開発の『住宅営業支援ツール』
madreeデータバンク
マドリーの人気間取り4,800プランを接客・提案に活用できる営業支援ツール
- 競合他社と差がつく、スピード提案
- トレンド間取りで、集客・受注数UP
- 建築家のアイデアを参考に、質の高い提案ができる
