南向き庭の間取り一覧
家族や自分の”好き”を叶える注文住宅の間取りが見つかる!暮らしの要望をもとに全国の建築家が作成した南向き庭の間取りを952件公開しています。毎日更新中!
-
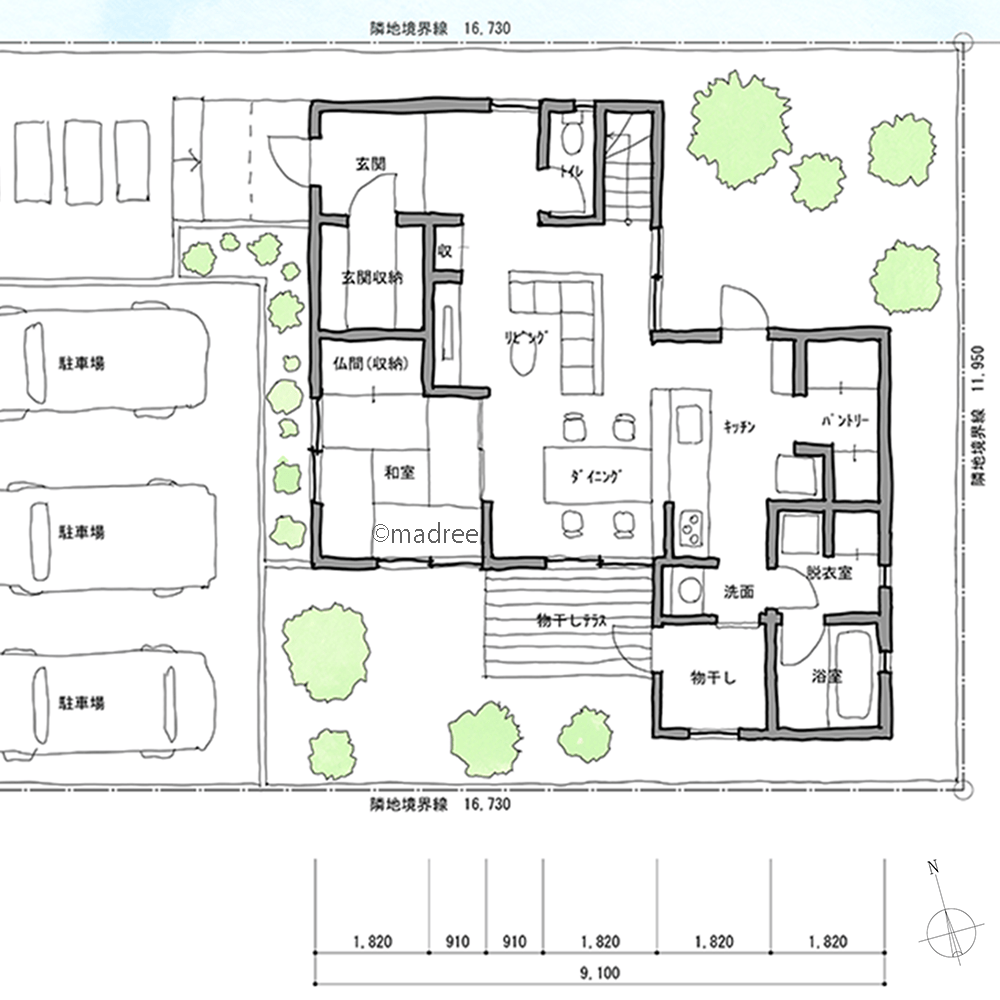
- 38坪
- 3LDK
明るいLDKで運気を呼び込む、将来的に2世帯住宅を見据えた家
-
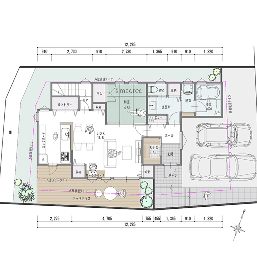
- 40坪
- 3LDK
庭と室内を自由に行き来できる、ウッドデッキを囲むようにL字型のLDKと繋がる家
-
- 30坪
- 2LDK
共働き家族が快適に過ごせる工夫、回遊で繋ぐ家事動線で時間に余裕の生まれる家
-
- 47坪
- 3LDK
大きく屋根の掛かる陽だまりテラスが、LDKと繋がるプライベートリビングになる家
-
- 42坪
- 2LDK
海外ゲストを畳の客間でおもてなし、ストレスなく片付く広々リビング収納のある家
-
- 45坪
- 4LDK
あるべき場所に物の居場所を確保、台形地を無駄なく活用したスッキリ整う家
-
- 40坪
- 3LDK
道路からの視線カットしオープンに暮らす、庭につながる土間リビングのある家
-
- 36坪
- 4LDK
適度な距離感生み出すL字型LDK、将来を見据えた1階主寝室の家
-
- 43坪
- 4LDK
個室やヌックで程よい距離感をキープ、将来を見据えた二世帯住宅
-
- 36坪
- 2LDK
人目の気になる角地でも安心して過ごせる、明るく開放的なLDKが主役になる家
-
- 52坪
- 3LDK
LDKとアウトドアリビングが一体化、友人とのホームパーティーを快適に楽しむ家
-
- 39坪~42坪
- 2LDK
縦横無人に広がるLDK空間に人集まる、老後を見据えたほぼ平屋のような家
-
- 41坪
- 3LDK
吹抜とデッキでさらに開放感UP、平屋のように過ごすシンプル家事の家
-
- 33坪
- 3LDK
回遊動線で家事も身支度もサクサク、デッキに囲まれた陽だまりリビングの家
-
- 76坪
- 2LDK
ピロティですっきり住み分け、将来的に賃貸経営を見据えた二世帯住宅
-
- 36坪
- 2LDK
家族時間を大切に育む、開口窓と吹抜でタテヨコ空間広がる家
-
- 36坪
- 4LDK
一人ひとり好きなことをして過ごせる、家族がなんとなく集まる陽だまりリビングの家
-
- 36坪
- 2LDK
アウトドアリビングで過ごす開放感、LDKと主寝室で囲むピロティ風デッキのある家
-
- 51坪
- 3LDK
キッチン中心の回遊性で家事ラク叶う、暖かなサンルームで団らん過ごす雪国の家
-
- 35坪
- 4LDK
庭2つより自然の景色取り入れる、のびやかな空間ながらもミニマル家事の家
-
- 42坪
- 4LDK
裏動線に生活感をひとまとめ、オープンに楽しむホストファミリーの家
-
- 42坪
- 4LDK
庭から庭へ視線の抜ける開放感、雰囲気を感じつつプライバシーも守る二世帯住宅
-
- 61坪
- 4LDK
横長の土地を玄関中心にゾーン分け、日当たり良いのびやかな家
-
- 34坪
- 2LDK
朝日をたっぷり取り込むLDKと、時短身支度で気持ち良い1日がスタートする家
マドリー開発の『住宅営業支援ツール』
madreeデータバンク
マドリーの人気間取り4,800プランを接客・提案に活用できる営業支援ツール
- 競合他社と差がつく、スピード提案
- トレンド間取りで、集客・受注数UP
- 建築家のアイデアを参考に、質の高い提案ができる
