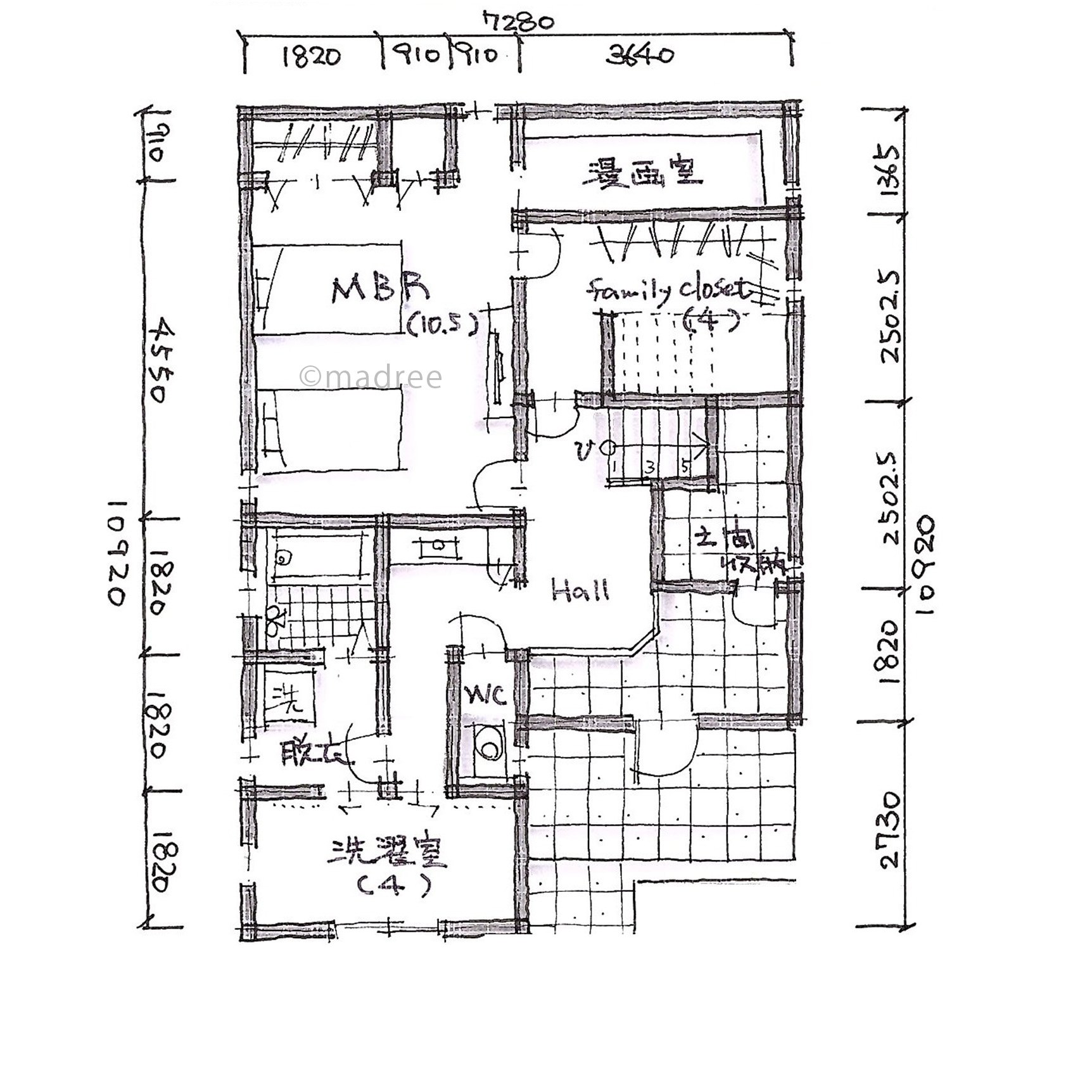
[20坪以下 1LDK] 山並みを臨むリビングでくつろぐ、非日常を味わう里山の家の間取り
全国の建築家から間取りが集まるmadree(マドリー)で集まった20坪以下、1LDKの間取りです。オープンキッチンやL字型キッチンが特徴の注文住宅の間取りです。
山並みを臨むリビングでくつろぐ、非日常を味わう里山の家はこのような方におすすめです
・家族構成:40代夫婦2人暮らし
・趣味:読書、映画鑑賞、グルメ
山並みを臨むリビングでくつろぐ、非日常を味わう里山の家の間取りアイデア
全国対応になりました
| 階数 | |
|---|---|
| 部屋数 | |
| 家族人数 | |
| 土地特徴 | |
| 特徴 | |
| 広さ | |
| 担当建築家・デザイナー |
建築家・デザイナー
からのコメント
【全体のコンセプト】
・家とガレージが一体に見えるシンプルな外形
・南にリビングと和室を設けた明るく暖かい家
・LDKと和室が対角につながる広がりを感じる室内
・積雪時も玄関の勝手口からガレージに直接出入り可能
・縁側はリビングや和室と一体的に利用可能
・建物を北に配置し西側農地と連続して活用できる南庭
・全体で100m2(居宅部分55m2+ガレージ46m2)のコンパクトな家
【こだわりのポイント】
・LDK
LDKの中央に天井吊りプロジェクター(画面100インチ想定)
キッチンの勝手口を利用し倉庫のパントリーへアクセス可能
ガスコンロはLDKの角に配置し油汚れに配慮
ダイニングテーブルは来客のため4人掛け想定
・水廻り
洗面室 サンルーム 物干スペースが連続する効率的な家事動線
縁側には屋根をかけることで雨に濡れない物干しスペース
浴室は1616のゆったりサイズ
トイレは玄関とガレージに近い位置に配置
・寝室
寝室は道路から遠い奥に配置
20坪以下 1LDK関連の間取り
マドリー開発の『住宅営業支援ツール』
madreeデータバンク
マドリーの人気間取り4,800プランを接客・提案に活用できる営業支援ツール
- 競合他社と差がつく、スピード提案
- トレンド間取りで、集客・受注数UP
- 建築家のアイデアを参考に、質の高い提案ができる








