[45坪~49坪 4LDK] リアルな目線で家事も子育ても個々の時間も配慮した日々の暮らしにゆとりが持てる家の間取り
全国の建築家から間取りが集まるmadree(マドリー)で集まった45坪~49坪、4LDKの間取りです。オープンキッチンやアイランドキッチンが特徴の注文住宅の間取りです。
リアルな目線で家事も子育ても個々の時間も配慮した日々の暮らしにゆとりが持てる家はこのような方におすすめです
家族構成:30代夫婦(妻は専業主婦)、子供2人(未就学児)
趣味:ミシンや洋裁
リアルな目線で家事も子育ても個々の時間も配慮した日々の暮らしにゆとりが持てる家の間取りアイデア
全国対応になりました
| 階数 | |
|---|---|
| 部屋数 | |
| 家族人数 | |
| 土地特徴 | |
| 特徴 | |
| 広さ | |
| 担当建築家・デザイナー | 
建築家・デザイナー
からのコメント
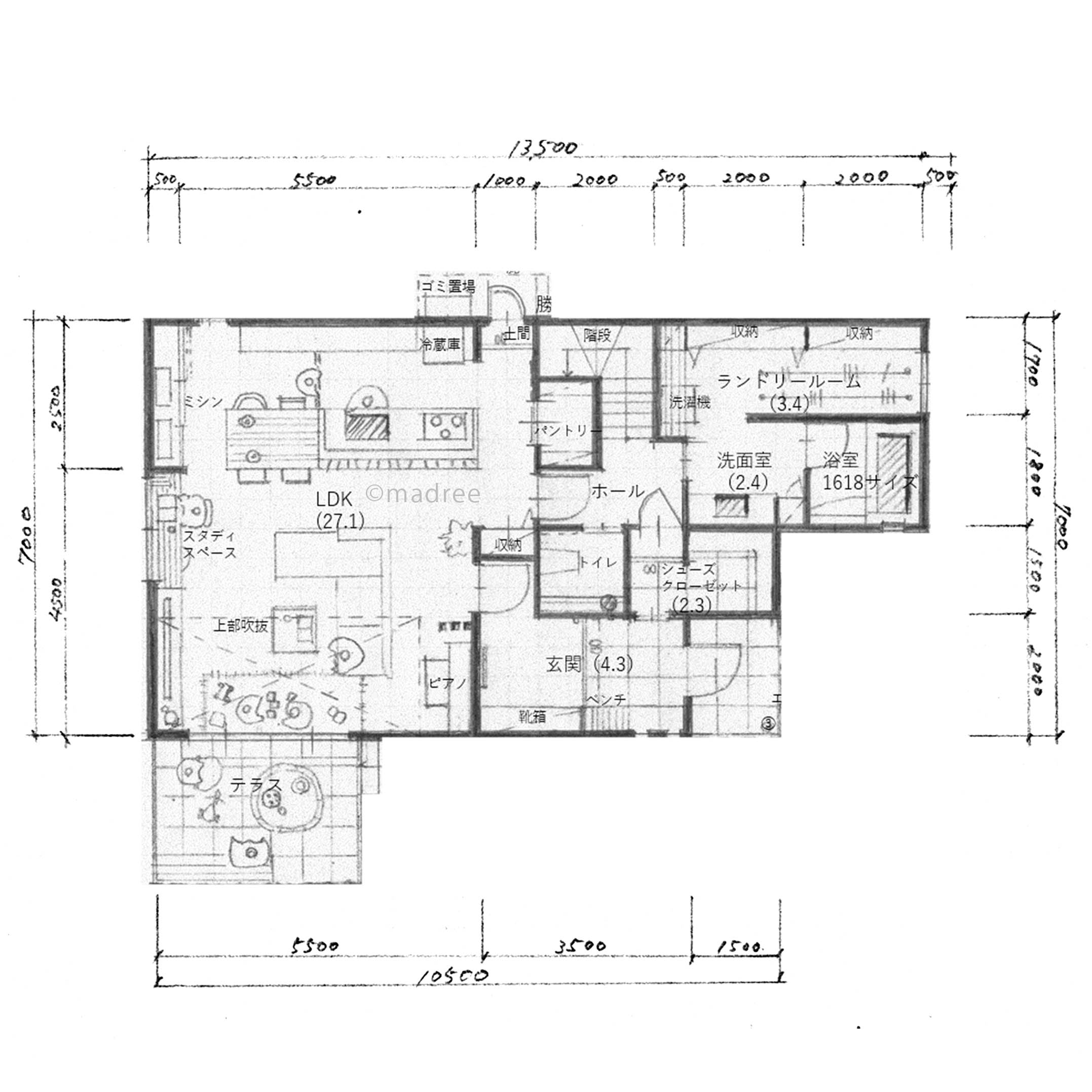
                【全体のコンセプト】
・『家事楽でゆったり♪自分の時間も楽しめる家』
・家事をできるだけ楽にして、家族や自分のための時間をゆったりと楽しめる家を目指して設計をしました。
・実際に家事と育児をするときのことを考えて、細やかな配慮を盛り込んでいます。
・洗濯が一部屋ですべて完結したり、料理中もお子様の様子がしっかり見れる、掃除はルンバにお任せできるよう、段差や余計な壁がないシンプルな空間に。
・和室もより日常的に使いやすいフレキシブルな部屋として、1階ではなく2階にご提案しています。
・間取りだけを見ると、目新しく夢あふれる空間ではないかもしれませんが、リアルな目線で毎日、暮らしやすさと心地よさを感じられる家を目指しました。
・建築条件付きの土地と想定し、積水ハウスのシャーウッドで建築できるようメーターモジュールで設計。
・各部屋の壁のラインをそろえ、地震に強いシンプルな構造。
・建物の凹凸は道路側のみとし、基礎、外壁に無駄がなく、建築コストを抑える。
・2階の北側は斜線に対応できるように天井をふきおろし(下げること)可能。(点線のライン)
【こだわりのポイント】
■1階
・植栽
エントランス側にシンボルツリー、北側には樹木と既存の石積みの後ろに花や低木を植えられるスペースを設け街並みに配慮。
・駐車場
カーポートは景観上、奥の1台分のみ。
・テラス
リビングの延長としてお子様を安心して遊ばせることができる広いスペース。
車からの荷物をリビングの窓から運べる。
・玄関
ベンチを設けた使いやすい玄関。
壁面収納でいつもすっきり。
正面の壁に絵を掛けて、おもてなしの演出も。
・シューズクローゼット
遊具やゴルフバッグ、部活の道具なども収納できる広さ。
洗面所、トイレへすぐにアクセスできる。(手洗いは床や壁への水はねと湿気対策、掃除箇所が増えるため無し)
・リビング
上部を吹き抜けにして、明るく開放的な空間に。
家族みんなで広く使え、お子様がLDKのどこで何をしていても目が届く。
・スタディスペース
声をかけやすいよう、リビングとダイニングの間に設けた。
・ミシンのスペース
扉付きでいたずら防止。
ダイニングテーブルを使って型紙をうつしたり広く作業ができる。
・キッチン
リビング側から手元を隠せるように腰壁を設ける。
階段下を利用したパントリー。
・洗面室・ランドリールーム
室内物干しの長さをしっかり確保。
来客が洗面室を使っても洗濯物が見えない位置に。
収納とアイロンや洗濯物をたたむための作業台を設け、洗濯から洋服の片付けまでが1部屋で完結。
■2階
・和室
プライベートな家族のスペース、こどもの遊び場、主寝室とつなげて使ったり、来客の宿泊にも対応できる多機能な部屋に。
・主寝室
家族みんなで川の字で寝られる広さ。
和室でお子様達を寝かせることもできます。
・ワークスペース
テレワークや書斎として活用。
・ウォークインクローゼット
廊下からも使えるので和室の布団はこちらに。
季節のもの(扇風機、ストーブ、五月人形、おひな様)なども収納。
・こども室
明るく過ごしやすいよう、道路側に面している。
45坪~49坪 4LDK関連の間取り
マドリー開発の『住宅営業支援ツール』
          madreeデータバンク
            
マドリーの人気間取り4,800プランを接客・提案に活用できる営業支援ツール
- 競合他社と差がつく、スピード提案
 - トレンド間取りで、集客・受注数UP
 - 建築家のアイデアを参考に、質の高い提案ができる
 

                                                      
                                                  







