[30坪~33坪 3LDK] 洗う・干す・しまうの洗濯回遊動線と家族それぞれが寛げるスペースを確保したコンパクトな間取りの間取り
全国の建築家から間取りが集まるmadree(マドリー)で集まった30坪~33坪、3LDKの間取りです。オープンキッチンや壁付けキッチンが特徴の注文住宅の間取りです。
洗う・干す・しまうの洗濯回遊動線と家族それぞれが寛げるスペースを確保したコンパクトな間取りはこのような方におすすめです
夫 30代会社員、妻 産休中 子供3人
趣味:子供はお休みの日の外遊びが欠かせない。妻はインドア派で家でまったりが好き。
洗う・干す・しまうの洗濯回遊動線と家族それぞれが寛げるスペースを確保したコンパクトな間取りの間取りアイデア
全国対応になりました
| 階数 | |
|---|---|
| 部屋数 | |
| 家族人数 | |
| 土地特徴 | |
| 特徴 | |
| 広さ | |
| 担当建築家・デザイナー |
建築家・デザイナー
からのコメント
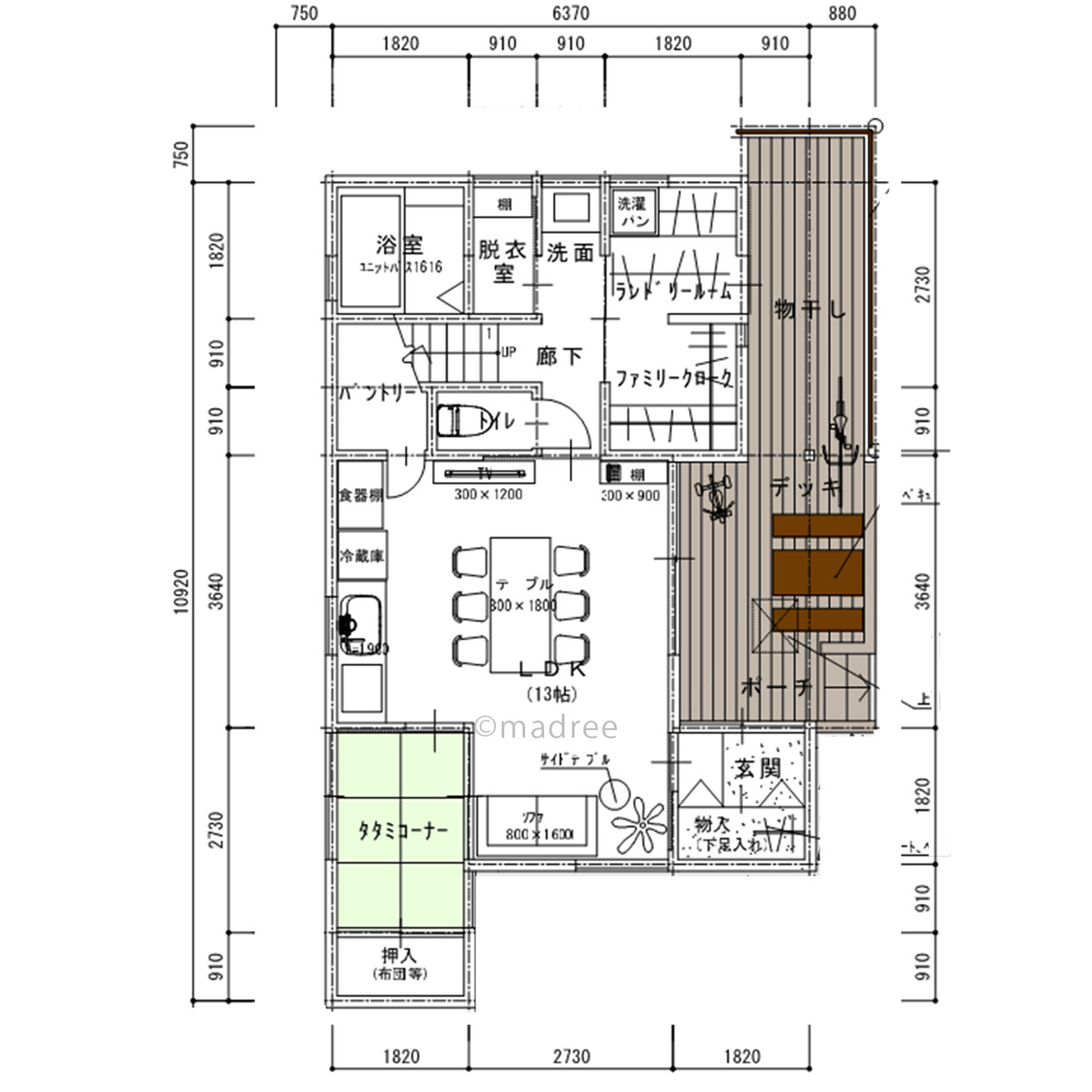
【全体のコンセプト】
法的要件として道路斜線クリアのため道路側は2階をセットバックした計画とした。
【こだわりのポイント】
■1階
・希望要件等からLDKの面積は広くとれなかったが、カバードポーチ(デッキ)をLDKに隣接させる事でセカンドリビングと考え、家族それぞれがソファー、ダイニング、デッキ様々な場所でくつろげる計画とした。
・又ランドリールームとファミリークローク・物干しの関係は最短の動線を考慮した。
■2階
・子供部屋を独立した1室と寝室+共用勉強スペースの形で2室計画した。
30坪~33坪 3LDK関連の間取り
マドリー開発の『住宅営業支援ツール』
madreeデータバンク
マドリーの人気間取り4,800プランを接客・提案に活用できる営業支援ツール
- 競合他社と差がつく、スピード提案
- トレンド間取りで、集客・受注数UP
- 建築家のアイデアを参考に、質の高い提案ができる









