[21坪〜24坪 3LDK] 家族それぞれの家時間を充実させる、大人3人で明るく暮らすコンパクトな家の間取り
全国の建築家から間取りが集まるmadree(マドリー)で集まった21坪〜24坪、3LDKの間取りです。外とつながるLDKや仏間が特徴の注文住宅の間取りです。
家族それぞれの家時間を充実させる、大人3人で明るく暮らすコンパクトな家はこのような方におすすめです
・50代女性と20代娘の親子+女性の父
・趣味:読書、庭いじり、映画鑑賞
・父はほぼ家にいるので、趣味を楽しめる広い庭を確保したい。
・プライバシーを大切にしたいので、各個室から布団を各自で干せるようにしたい。
家族それぞれの家時間を充実させる、大人3人で明るく暮らすコンパクトな家の間取りアイデア
全国対応になりました
| 広さ | |
|---|---|
| 階数 | |
| 土地特徴 | |
| 部屋数 | |
| 家族人数 | |
| 特徴 | |
| 担当建築家・デザイナー |
建築家・デザイナー
からのコメント
【コンセプト】
『3世代が暮らすコンパクトで明るい家』
・高齢のお父さんを含めた3世代が暮らす家として、十分な敷地面積があるので平屋も考えられますが、将来南側道路沿いに家を建てる可能性もあるかと勝手ながら想像し、コンパクトな2階建てを前提として検討しました。
・極力廊下部分をなくし、動線を短く、今後の家族構成の変化に対応できるプランを考えました。
【配置計画】
・道路沿いにカーポート付の駐車スペースを2台分確保し、建物は敷地北東に配置することで、現在の植栽と塀はそのまま残し、南東側に庭がとれる配置としました。
・玄関までのアプローチは、花など植栽を楽しむ空間として利用し、玄関までの段差解消のスロープを設けました。
【各所のポイント】
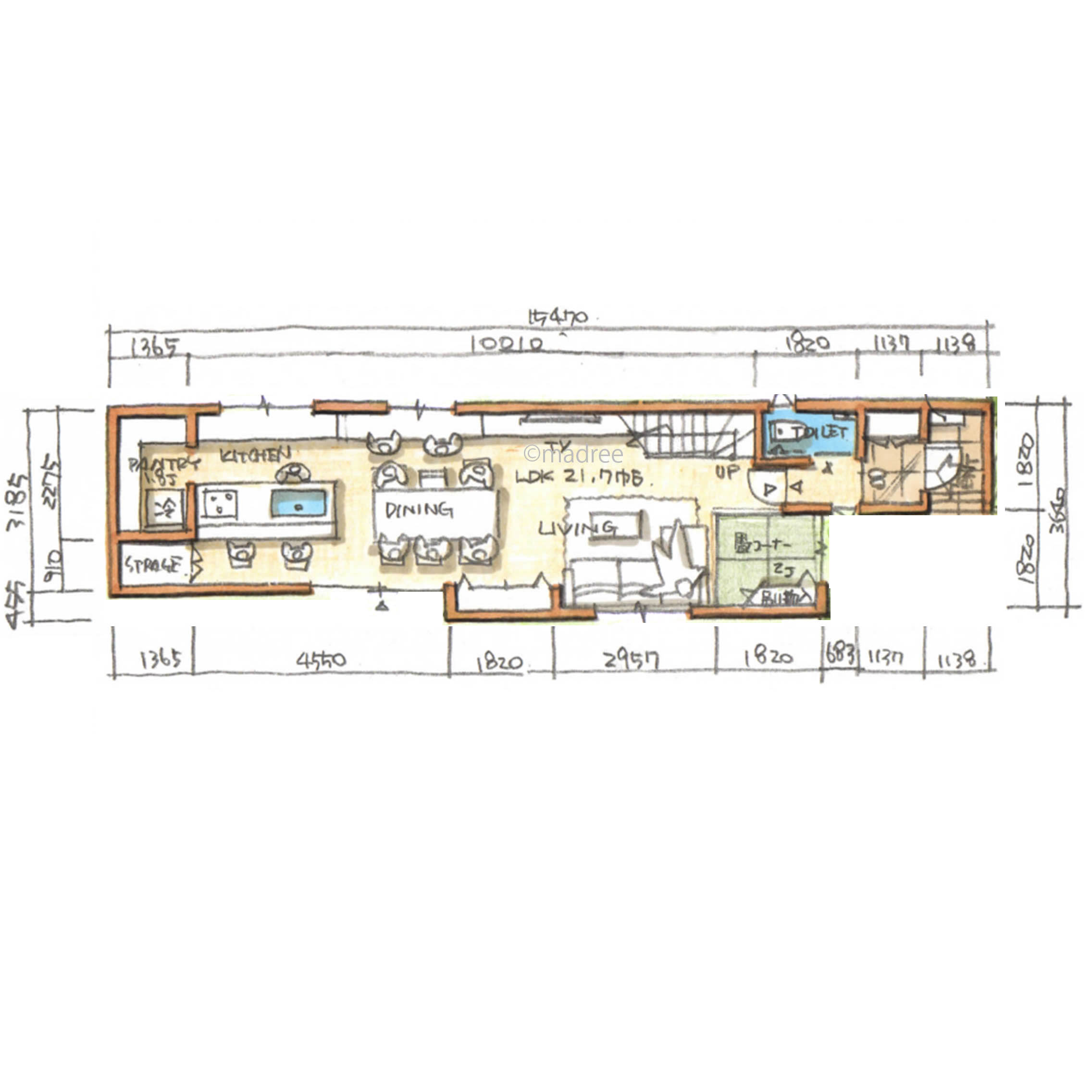
■LDK
・和室 &LDKは南東方向に開口のある明るいワンルームとしています。
・キッチンはスペースの関係上、レンジは壁付けとしシンクのみアイランドにしています。リビングから丸見えになるのも気になるとのことですので、アイランドはフラットではなく手元を隠せる程度の腰壁を設けました。
・食器などを仕舞う奥行の浅い収納と、階段下に半畳の収納を設けています
・お父様の部屋である和室はリビングに接し、押入れと仏間を設け、庭へも直接出入りできます。
・2階ベランダが庇代わりとして、出入り時や物干し時の雨除けや日差し除けとなります。
・現プランではパントリーや書斎スペースの確保が叶いませんが、オープンな空間となります。もし壁付けの対面キッチンに変更すると、背面収納のスペースを増やすことは可能です。
□水廻り
・玄関 &洗面は玄関ホールのトイレ前に洗面台(収納棚付き)を設けました。来客時や朝晩の身支度に、家族がトイレやお風呂を使用中でも洗面を使用できると考えています。
・トイレは各階に設け、1階トイレは幅にゆとりを持たせています。
・脱衣スペースには洗濯機と収納棚の置ける広さとし、浴室乾燥機又は脱衣室上部に物干しを設けて一部は室内干しができるようにしています。
・玄関収納はSICではないですが、靴箱と季節の衣類やカバンが下げられるようなクローゼットを設けました。
■2階洋室
・洋室2部屋はともに4.5畳を確保し、別途共用のWICを設けました。
・4.5畳には、ベッドと机やドレッサー、チェストなどを配置し、ベランダもあるので寛げる空間になると思います。
21坪〜24坪 3LDK関連の間取り
マドリー開発の『住宅営業支援ツール』
madreeデータバンク
マドリーの人気間取り4,800プランを接客・提案に活用できる営業支援ツール
- 競合他社と差がつく、スピード提案
- トレンド間取りで、集客・受注数UP
- 建築家のアイデアを参考に、質の高い提案ができる









