習い事教室併用の間取り一覧
家族や自分の”好き”を叶える注文住宅の間取りが見つかる!暮らしの要望をもとに全国の建築家が作成した習い事教室併用の間取りを26件公開しています。毎日更新中!
-
- 38坪
- 4LDK
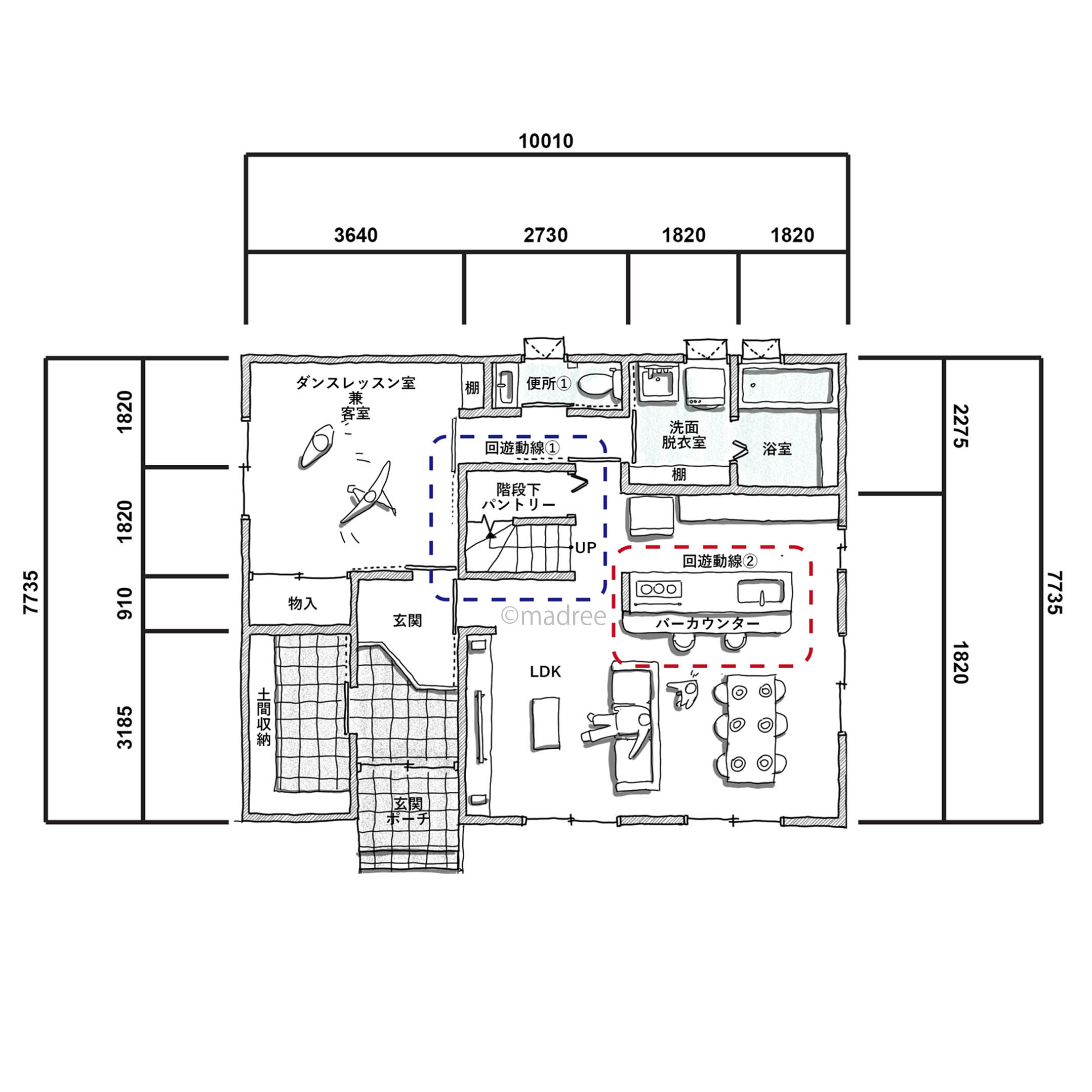
廊下がないから無駄がない、片付けしながら帰宅できる動線の家
-
- 40坪
- 4LDK
ロールカーテンで手軽に来客動線を確保、広々LDKを廊下としても活用できる家
-
- 39坪
- 4LDK
中庭を堺にオンオフ切り替え、来客とにぎわうコの字の音楽家の家
-
- 36坪
- 2LDK
ファミクロ中心の回遊性でプライバシーを守る、裏動線で生活感を隠せる家
-
- 38坪
- 2LDK
ステップフロアに腰掛け人が集まる、自然光が降り注ぐ和み空間のある家
-
- 39坪
- 2LDK
回遊性を活かして生活を楽に繋ぐ、来客時でも居心地よくLDKで過ごせる家
-
- 38坪
- 2LDK
家族が毎日顔を合わせ会話が生まれる、キッチンから家全体に目配りできる家
-
- 37坪
- 3LDK
LDKを通らず来客を案内できる、動線が交差しない家族が快適に過ごせる家
-
- 55坪
- 4LDK
子どもと一緒に趣味を楽しむ、LDKから繋がるテラスと剣道場のある家
-
- 59坪
- 3LDK
気兼ねせず自宅で稽古に打ち込める、明るく開放的な剣道場のある家
-
- 40坪
- 2LDK
圧迫感なくフレキシブルに空間を繋ぐ、縦にも奥にも視界が抜ける明るい縦長地の家
-
- 41坪
- 5LDK
家族それぞれの望みを叶えた個室と、互いの生活スタイルを尊重した二世帯住宅
-
- 45坪~49坪
- 4LDK
効率的な回遊動線で家事が充実、吹抜とテラスからの光で明るい2階LDKの家
-
- 61坪
- 6LDK
自分らしい豊かなセカンドライフを送る、生活感をoffしたキッチンが主役の家
-
- 25坪
- 4LDK
縦に増やした空間構成、中二階にホッと休めるくつろぎリビングのある家
-
- 53坪
- 4LDK
ダイナミックな吹抜で家族つながる、開放感とプライバシー両立の家
-
- 44坪
- 3LDK
コの字のカフェ風キッチンに家族集う、実用性に温かみを加えた心地良き家
-
- 37坪
- 1LDK
家のどこにいても家族つながる、吹抜をぐっと回れる遊び心感じる家
-
- 27坪〜30坪
- 2LDK
別空間で安心して過ごす、来客動線と交わりにくい習い事教室併用の家
-
- 30坪
- 3LDK
中庭からの光と風が心地よい、家族が自然と集う床座生活の家
-
- 60坪
- 2LDK
ガレージから繋がる2箇所の玄関、家族動線と混らず自宅教室へ向かう家
-
- 27坪〜30坪
- 3LDK
玄関で動線をハッキリ分けた、仕事と快適な生活を両立する家
-
- 27坪〜30坪
- 2LDK
制限付き土地を最大限に活かす、自然と人が集まり賑わう居心地良い家
-
- 32坪
- 2LDK
ゾーンを分けて過ごしやすく、プライベート守る自宅教室を見据えた家
マドリー開発の『住宅営業支援ツール』
madreeデータバンク
マドリーの人気間取り4,800プランを接客・提案に活用できる営業支援ツール
- 競合他社と差がつく、スピード提案
- トレンド間取りで、集客・受注数UP
- 建築家のアイデアを参考に、質の高い提案ができる
