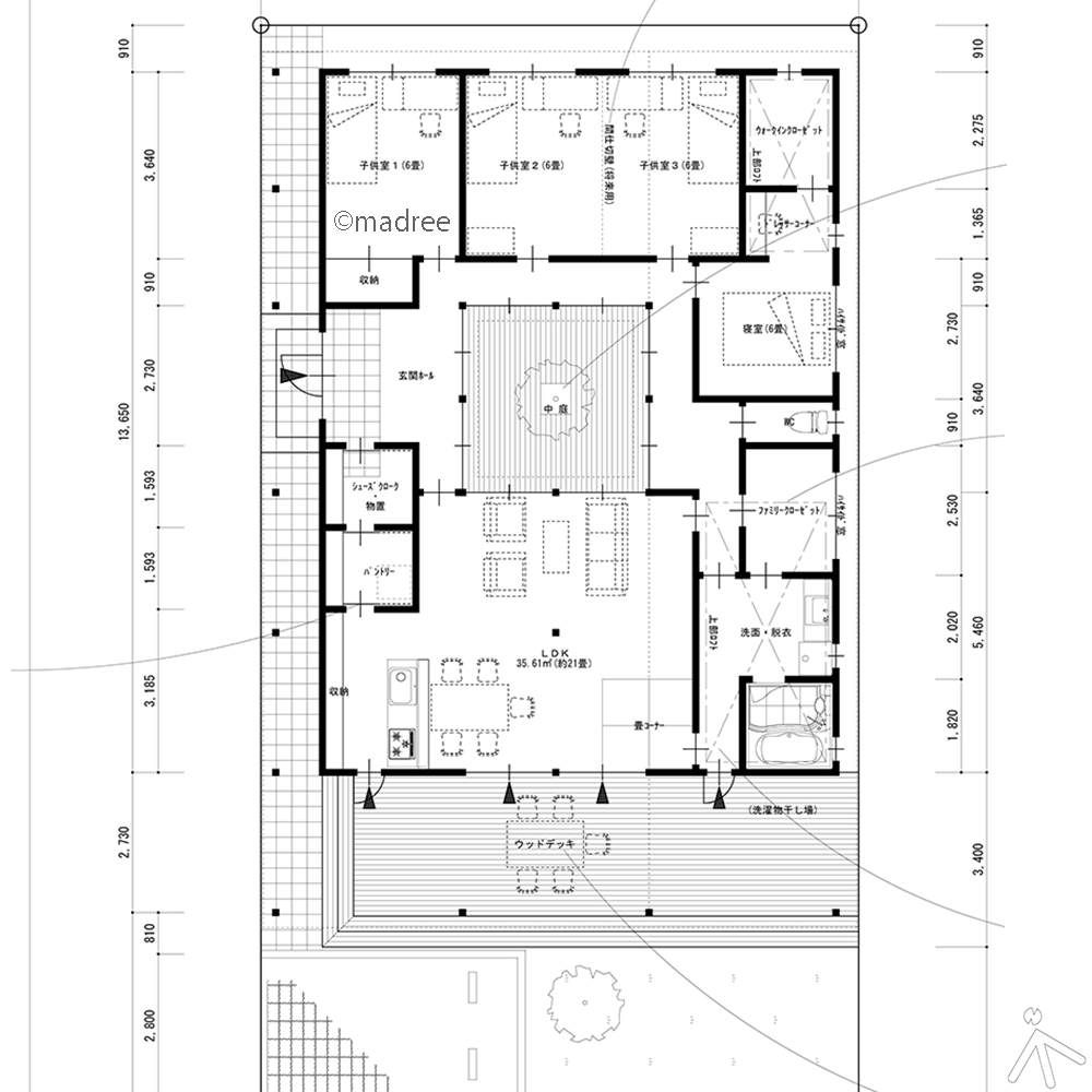
中庭の間取り一覧
家族や自分の”好き”を叶える注文住宅の間取りが見つかる!暮らしの要望をもとに全国の建築家が作成した中庭の間取りを238件公開しています。毎日更新中!
-
- 25坪
- 2LDK
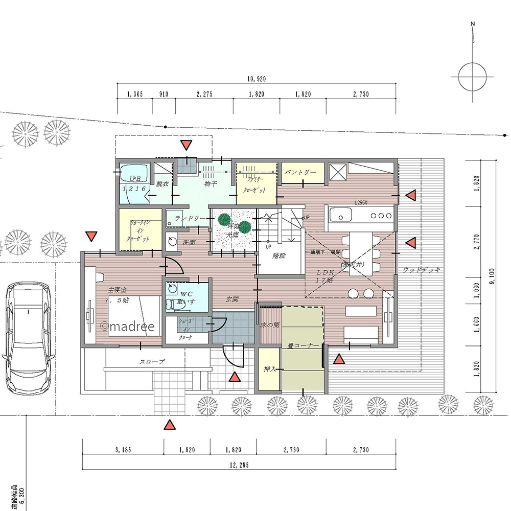
リフォームを視野に広さを確保、水廻りを集約したコンパクト家事動線の平屋
-
- 38坪
- 4LDK
中庭につづく土間と吹抜が開放感生み出す、おしゃれに魅せる上手な空間使いの家
-
- 35坪
- 5LDK
中庭と吹抜で視線が広がる、外部の視線を遮りつつも開放感のある家
-
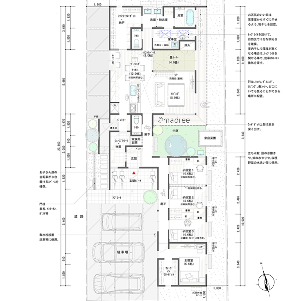
- 43坪
- パントリー
光庭テラスに面した生活空間、吹抜から各世帯の気配感じる二世帯住宅
-
- 42坪
- 5LDK
リビングから視線が抜ける中庭と、食事楽しむプライベート庭のある家
-
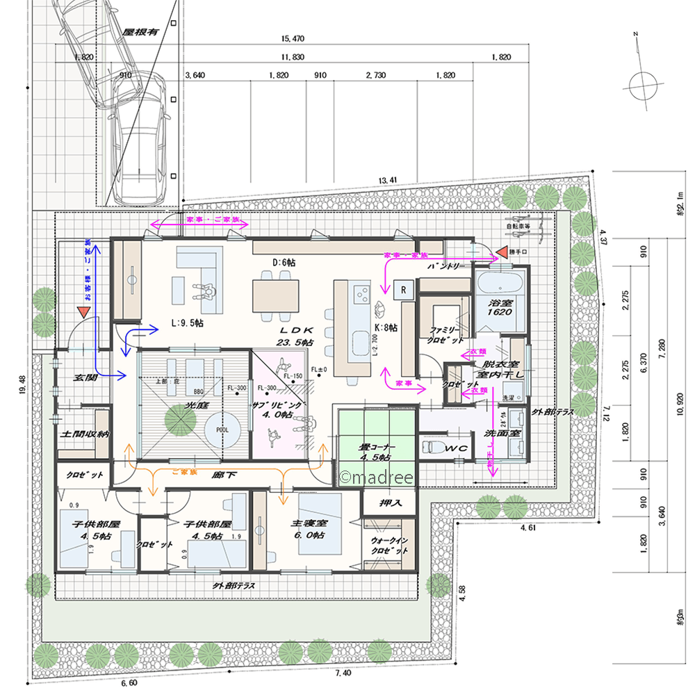
- 66坪
- 6LDK
吹抜と窓越しにお互いを感じる、2階中央に半個室のコートヤードがある家
-
- 48坪
- 4LDK
視界広がる中庭と吹抜で家族つながる、にぎやかな声が響く遊びのある家
-
- 57坪
- 6LDK
老後はイキイキ趣味を楽しむ、気兼ねせず過ごすパーソナル空間のある家
-
- 73坪
- 2LDK
気楽に行き来できる良い距離感、明るい日差しと海風を感じられる二世帯住宅
-
- 38坪
- 3LDK
縦横広がる大空間リビングで家族憩う、隣家の視線カットしたコの字の家
-
- 36坪
- 2LDK
生活動線上にある憩いの場、ガラス窓の向こうに家族の気配を感じられる平屋
-
- 37坪
- 3LDK
中庭で明るさとプライバシーを確保、隣家の視線カットした平屋
-
- 39坪
- 2LDK
家事シェアしやすいコンパクト動線、中庭とトップライトで明るい縦長平屋
-
- 40坪
- 4LDK
開口窓越しの陽だまり縁側、コの字に囲まれたプライベート中庭のある家
-
- 44坪
- 4LDK
四面窓越しのプライベート空間、スムーズに家事対応できる中央光庭のある家
-
- 59坪
- 5LDK
吹抜やトップライトで採光確保、階段でLDKをゆるく空間分けした家
-
- 51坪
- 5LDK
中庭からの光と風が心地よい、緑豊かで人が集まる賑やかな家
-
- 33坪
- 3LDK
四季折々を感じる憩いの中庭と、家事ラクぐるぐる動線の平屋
-
- 59坪
- 4LDK
通り道の中庭が生活を結ぶ、視線気にせず開放感味わうコの字型コートハウス
-
- 38坪
- 4LDK
荷物も花粉も持ち込まない、LDK前の身支度動線で自然とスッキリ整う家
-
- 39坪
- 2LDK
玄関を中心にON/OFFで棟分け、テラスからも北棟と南棟を回遊できる平屋
-
- 36坪
- 3LDK
中庭アウトドアテラスに面した開口窓から、LDKの隅々まで光届く家
-
- 43坪
- 4LDK
中庭から隅々まで光が届く、開放感とプライバシーのいいとこ取りの平屋
-
- 37坪
- 3LDK
中庭を囲む明るい生活空間、自然を近くに感じながら過ごす平屋
マドリー開発の『住宅営業支援ツール』
madreeデータバンク
マドリーの人気間取り4,800プランを接客・提案に活用できる営業支援ツール
- 競合他社と差がつく、スピード提案
- トレンド間取りで、集客・受注数UP
- 建築家のアイデアを参考に、質の高い提案ができる
