洗面所広めの間取り一覧
家族や自分の”好き”を叶える注文住宅の間取りが見つかる!暮らしの要望をもとに全国の建築家が作成した洗面所広めの間取りを741件公開しています。毎日更新中!
-
- 60坪
- 2LDK
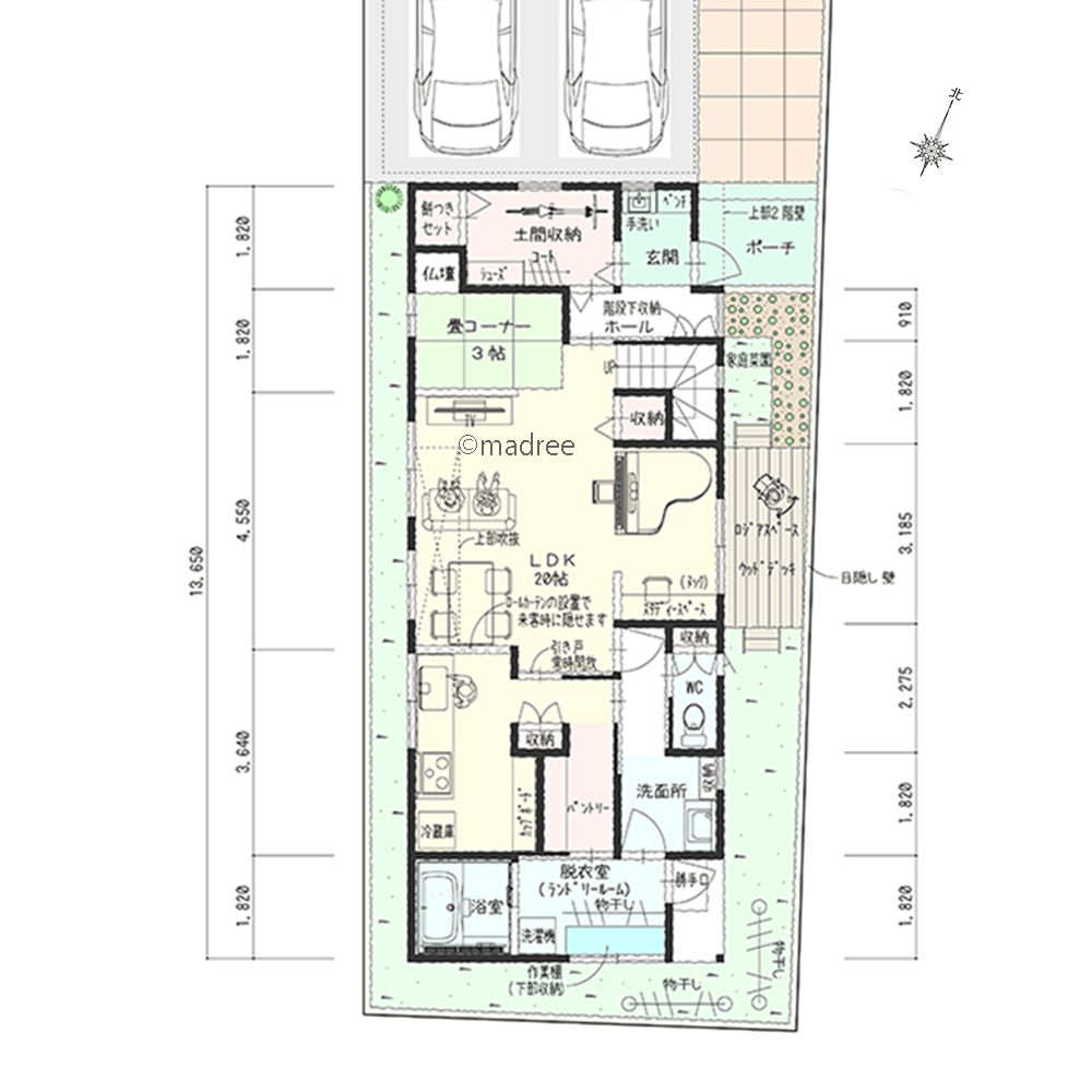
ひとり時間と家族時間それぞれ楽しむ、身近に外空間感じる二世帯住宅
-
- 46坪
- 4LDK
兼用の土間収納で搬入楽らく、家族だけに広がる開放感を店舗から隠せる平屋
-
- 55坪
- 4LDK
子どもと一緒に趣味を楽しむ、LDKから繋がるテラスと剣道場のある家
-
- 40坪
- 4LDK
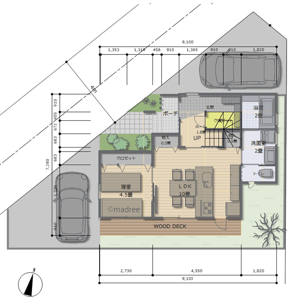
1階完結の生活動線で老後まで快適、プライベートな光庭テラスへ風の抜ける家
-
- 34坪
- 1LDK
視線を気にせず眺望を楽しむ、リビングで1日の太陽の動きを感じられる家
-
- 34坪
- 1LDK
生活音を気にせずストレスフリーに過ごす、三角変形地の3階建て二世帯住宅
-
- 71坪
- 4LDK
プライバシーに配慮したおもてなし動線で、ゲストと豊かな時間過ごす家
-
- 42坪
- 3LDK
多回遊動線が生活を楽にする、自然を感じながら人を繋ぐ屋根付きテラスのある平屋
-
- 30坪
- 3LDK
今日の気分で出勤場所を選択できる、ON/OFF両方で心地よく過ごせる居場所のある家
-
- 41坪
- 3LDK
土間収納から水廻りへウォークスルーで直線移動、サッと片付く裏動線のある家
-
- 33坪
- 3LDK
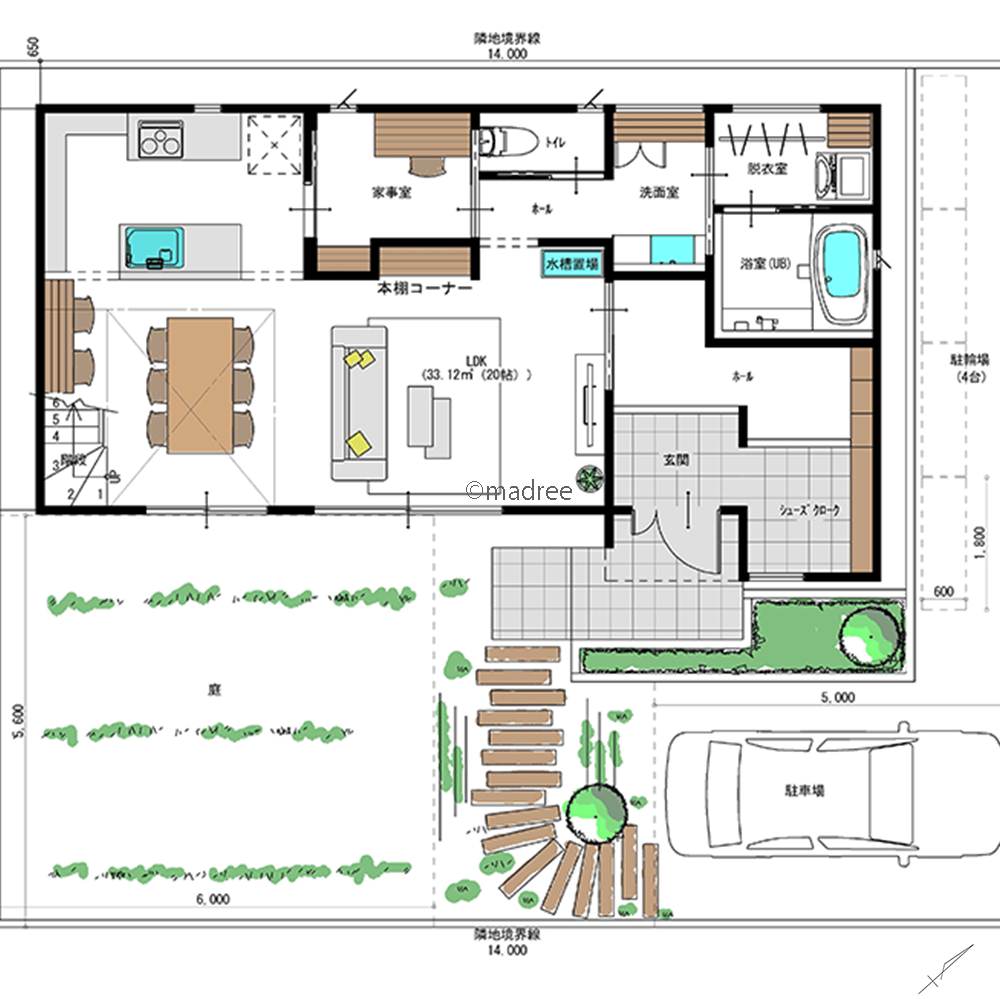
暮らしを楽にするスムーズな家事動線、プライバシーを守りながらも開放感を両立した家
-
- 38坪
- 3LDK
光と風を四方からたっぷり取り込む、自然の力活かしたパッシブデザインの家
-
- 66坪
- 2LDK
生活は別でもお互いが安心できる距離感、玄関のみ共有で過ごす二世帯住宅
-
- 41坪
- 4LDK
視線を気にせず家族で庭キャンプを満喫、好きな時間にアウトドアを楽しめる家
-
- 41坪
- 4LDK
行き止まりない回遊空間で広がり生まれる、緑に囲まれた庭を臨む家
-
- 27坪〜30坪
- 3LDK
空間を有効活用し開放感生み出す、収納と動線重視の狭小地3階建て住宅
-
- 42坪
- 4LDK
アウトドアテラスでホッと一息、屋外空間を身近に楽しむ平屋風暮らしの家
-
- 45坪
- 4LDK
上手に気持ちを切り替える工夫、ON/OFFを別空間で過ごせる台形地の家
-
- 32坪
- 3LDK
家族の近くで安心して過ごせる、介助介護を見据えたシンプル生活動線の平屋
-
- 42坪
- 4LDK
壁を少なくカーテンでフレキシブルに対応、動線良く繋がる介護を見据えた家
-
- 36坪
- 3LDK
一体感の生まれる平屋のような暮らし、広くて開放的な真ん中LDKのある家
-
- 47坪
- 3LDK
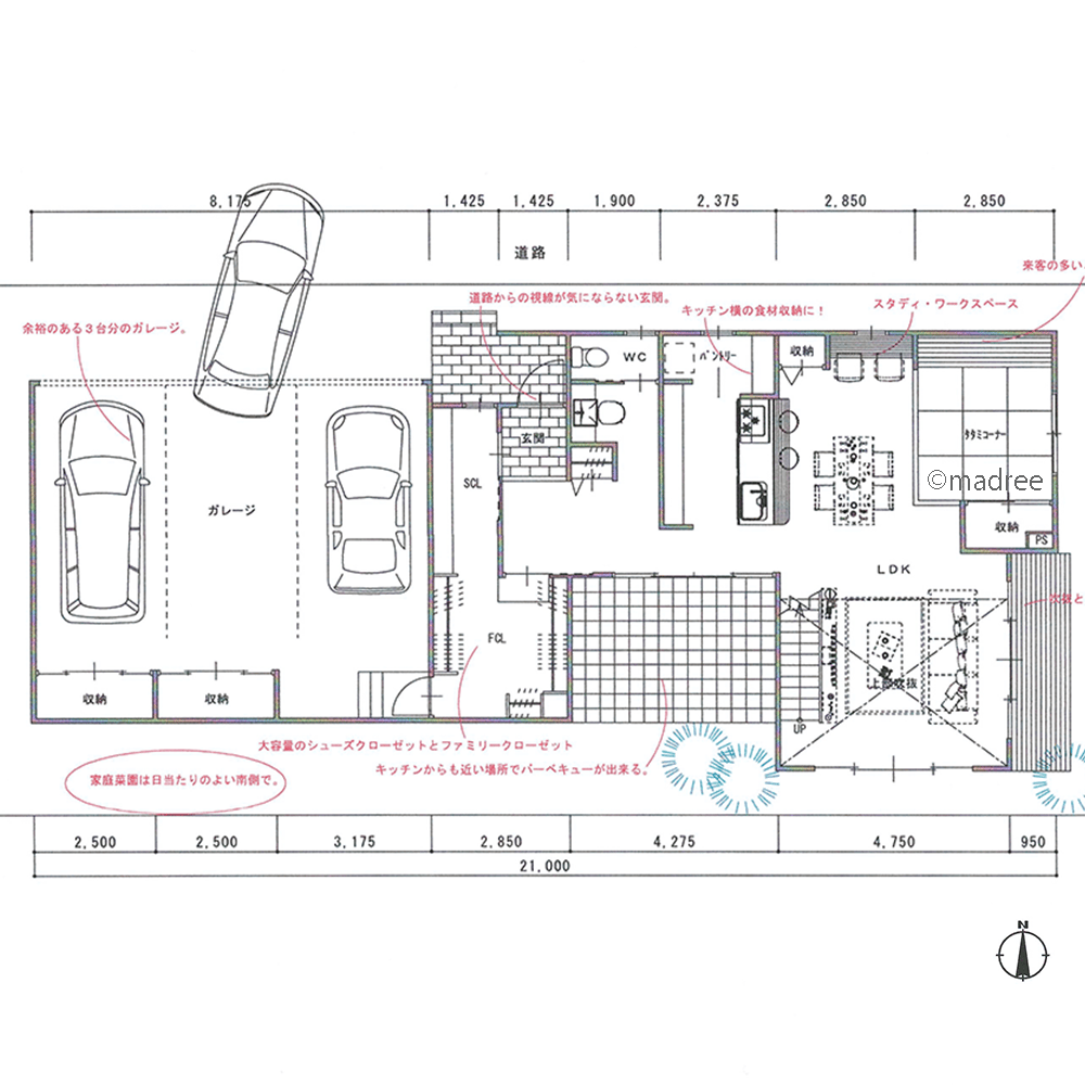
アウトドア用品の収納は玄関が◎!土間と納戸で玄関先がスッキリ片付く家
-
- 58坪
- 6LDK
回遊動線で家事時間を短縮!開放的な自分時間を過ごせる平屋風暮らしの家
-
- 52坪
- 2LDK
子育てしながら別階で在宅ワーク、気持ちにメリハリのでる事務所併設の家
マドリー開発の『住宅営業支援ツール』
madreeデータバンク
マドリーの人気間取り4,800プランを接客・提案に活用できる営業支援ツール
- 競合他社と差がつく、スピード提案
- トレンド間取りで、集客・受注数UP
- 建築家のアイデアを参考に、質の高い提案ができる
