リビング階段の間取り一覧
家族や自分の”好き”を叶える注文住宅の間取りが見つかる!暮らしの要望をもとに全国の建築家が作成したリビング階段の間取りを1232件公開しています。毎日更新中!
-
- 42坪
- 5LDK
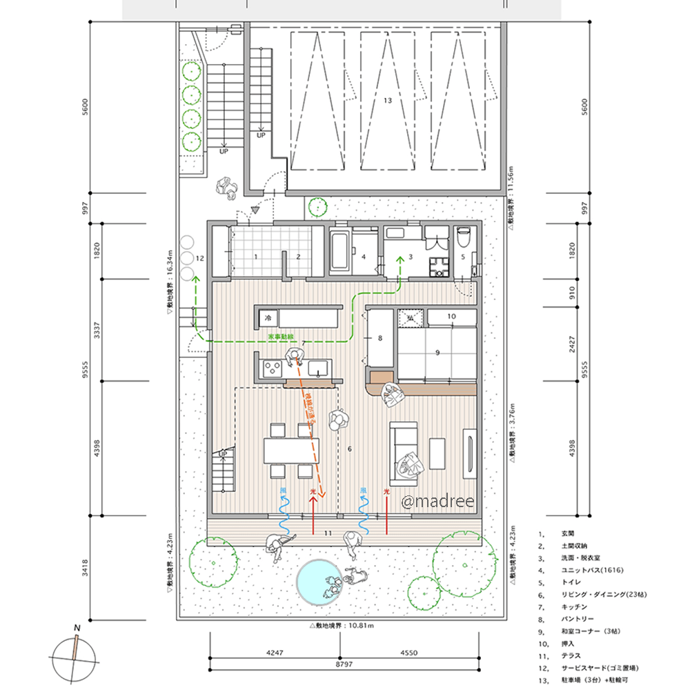
開口窓と吹抜で光と風たっぷり感じる、裏動線の家事ですっきり整う家
-
- 40坪
- 3LDK
開口窓で庭の自然を近くに感じる、心地よいLDKでのびのびと過ごす家
-
- 35坪
- 4LDK
三世帯どこからもアクセス良好、明るいLDKに自然と家族の足が向かう家
-
- 33坪
- 3LDK
生活リズムのズレは別動線でカバー、家族も犬も伸びやかに過ごす二世帯住宅
-
- 65坪
- 4LDK
中庭へと繋がるゆったり空間、建物中央から光届ける縦長コートハウス
-
- 34坪
- 2LDK
屋外スペースをON/OFFで使い分け、生活感なくベランピング楽しむ家
-
- 49坪
- 5LDK
コレクションを飾って楽しむ、充実収納とギャラリー空間のある家
-
- 40坪
- 4LDK
キッチンから一直線の洗濯動線と、各所の収納で暮らしが整う家
-
- 36坪
- 2LDK
備え付け収納で掃除がしやすく生活整う、キッチン中心ぐるぐる家事動線の家
-
- 27坪〜30坪
- 4LDK
家族集まる明るい2階リビングと、インナーガレージで夢叶える狭小地の家
-
- 31坪
- 2LDK
急な来客もブラインドで対応、フレキシブルに隠せるスッキリLDKの家
-
- 21坪〜24坪
- 1LDK
圧迫感なく空間繋がる、床の高さに変化を付けた自然と目線の合う家
-
- 35坪
- 3LDK
土間の趣味ディスプレイを臨む、家族がぐっと近づく温もりリビングの家
-
- 40坪
- 3LDK
ボーダーレスのワイドデッキで愛犬とのびのび過ごす、内外つながる回遊動線の家
-
- 39坪
- 5LDK
直線LDKに変化をつける、ピットリビングで空間の広がり感じる家
-
- 36坪
- 3LDK
コンパクトに集約した生活動線で、暮らしにゆとり生まれる家事楽な家
-
- 33坪
- 3LDK
フェンスで囲むプライベート空間、LDKから目の届く安心の緑庭がある家
-
- 35坪
- 2LDK
充実ランドリーで大量の衣類もスッキリ、伸びやかな子育てができる内外つながる家
-
- 35坪
- 3LDK
四季折々感じる空間でリラックスタイム、日常にメリハリつける在宅ワーカーの家
-
- 38坪
- 2LDK
キッチンからのコンパクト動線で、複数の家事をスムーズにこなす家
-
- 36坪
- 4LDK
縦にも屋外にも広がる大空間、広々LDKでホームパーティー楽しむ家
-
- 32坪
- 4LDK
適材適所の収納ですっきり片付く、廊下少なく最大限に土地活用した家
-
- 36坪
- 3LDK
コンパクト回遊家事と帰宅動線で、家族時間生み出す共働き応援の家
-
- 38坪
- 3LDK
キッチン中心ぐるぐる動線で生活向上、4兄妹が集う子どもリビングのある家
マドリー開発の『住宅営業支援ツール』
madreeデータバンク
マドリーの人気間取り4,800プランを接客・提案に活用できる営業支援ツール
- 競合他社と差がつく、スピード提案
- トレンド間取りで、集客・受注数UP
- 建築家のアイデアを参考に、質の高い提案ができる
