2WAY玄関の間取り一覧
家族や自分の”好き”を叶える注文住宅の間取りが見つかる!暮らしの要望をもとに全国の建築家が作成した2WAY玄関の間取りを1491件公開しています。毎日更新中!
-
- 55坪
- 2LDK
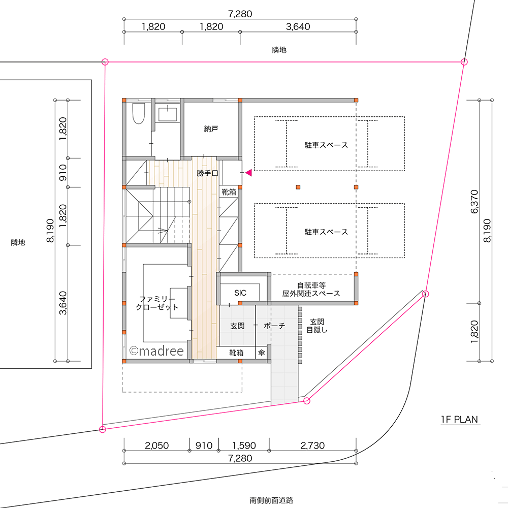
親子の時間をたくさん共有し、空間でオンオフ切替える4階建ての家
-
- 50坪
- 4LDK
家族団欒とプライベートを両立、多様な生活スタイル対応の多世帯で住む家
-
- 39坪
- 3LDK
家中を気持ち良くショートカット、回遊動線で行きたい場所が近く感じる家
-
- 44坪
- 3LDK
日常とプライベートを分節配置、扉の向こうに少し特別感のある縦長土地の平屋
-
- 41坪
- 3LDK
キッチンと並んだ楽家事動線、土間仕上げのパントリーで庭からも楽に整う家
-
- 33坪
- 2LDK
カーテンなしでも安心の陽だまりLDKで、開放的にプライベート時間過ごす家
-
- 37坪
- 4LDK
横長LDKから一体的に広がる、室内の延長として過ごせるウッドデッキのある家
-
- 36坪
- 3LDK
急な来客でもサッと目隠し、パーテーションでキッチンが独立空間になる家
-
- 36坪
- 3LDK
主寝室を中心に動線繋がる、コンパクトに生活が整うほぼ平屋暮らしの家
-
- 57坪
- 3LDK
緑が囲む屋内外のゆったり空間、繋がるテラスで人も犬も出入り楽らくな家
-
- 39坪
- 2LDK
家事シェアしやすいコンパクト動線、中庭とトップライトで明るい縦長平屋
-
- 34坪
- 4LDK
光と風を呼びこむ開放的なLDK、on/offメリハリある暮らし実現の平屋
-
- 35坪
- 6LDK
大空間で家族のつながり感じる、開口窓と吹抜で視界が抜ける家
-
- 36坪
- 3LDK
スキップフロアの空間を楽しむ、自然の中で伸びやかに過ごすアウトドア派の家
-
- 37坪
- 3LDK
おもてなし動線で和室へ直行、家族がLDKでゆったり過ごせるの三角地の家
-
- 81坪
- 4LDK
ガレージから庭まで一体空間!フルオープンサッシで1階すべてが繋がる家
-
- 40坪
- 4LDK
開口窓越しの陽だまり縁側、コの字に囲まれたプライベート中庭のある家
-
- 44坪
- 4LDK
四面窓越しのプライベート空間、スムーズに家事対応できる中央光庭のある家
-
- 59坪
- 5LDK
吹抜やトップライトで採光確保、階段でLDKをゆるく空間分けした家
-
- 51坪
- 5LDK
中庭からの光と風が心地よい、緑豊かで人が集まる賑やかな家
-
- 27坪
- 3LDK
お互いのスタイルを大切にした夫婦2人の暮らし、バリアフリーを意識した廊下のない平屋
-
- 25坪
- 2LDK
回遊性で苦手な掃除もラクラク、平屋のようにも使えるリビング中心の家
-
- 57坪
- 3LDK
湖辺の自然豊かな景観に溶け込む、アウトドア好きの家事ラク動線な家
-
- 46坪
- 4LDK
全力で遊んだ後は浴室へ直行、裏の生活動線でスッキリ見せる家
マドリー開発の『住宅営業支援ツール』
madreeデータバンク
マドリーの人気間取り4,800プランを接客・提案に活用できる営業支援ツール
- 競合他社と差がつく、スピード提案
- トレンド間取りで、集客・受注数UP
- 建築家のアイデアを参考に、質の高い提案ができる
