リビング吹抜なしの間取り一覧
家族や自分の”好き”を叶える注文住宅の間取りが見つかる!暮らしの要望をもとに全国の建築家が作成したリビング吹抜なしの間取りを1280件公開しています。毎日更新中!
-
- 31坪
- 2LDK
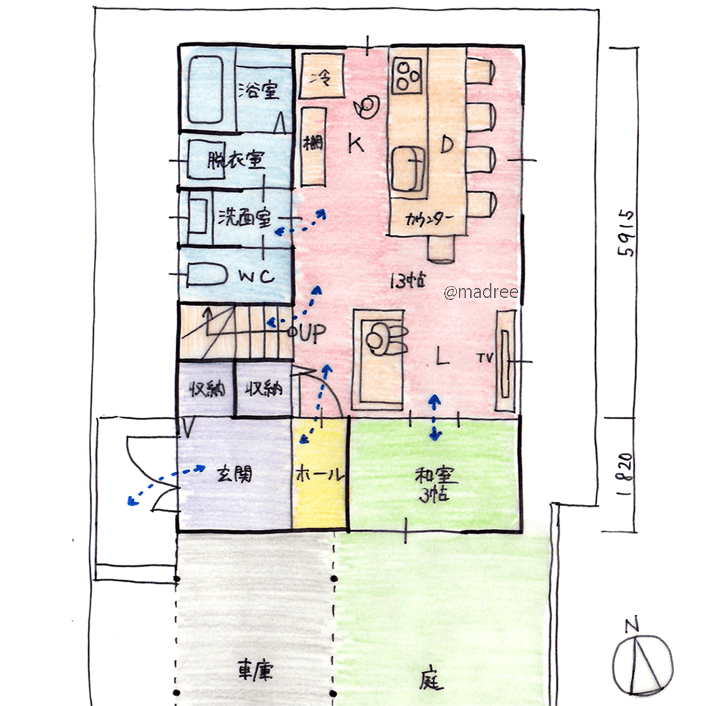
急な来客もブラインドで対応、フレキシブルに隠せるスッキリLDKの家
-
- 35坪
- 3LDK
土間の趣味ディスプレイを臨む、家族がぐっと近づく温もりリビングの家
-
- 36坪
- 3LDK
コンパクトに集約した生活動線で、暮らしにゆとり生まれる家事楽な家
-
- 35坪
- 3LDK
パントリー中心に生活を繋ぐ、家事を楽にする便利な回遊動線の家
-
- 33坪
- 3LDK
フェンスで囲むプライベート空間、LDKから目の届く安心の緑庭がある家
-
- 35坪
- 3LDK
四季折々感じる空間でリラックスタイム、日常にメリハリつける在宅ワーカーの家
-
- 36坪
- 2LDK
充実裏動線でスッキリLDKをキープ、夫婦各々の趣味も楽しむ遊び心ある家
-
- 62坪
- 3LDK
自室でのプライベートも大切に、週末は屋上でアウトドア愉しむ二世帯住宅
-
- 35坪
- 3LDK
家族との距離感を意識し、自分時間も大切に過ごす平屋の二世帯住宅
-
- 27坪〜30坪
- 3LDK
生活の中に自然感じる、コンパクトに動線を繋ぐ平屋風暮らしの家
-
- 36坪
- 3LDK
デッキ一体の明るい1階で生活完結、暮らしやすいちょっとした工夫を散りばめた家
-
- 41坪
- 4LDK
キッチンから全体を見渡せて安心、大活躍の畳スペースに人が集まる家
-
- 40坪
- 3LDK
隠す収納と配置でスッキリ見せる、おしゃれなヌックでホッと一息できる家
-
- 38坪
- 3LDK
キッチン中心ぐるぐる動線で生活向上、4兄妹が集う子どもリビングのある家
-
- 33坪
- 2LDK
スムーズに一日が始まる回遊動線、家族がつながる中庭一体のリビングの平屋
-
- 40坪
- 3LDK
子どもは自由に大人は安心の、快適プライベートな外部土間がある家
-
- 27坪〜30坪
- 2LDK
横長デッキと繋がる快適回遊LDK、陽だまりリビングでゆったり過ごす平屋
-
- 46坪
- 1LDK
家族それぞれお気に入り空間見つかる、遊び心たっぷりのコンパクト二世帯住宅
-
- 36坪
- 3LDK
廊下なくして空間活用、フレキシブルにサッと隠せる引き戸で繋がる家
-
- 49坪
- 6LDK
屋上に広がるプライベート空間、スカイバルコニーで快適な週末過ごす家
-
- 41坪
- 4LDK
晩酌スペースで夜のお楽しみタイム、来客も気軽に泊まれるくつろぎの家
-
- 41坪
- 3LDK
ワイドテラスとつながり開放感UP、キッチン中心にぐるぐる家事動線の平屋
-
- 42坪
- 5LDK
そっと見守る良い距離感、自分時間に没頭するパーソナルスペースのある平屋
-
- 30坪
- 4LDK
ON/OFF分けたメリハリある暮らし、回遊動線でストレスなく繋がる平屋
マドリー開発の『住宅営業支援ツール』
madreeデータバンク
マドリーの人気間取り4,800プランを接客・提案に活用できる営業支援ツール
- 競合他社と差がつく、スピード提案
- トレンド間取りで、集客・受注数UP
- 建築家のアイデアを参考に、質の高い提案ができる
