リビング吹抜なしの間取り一覧
家族や自分の”好き”を叶える注文住宅の間取りが見つかる!暮らしの要望をもとに全国の建築家が作成したリビング吹抜なしの間取りを1346件公開しています。毎日更新中!
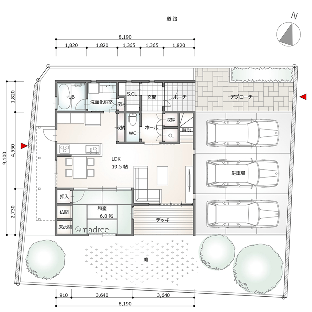
-
- 31坪
- 3LDK
帰宅後はまずお風呂できれいさっぱり、光と緑が差し込む遊びある2階LDKの家
-
- 42坪
- 4LDK
キレイが続く片付けやすい適材適所の収納と、親子の距離がぐんと近くなる床座生活の家
-
- 39坪
- 5LDK
水廻りとファミクロをぐるっと回って朝支度、どの部屋にも陽が入る平屋の二世帯住宅
-
- 43坪
- 3LDK
天気も視線も気にしない、陽当たり良い2階にサンルームにもなる洗濯部屋のある家
-
- 36坪
- 3LDK
縦にも奥にも広がる開放感、家族のコミュニケーションがリビング階段から生まれる家
-
- 33坪
- 2LDK
気分も上がる共有スペース、中2階にセカンドリビングのある空間の変化を楽しむ家
-
- 30坪
- 2LDK
こだわりのコーヒーを片手にゆっくり読書、四季感じるおしゃれカフェのような平屋
-
- 60坪
- 4LDK
季節問わず思いっきり体を動かせる、子どもの夢叶える遊びの詰まった家
-
- 27坪〜30坪
- 3LDK
生活感を一瞬で消してオシャレキッチンに、リビングとつながるフラットバルコニーのある家
-
- 63坪
- 2LDK
玄関も隣り合わない独立した生活動線、すぐに助け合える距離感で暮らす二世帯住宅
-
- 36坪
- 2LDK
扉を開けるとテラスまで繋がるワンフロア空間、土間からパッと眺望広がる家
-
- 39坪
- 3LDK
家のどこからでも自然を感じる、コの字の建物に囲まれたプライベート中庭のある家
-
- 36坪
- 2LDK
洗濯物が視界に入らないリビングと、眺望のきく書斎の憩い空間ある家
-
- 75坪
- 3LDK
お互い暮らしを尊重しながら助け合える、店舗を併設した完全分離の多世帯で住む家
-
- 36坪
- 4LDK
毎日の家事がぐっと楽になる、無駄な動きが少ないコンパクトな生活動線の平屋
-
- 44坪
- 3LDK
在宅ワーク中でもチラッと家族を確認、2階リビングに併設したワークスペースのある家
-
- 32坪
- 2LDK
開口窓から採光デッキへ広がる一体感、ゆったりとした空間で老後を快適に過ごす平屋
-
- 41坪
- 2LDK
高窓から美しい光が差し込む、緑豊かな里山の伸びやかな平屋
-
- 52坪
- 1LDK
家族の気配を感じる程の距離感が心地良い、生活音を気にせず自由気ままに暮らす二世帯住宅
-
- 40坪
- 4LDK
コンパクトでもスッキリな充実収納、近隣を気にせず屋上テラスでアウトドア時間過ごす家
-
- 44坪
- 3LDK
ファミクロ中心で家事も身支度もスムーズに、自立心を育む快適動線の家
-
- 39坪
- 3LDK
収納を充実させた回遊できる家事動線、一体感が心地良い庭と眺望を楽しむ家
-
- 36坪
- 3LDK
広い土間収納で嵩張る荷物もスッキリ片付く、デイキャンプ楽しむアウトドア好きの家
-
- 30坪
- 2LDK
心地良い空間に自然と集まる、お互い自由な過ごし方を楽しむ畳リビングのある家
マドリー開発の『住宅営業支援ツール』
madreeデータバンク
マドリーの人気間取り4,800プランを接客・提案に活用できる営業支援ツール
- 競合他社と差がつく、スピード提案
- トレンド間取りで、集客・受注数UP
- 建築家のアイデアを参考に、質の高い提案ができる
