朝日の入る主寝室の間取り一覧
家族や自分の”好き”を叶える注文住宅の間取りが見つかる!暮らしの要望をもとに全国の建築家が作成した朝日の入る主寝室の間取りを953件公開しています。毎日更新中!
-
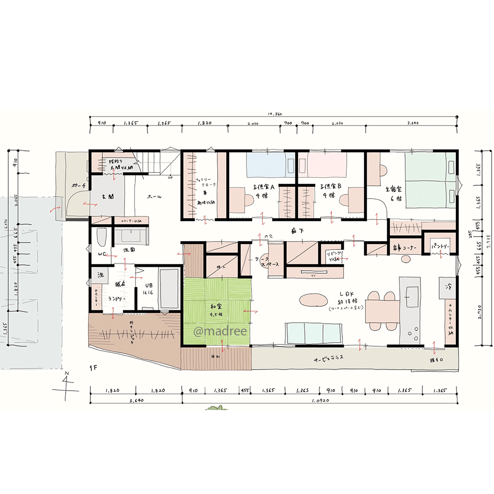
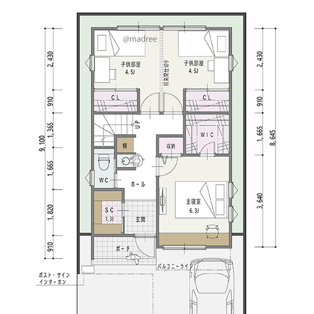
- 33坪
- 3LDK
ファミクロ経由の便利な回遊性、ウォークスルーで無駄なく暮らし整う家
-
- 60坪
- 2LDK
ガレージから繋がる2箇所の玄関、家族動線と混らず自宅教室へ向かう家
-
- 36坪
- 3LDK
屋外空間で気軽に寛ぐ、2階LDKと繋がる快適インナーバルコニーのある家
-
- 41坪
- 3LDK
キッチン中心にぐるっと回遊家事、デットスペースも大活用した機能的な家
-
- 45坪
- 3LDK
ファミクロ回遊で家事と生活の効率化、将来はほぼ平屋のように使える家
-
- 36坪
- 3LDK
動線も居心地も家族と共に変化、レイアウトを自由に楽しむ縦長LDKの家
-
- 40坪
- 3LDK
コテージテラスでホッと一息、眺望良いキッチンが住まいの中心にある家
-
- 36坪
- 4LDK
回遊できる水廻りで朝の準備サクサク、プライバシー配慮した3面道路の家
-
- 60坪
- 5LDK
ダイナミックな中庭で魅せる来客動線、豊かな時間流れる自然に満ちた家
-
- 26坪
- 2LDK
壁面と床下収納で空間広く使う、日差しをたっぷり感じる2階リビングの家
-
- 36坪
- 4LDK
家族と過ごす時間が増える、効率良く家事を熟せる回遊動線のある家
-
- 36坪
- 3LDK
玄関から繋がる収納動線で、フレキシブルにサッと生活感隠せる家
-
- 40坪
- 4LDK
ホテルライクな自宅リゾート空間、自然の光で目覚める寝室吹抜のある家
-
- 43坪
- 3LDK
2階水廻りでLDK空間ゆったり、キッチン床を下げた縦の広がりを感じる家
-
- 31坪
- 2LDK
on/off切り替えやすい空間工夫、猫3匹と趣味堪能する夫婦の家
-
- 42坪
- 3LDK
北側のランドリールームは天窓で解決、一階で生活完結の植栽豊かな家
-
- 27坪
- 2LDK
南向きに外と繋がり開放感UP、中心のリビングに家族集う家
-
- 63坪
- 6LDK
プライベート充実する採光中庭で、気持ち穏やかに老後生活を過ごす家
-
- 44坪
- 5LDK
視覚的な空間の広がり感じる、床座ピットリビングに自然と家族集まる家
-
- 33坪
- 3LDK
眺望を生かして気持ち良く過ごす、屋外の景色を取り込む採風窓のある家
-
- 42坪
- 3LDK
介護を見据えたゆとりある空間、LDKで自然と顔を合わせる同居予定の二世帯住宅
-
- 37坪
- 2LDK
清潔を保つ帰宅後動線、動物アレルギーでもペットと快適に暮らす家
-
- 40坪
- 5LDK
豊かな緑と大きな吹抜で魅せるLDK、全方向に好アクセスのキッチン中心の家
-
- 34坪
- 3LDK
家中をぐるぐる簡単アクセス、動線ストレスなく暮らしやすい平屋
マドリー開発の『住宅営業支援ツール』
madreeデータバンク
マドリーの人気間取り4,800プランを接客・提案に活用できる営業支援ツール
- 競合他社と差がつく、スピード提案
- トレンド間取りで、集客・受注数UP
- 建築家のアイデアを参考に、質の高い提案ができる
