リビング吹抜なしの間取り一覧
家族や自分の”好き”を叶える注文住宅の間取りが見つかる!暮らしの要望をもとに全国の建築家が作成したリビング吹抜なしの間取りを1251件公開しています。毎日更新中!
-
- 44坪
- 3LDK
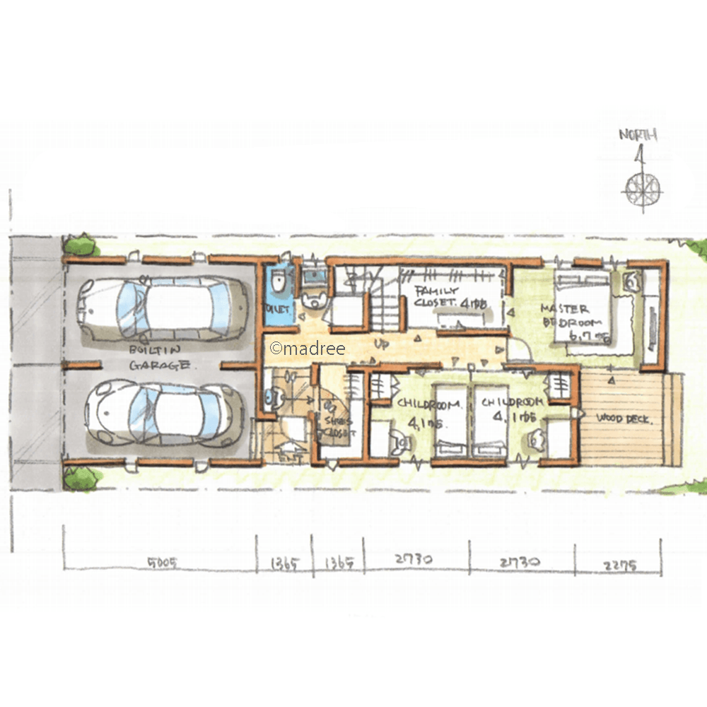
片付けをルーティン化した帰宅動線、いつでも来客ウェルカムな1階完結の家
-
- 39坪
- 4LDK
回遊家事で自分時間を生み出す、程よい距離で互いを見守る二世帯住宅
-
- 39坪
- 3LDK
共働きに嬉しいスムーズな回遊動線、風の抜ける爽やかなLDKで家族時間を過ごす家
-
- 42坪
- 6LDK
視線カットでプライベート感を創り出す、家族のつながりを感じる回遊LDKの家
-
- 21坪〜24坪
- 3LDK
家族それぞれの家時間を充実させる、大人3人で明るく暮らすコンパクトな家
-
- 32坪
- 3LDK
各所に使いやすい充実収納でキレイをキープ、光と風が通り抜ける2階リビングの家
-
- 27坪〜30坪
- 2LDK
余計な壁のないLDKだけの1階空間、気持ち良く風の抜けるL字の家族スペースがある家
-
- 27坪〜30坪
- 2LDK
土間を連続させた空間の広がり、玄関からダイニングキッチンまで同じ高さで繋がる家
-
- 32坪
- 2LDK
眺望を活かした空間で毎日気持ち良くお洗濯、吹抜に面した2階サンルームのある家
-
- 38坪
- 3LDK
アイランドキッチンで料理をおもてなし、大人数をお迎えする2階リビングの注文住宅
-
- 33坪
- 4LDK
建物の中心はストレスフリーな回遊キッチン、家族の顔を見ながらLDKでのんびり過ごす平屋
-
- 35坪
- 3LDK
キッチンから望む緑の趣味スペース、庭で家庭菜園もサッカー練習も楽しめる家
-
- 26坪
- 2LDK
フレキシブルな子ども部屋活用、間仕切りをなくすと2階がLDKの大空間になる家
-
- 33坪
- 4LDK
将来的にワンフロアで生活かつ夫婦別寝、ライフスタイルに寄り添う柔軟な家
-
- 43坪
- 2LDK
ダイニングキッチンを囲んで一家団欒、いつも家族を感じる心地良い2階LDKの家
-
- 36坪
- 4LDK
大きな窓から自然を感じる、和室越しに海を一望できるLDKがある注文住宅
-
- 47坪
- 6LDK
家族それぞれに癒しの篭り空間、パーソナルスペースで充実の時間を過ごす注文住宅
-
- 38坪
- 4LDK
土間収納から適所にサッと荷下ろし、時短家事で生まれたゆとり時間を楽しむ家
-
- 39坪
- 4LDK
3WAY玄関で各所にサクサク動ける、身も心もスッキリ整う片付け上手の帰宅動線の家
-
- 36坪
- 4LDK
森の小道のような癒しの玄関アプローチ、中央玄関から2つの庭へ眺望の広がる家
-
- 27坪
- 3LDK
細長い土地を玄関中心にゾーン分け、全個室に朝日の届く自然な目覚めが得られる平屋
-
- 25坪
- 3LDK
コンパクトなL字型の生活動線、共働きに嬉しい陽だまり2階サンルームのある家
-
- 32坪
- 3LDK
のびのび過ごす子どもをそっと見守る、親子の距離が程よい温かみある家
-
- 46坪
- 3LDK
視線が外に抜けるように意識した、北東の景色を望む2階リビングの家
マドリー開発の『住宅営業支援ツール』
madreeデータバンク
マドリーの人気間取り4,800プランを接客・提案に活用できる営業支援ツール
- 競合他社と差がつく、スピード提案
- トレンド間取りで、集客・受注数UP
- 建築家のアイデアを参考に、質の高い提案ができる
