駐車スペースたっぷりの間取り一覧
家族や自分の”好き”を叶える注文住宅の間取りが見つかる!暮らしの要望をもとに全国の建築家が作成した駐車スペースたっぷりの間取りを606件公開しています。毎日更新中!
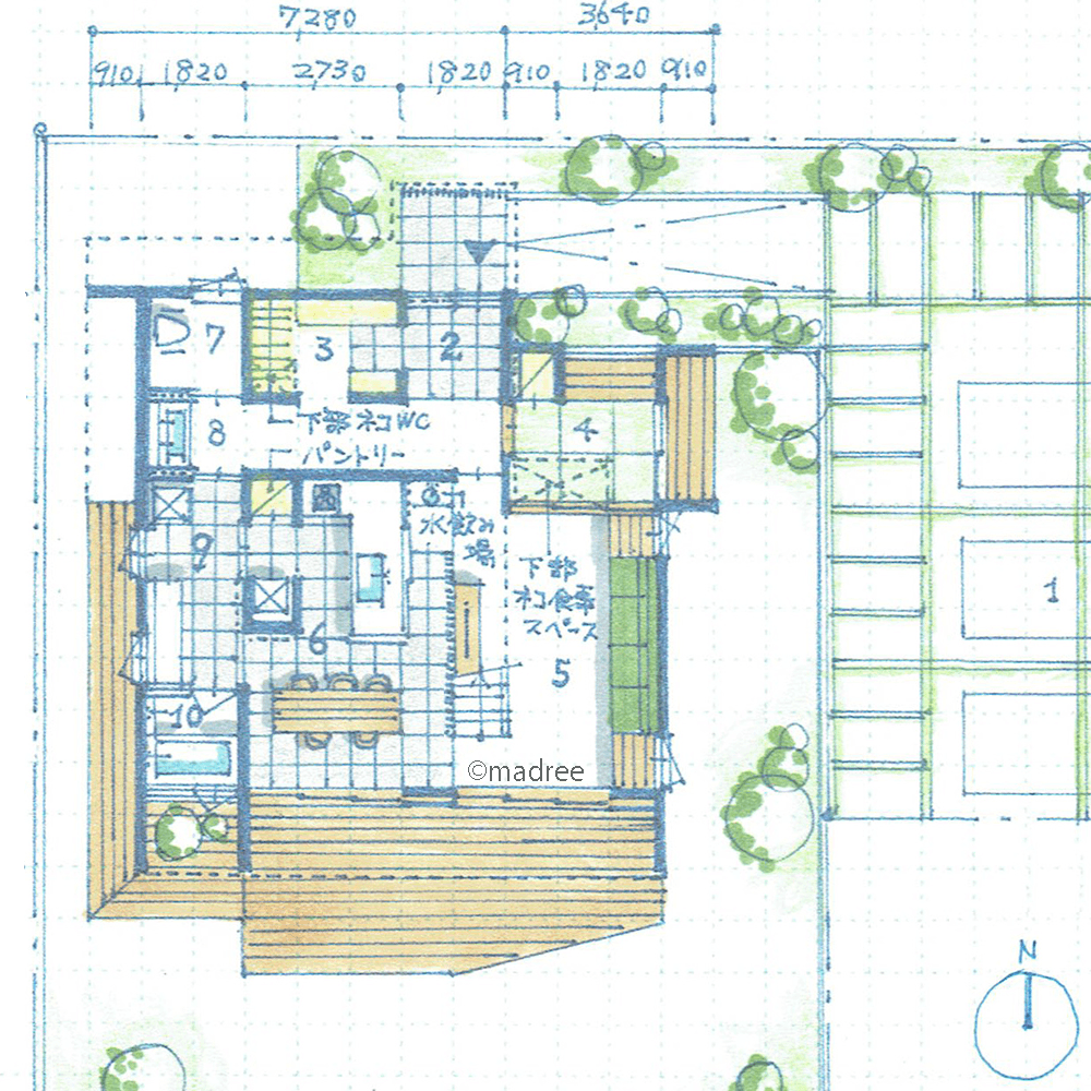
-
- 38坪
- 3LDK
料理動線と洗濯動線を完全に分けて、家事分担が楽にできる共働きに嬉しい家
-
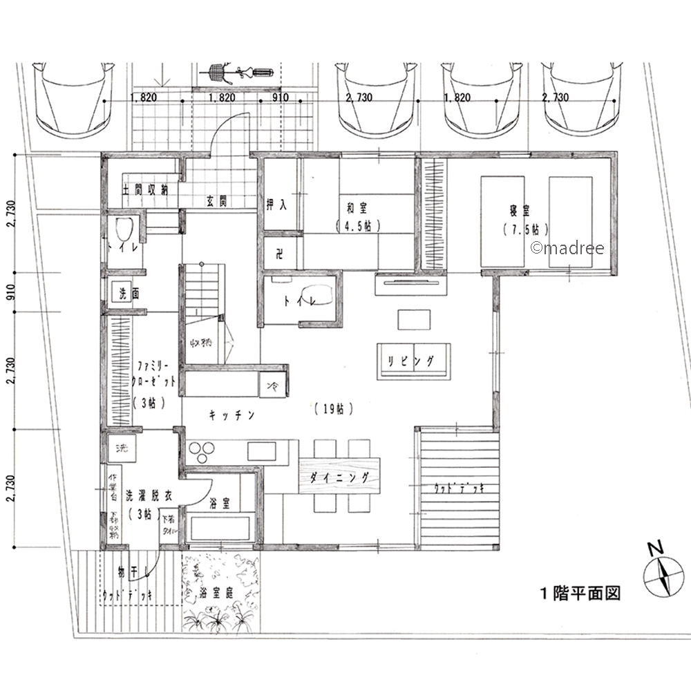
- 41坪
- 4LDK
庭の緑も取り込むゆったり空間、勾配天井で縦にも抜ける座リビングのある家
-
- 42坪
- 3LDK
坪庭から入れる汚れても安心な裏玄関、LDKを通らず浴室へ直行できる家
-
- 39坪
- 2LDK
ウッドデッキでゆとり時間過ごす、屋内外を緩やかに結ぶ開放感のある平屋
-
- 33坪
- 3LDK
繋がるコの字テラスで楽に出入り、愛犬も充実のプライベート時間過ごす家
-
- 41坪
- 4LDK
玄関から居室まで縦に長く一直線、日常とプライベートをシンプルに繋ぐ平屋
-
- 39坪
- 4LDK
風の抜けるスキップフロアのLDK、気持ちの良い空間に自然と家族集まる家
-
- 34坪
- 3LDK
壁をなくして土間とLDKを一体化、玄関を開けると驚きの開放感がある家
-
- 51坪
- 4LDK
天窓から光庭廊下へ採光届ける、吹抜を介して家族の気配を感じられる家
-
- 30坪
- 2LDK
シンプルで直線的なコンパクト動線、デッキを介して生活も家事も繋がる平屋
-
- 56坪
- 6LDK
適度な距離感で心地よく過ごす、介護しやすい回遊動線の二世帯住宅
-
- 32坪
- 3LDK
光と風が気持ち良く流れる、好きな陽だまりスポットで家時間を過ごす家
-
- 38坪
- 4LDK
2種類のシンプル動線で家事楽らく、横長LDKを気持ち良く風が抜ける家
-
- 54坪
- 4LDK
リゾートを感じるゆったり生活動線、庭のガゼボでリゾートらしさが増す家
-
- 44坪
- 3LDK
ウォークスルーで自然に片付く、回遊できる効率的な家事動線の家
-
- 38坪
- 3LDK
リビング吹抜が家族を繋ぐ、2階からそっと見守る書斎スペースのある家
-
- 37坪
- 4LDK
部屋の奥まで光が届く、自然と家族が顔を合わせる開放的なLDKの家
-
- 44坪
- 5LDK
眺望と採光をバランス良く、向かい合う庭と空間繋がる縦長LDKの家
-
- 44坪
- 4LDK
玄関直結パントリーでサッと片付く、収納重視した同居予定の二世帯住宅
-
- 44坪
- 2LDK
ホールから各個室へ直接アクセス、程よい距離感の二世帯住宅
-
- 34坪
- 4LDK
複数の回遊動線で作業効率UP、生活も家事もアクセス良く繋がる平屋
-
- 50坪
- 4LDK
フレキシブルに隠せる広がる、LDKが家族の一番居心地の良い場所になる平屋
-
- 41坪
- 4LDK
中心の吹抜で家族つながり感じる、広庭の緑を望むLDKの家
-
- 33坪
- 3LDK
和室をさまざまなシーンに大活用、自立促す家事ラク動線の家
マドリー開発の『住宅営業支援ツール』
madreeデータバンク
マドリーの人気間取り4,800プランを接客・提案に活用できる営業支援ツール
- 競合他社と差がつく、スピード提案
- トレンド間取りで、集客・受注数UP
- 建築家のアイデアを参考に、質の高い提案ができる
