標準的な設備の間取り一覧
家族や自分の”好き”を叶える注文住宅の間取りが見つかる!暮らしの要望をもとに全国の建築家が作成した標準的な設備の間取りを1451件公開しています。毎日更新中!
-
- 33坪~36坪
- 4LDK
採光や風通しなど外部空間との繋がりを意識した趣味や子育てを楽しめる家
-
- 39坪~42坪
- 4LDK
シンプルで開放的な空間をゆるく区切って程よく落ち着ける家
-
- 45坪~49坪
- 3LDK
縦長のライトコートで光・風・広い視線を確保した間取り
-
- 42坪~45坪
- 3LDK
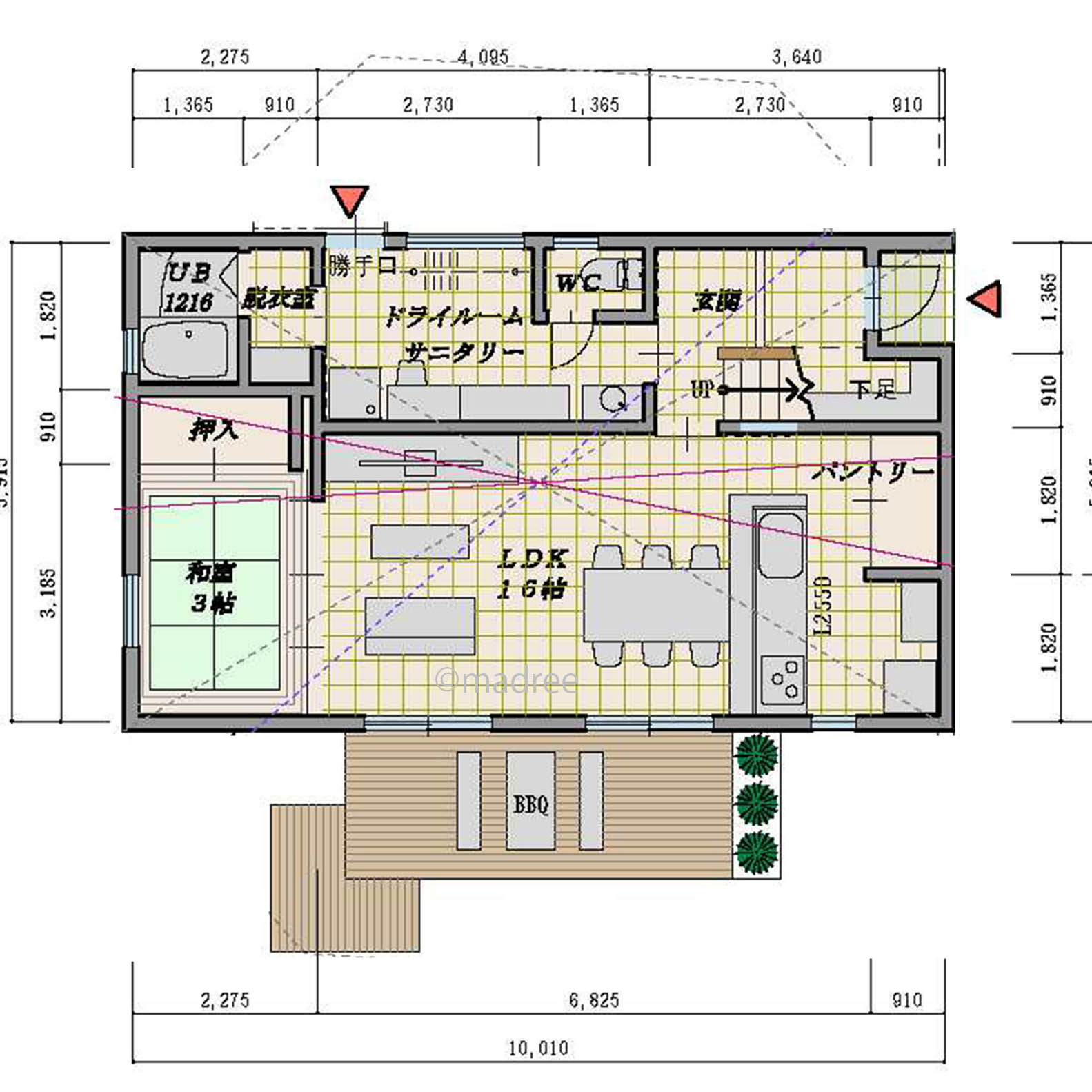
一直線家事動線で家事効率UP!採光をしっかり確保した居心地良いほぼ平屋
-
- 30坪~33坪
- 4LDK
プライバシーを考慮しつつ明るさと開放感があるシンプルで暮らしやすい間取り
-
- 39坪~42坪
- 3LDK
家族の「好き」が詰まった趣味や暮らしを楽しめる家
-
- 42坪~45坪
- 3LDK
狭小縦長の土地でも住み心地良い暮らしが叶うコートハウスタイプの家
-
- 33坪~36坪
- 3LDK
シンプル且つ効率的な動線で暮らしにゆとりが持てる間取り
-
- 39坪~42坪
- 3LDK
暮らしに寄り添う収納動線と家事動線で心地良く過ごせる家
-
- 30坪~33坪
- 4LDK
シンプルで機能的でありつつ、採光のあるお部屋と庭で心地良く過ごせる間取り
-
- 45坪~49坪
- 5LDK
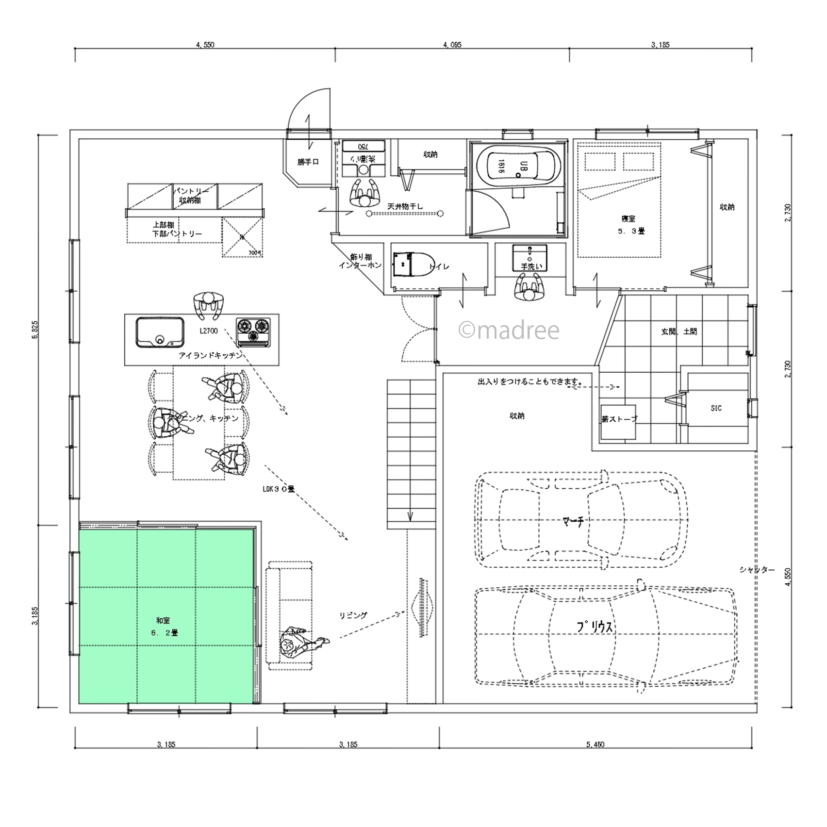
奥行き深い敷地でも機能的で住み心地良い暮らしが叶う間取り
-
- 30坪~33坪
- 3LDK
プライバシー性高いひだまりの庭でのんびり過ごせるコートヤード型住宅の間取り
-
- 42坪~45坪
- 3LDK
広い縁側で庭と繋がれて機能的な家事ラク動線充実の平屋
-
- 42坪~45坪
- 3LDK
家族が心地良く過ごせるスペースをコンパクト且つ機能的にまとめた間取り
-
- 30坪~33坪
- 2LDK
趣味を楽しむスペースや家事動線を充実させつつ安定して採光を取り込む明るい家
-
- 36坪~39坪
- 3LDK
シンプルな家事動線と収納力で暮らしやすく、ゆったりデッキで家族が繋がるほぼ平屋の間取り
-
- 31坪
- 4LDK
暮らしも家事もシンプルで心地良く!コンパクトで機能的な間取り
-
- 39坪~42坪
- 3LDK
適材適所の収納と洗濯ラク動線で暮らしが心地良く整う家
-
- 39坪~42坪
- 4LDK
ストレスフリーの快適家事ラク動線で充実した暮らしにゆとりが持てる家
-
- 39坪~42坪
- 4LDK
ファミリークローゼット中心で収納しやすい!日の当たるLDKでのんびり一家団らんできる家
-
- 39坪~42坪
- 4LDK
洗う・干す・しまうが快適な洗濯ラク動線と開放感があって落ち着けるリビングで寛げる家
-
- 39坪~42坪
- 4LDK
シンプルな家事動線と居心地良い2つのリビングで快適に暮らせる家
-
- 45坪~49坪
- 4LDK
光と風で心地良さに満たされる、吹き抜けで繋がる3階建ての家
-
- 33坪~36坪
- 2LDK
コンパクトな家事動線で効率良く捗り、ゆとりある時間を過ごせる家
マドリー開発の『住宅営業支援ツール』
madreeデータバンク
マドリーの人気間取り4,800プランを接客・提案に活用できる営業支援ツール
- 競合他社と差がつく、スピード提案
- トレンド間取りで、集客・受注数UP
- 建築家のアイデアを参考に、質の高い提案ができる
