一列に並んだ水廻りの間取り一覧
家族や自分の”好き”を叶える注文住宅の間取りが見つかる!暮らしの要望をもとに全国の建築家が作成した一列に並んだ水廻りの間取りを401件公開しています。毎日更新中!
-
- 40坪
- 3LDK
コの字で囲むプライベート空間、屋根のあるテラスで気持ち良くランチ楽しむ家
-
- 40坪
- 2LDK
キッチン周囲の充実収納、広々した作業スペースで夫婦一緒に料理楽しむ家
-
- 39坪
- 3LDK
どこにいても家族の様子を感じる、見晴らし良いLDK中心に生活の繋がる平屋
-
- 34坪
- 4LDK
買い物後の荷運びは勝手口から、家族だけの裏動線で家事時間を短縮できる家
-
- 32坪
- 2LDK
生活を豊かにする癒しの空間、インナーガレージで時間を気にせず趣味を楽しむ家
-
- 53坪
- 5LDK
車椅子でもストレスフリーの環境、大人数で気楽に過ごせる二世帯住宅
-
- 35坪
- 3LDK
それぞれの寝室に柔らかな朝日が届く、高窓からの自然光で心地よく目覚める家
-
- 21坪〜24坪
- 1LDK
飾って眺めて好きな物に囲まれて過ごす、生活の中で常に趣味を感じられる家
-
- 34坪
- 3LDK
2階は眠るだけのリラックス空間、コンパクトな回遊動線で家事が完結する家
-
- 50坪
- 3LDK
廊下をなくして裏動線を充実、空間にゆとり生まれるリラックスハウス
-
- 61坪
- 4LDK
大人数でも自分時間のある良い距離感、台形地を活かした2つの庭がある二世帯住宅
-
- 35坪
- 3LDK
ファミリーロッカーで毎日の身支度が楽になる、玄関近くに物の居場所がある家
-
- 42坪
- 4LDK
外と繋がるラク家事動線と、庭の眺望を取り込むアウトドアリビングの家
-
- 25坪
- 3LDK
自然光が気持ち良い2階LDKで、外からの視線を気にせずゆったりと暮らす家
-
- 42坪
- 4LDK
ファミクロ経由でLDKを綺麗に保つ、帰宅後に嬉しいサッと整う家族用動線の家
-
- 45坪
- 2LDK
大空間リビングで親子時間をたっぷり共有、裏動線とリビング収納で整う家
-
- 57坪
- 6LDK
老後はイキイキ趣味を楽しむ、気兼ねせず過ごすパーソナル空間のある家
-
- 62坪
- 4LDK
ガレージから庭まで回遊で楽らく、選択できるフレキシブルな家事動線の家
-
- 40坪
- 3LDK
別空間をデッキでつなぐ、どこか一体感のある二世帯住宅
-
- 32坪
- 2LDK
居室と生活を分けて快適に過ごす、明るい2階で家事完結できる縦長地の家
-
- 38坪
- 4LDK
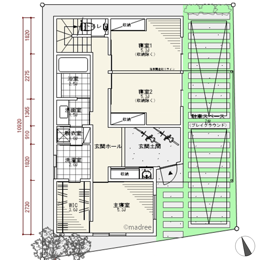
寝室から繋がる水廻りでサクサク朝支度、光と風が心地良い2階リビングの家
-
- 42坪
- 3LDK
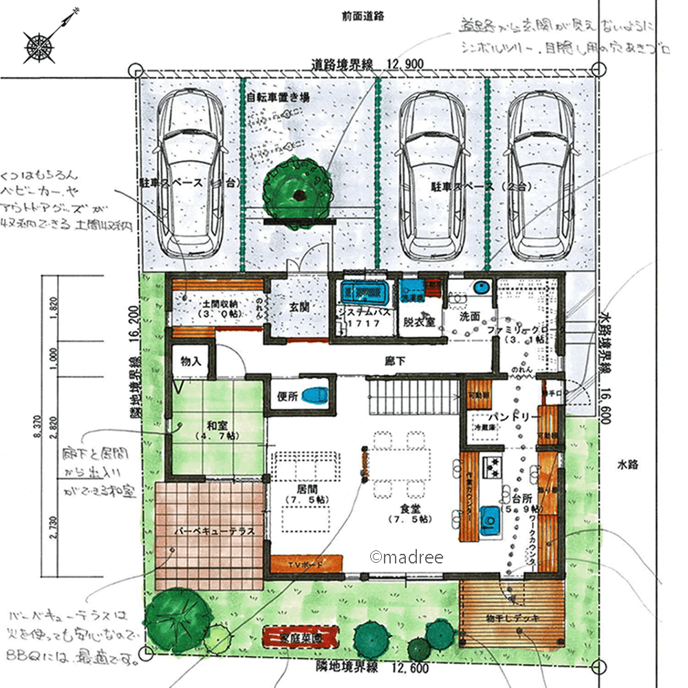
裏動線に生活感をまる隠し、来客ウェルカムなアウトドア好きの家
-
- 41坪
- 3LDK
ファミクロ中心動線で家事&生活が捗る、吹抜越しに家族感じる在宅ワーカーの家
-
- 42坪
- 3LDK
自然と片付く複数の回遊動線、キッチンから最短距離で無駄なく家事を結ぶ家
マドリー開発の『住宅営業支援ツール』
madreeデータバンク
マドリーの人気間取り4,800プランを接客・提案に活用できる営業支援ツール
- 競合他社と差がつく、スピード提案
- トレンド間取りで、集客・受注数UP
- 建築家のアイデアを参考に、質の高い提案ができる
