[33坪~36坪 4LDK] 家事ラク動線でゆとりある時間を過ごせる日当たりの良い家の間取り
全国の建築家から間取りが集まるmadree(マドリー)で集まった33坪~36坪、4LDKの間取りです。オープンキッチンやペニンシュラキッチンが特徴の注文住宅の間取りです。
家事ラク動線でゆとりある時間を過ごせる日当たりの良い家はこのような方におすすめです
20代共働き夫婦 子供(2歳半。将来もう1人予定)
趣味:妻は手芸。夫は1人でよくお風呂屋さんへいくほど、お風呂が好き。
家事ラク動線でゆとりある時間を過ごせる日当たりの良い家の間取りアイデア
全国対応になりました
| 階数 | |
|---|---|
| 部屋数 | |
| 家族人数 | |
| 土地特徴 | |
| 特徴 | |
| 広さ | |
| 担当建築家・デザイナー |
建築家・デザイナー
からのコメント
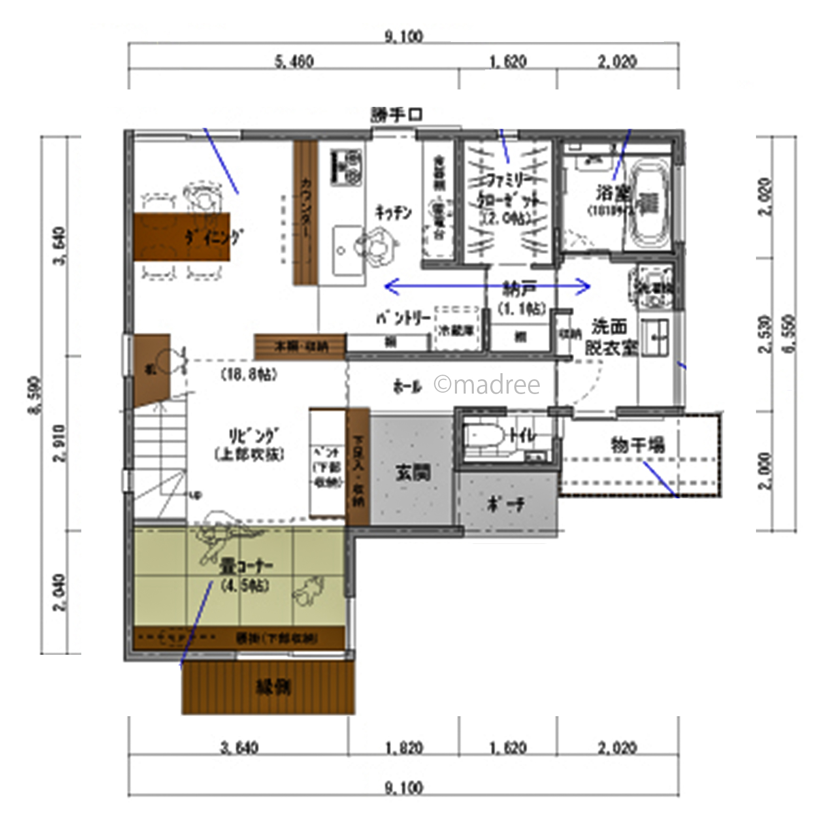
【全体のコンセプト】
・南側に広く庭を取って、家全体に日当たりが良いプランにしています。
・家事動線についても、キッチン→ファミリークローゼット→洗面室→物干場がつながるように計画しています。
・リビングから1段下がった畳コーナーや階段下のデスク、キッチン前のカウンター、2階のセカンドリビングなど、趣味のことをしたり、子どもが遊んだり勉強したり、家族のやりたいことができるスペースを各所にちりばめています。
【こだわりのポイント】
■1階
・リビングは畳コーナーと隣接して吹抜けのハイサイド窓から光が注ぐ明るい空間です。
・ダイニングも広々としてお友達とお茶会したり、お客さんを招きやすい計画にしています。
・キッチンはオープンで収納も豊富にし、生活感のある冷蔵庫はちょっと奥へ、あまり人目につかないところに置きました。
・畳コーナーは1段下がり、腰掛の下にはおもちゃなど収納できます。
・縁側で庭とつながっていて開放的です。
・襖で仕切れるので客室としても使えます。
・洗面脱衣室から物干場・ファミリークローゼットに直接アクセスでき、洗濯物干しがスムーズです。
・お風呂は大きめの1818サイズのユニットバスが入る大きさで、バスコートに面しているのでお風呂から木々を眺めることができます。
■2階
・2階のセカンドリビングは畳敷きにして、ここで勉強、仕事、趣味のこともできます。
・襖で仕切れるので客室としても使用できます。
・主寝室は明るい南向きで朝日も入ります。
・主寝室横のインナーテラスはトップライトがあり、布団を干すのにも最適です。
33坪~36坪 4LDK関連の間取り
マドリー開発の『住宅営業支援ツール』
madreeデータバンク
マドリーの人気間取り4,800プランを接客・提案に活用できる営業支援ツール
- 競合他社と差がつく、スピード提案
- トレンド間取りで、集客・受注数UP
- 建築家のアイデアを参考に、質の高い提案ができる









