[26坪 3LDK] 爽やかな朝日でスッキリ目覚める、キッチン中心の回遊動線で家事シェアしやすい家の間取り
全国の建築家から間取りが集まるmadree(マドリー)で集まった26坪、3LDKの間取りです。外とつながるLDKやアウトドアリビングが特徴の注文住宅の間取りです。
爽やかな朝日でスッキリ目覚める、キッチン中心の回遊動線で家事シェアしやすい家はこのような方におすすめです
・40代共働き夫婦(ともに在宅ワーク)、異性の子ども2人(8歳、6歳)
・趣味:ゴルフ、登山
・夫婦別寝室が良いが、WICは共有で使えるようにしたい。
・家族で家事シェアするので、複数人でもサクサク動ける回遊動線を希望。
爽やかな朝日でスッキリ目覚める、キッチン中心の回遊動線で家事シェアしやすい家の間取りアイデア
全国対応になりました
| 広さ | |
|---|---|
| 階数 | |
| 土地特徴 | |
| 部屋数 | |
| 家族人数 | |
| 特徴 | |
| 担当建築家・デザイナー | 
建築家・デザイナー
からのコメント
                【コンセプト】
「家族の息吹を感じられ広いと錯覚する家」
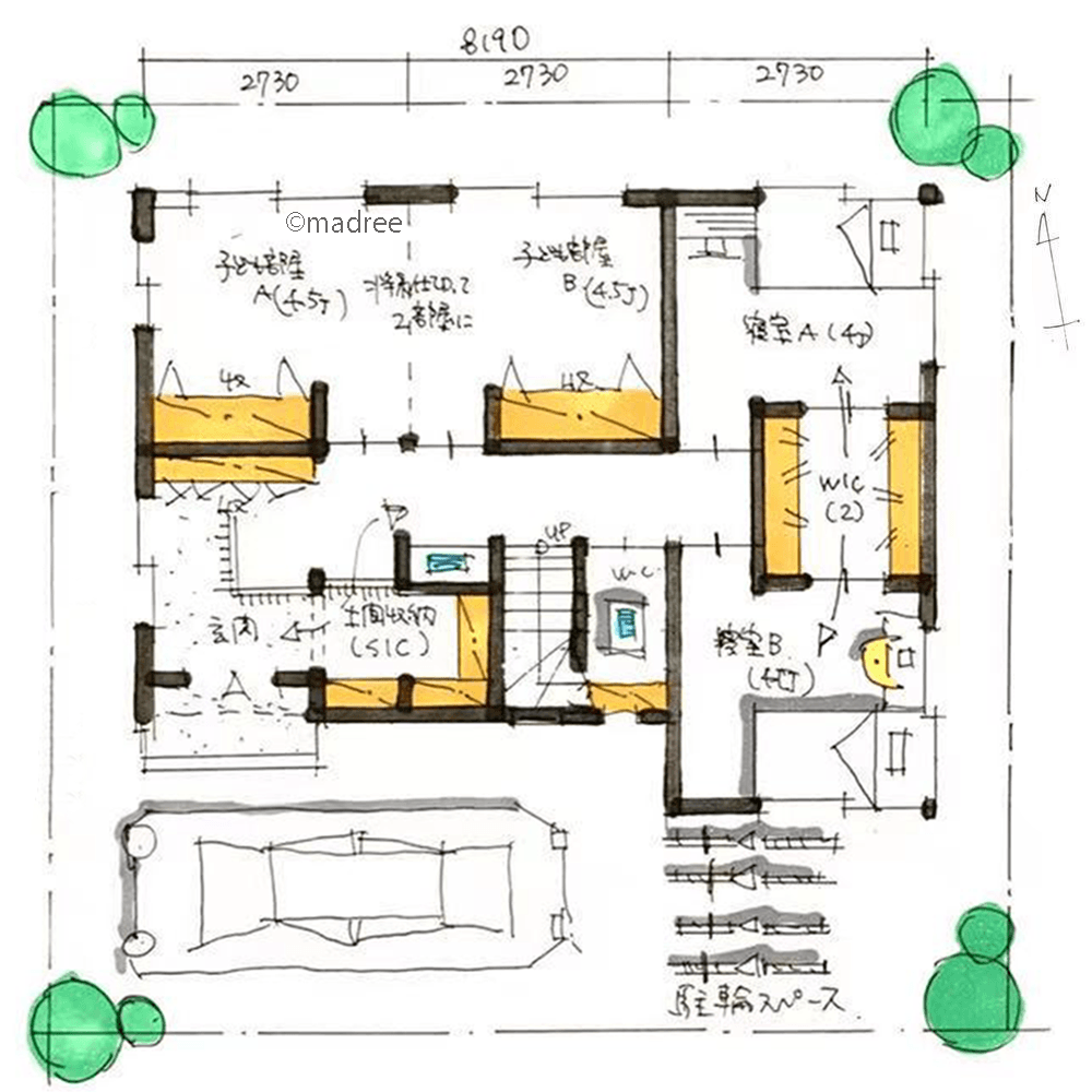
■1階
・広くはないですが、各自の個室を設けました。それぞれに収納を設け機能的な部屋としています。
・東の夫婦別室の部屋はWICでつながる設計とし、適度な距離感を確保しています。
・1階にも手洗いを設け、帰宅後すぐに手洗いうがいができる設計としました。
■2階
・LDKは明るい空間にしたかったので、2階に設けました。
・リビング上部は吹抜とし、小屋裏(ロフト)スペースとつなげ、明るく開放的なリビングを目指しました。
・家事動線が短くなるよう、洗面とキッチンは並べて配置し、回遊できる動線としています。
・インナーバルコニーは広めに設計。 半屋外空間のため、洗濯物干しスペースや庭のかわりとして利用できます。
26坪 3LDK関連の間取り
マドリー開発の『住宅営業支援ツール』
          madreeデータバンク
            
マドリーの人気間取り4,800プランを接客・提案に活用できる営業支援ツール
- 競合他社と差がつく、スピード提案
 - トレンド間取りで、集客・受注数UP
 - 建築家のアイデアを参考に、質の高い提案ができる
 

                                                      
                                                  







