[36坪 3LDK] デッキ一体の明るい1階で生活完結、暮らしやすいちょっとした工夫を散りばめた家の間取り
全国の建築家から間取りが集まるmadree(マドリー)で集まった36坪、3LDKの間取りです。外とつながるLDKやアウトドアリビングが特徴の注文住宅の間取りです。
デッキ一体の明るい1階で生活完結、暮らしやすいちょっとした工夫を散りばめた家はこのような方におすすめです
・60代夫婦(妻は軽度身体不自由あり)、30代の娘2人/外孫(3歳、5歳)は週末宿泊
・趣味:映画鑑賞、フィギュア収集
・思い入れのある婚礼箪笥を置ける、広々ファミリークローゼットを設けたい。
・孫を見守りつつ、安心して遊ばせられる空間が欲しい。
デッキ一体の明るい1階で生活完結、暮らしやすいちょっとした工夫を散りばめた家の間取りアイデア
全国対応になりました
建築家・デザイナー
からのコメント
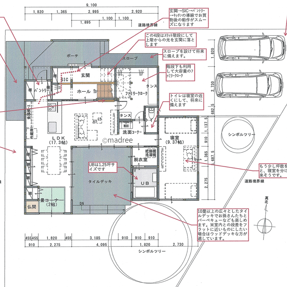
【全体のコンセプト】
将来に備えた工夫とタイルデッキを中心とした間取りにしました。
【各所のポイント】
■1階
・駐車場からのアプローチの階段とスロープを設け、将来に備えています。
・広いポーチには、宅配ボックスを置いたりできます。
・将来車椅子が必要となった際にも問題なく使えるように、玄関入り口を引戸にしました。
・玄関上の階段は遊び心あるスリット階段とし、明るさを取り入れます。階段下スペースに趣味のディスプレイを楽しむことも出来ます。
・SICからパントリーへ行ける引戸も設け、重たい買い物袋などはサッと運べるようにしました。
・ファミリークロークは階段下を利用し、広く設けました。手持ちの2つのタンスも余裕で配置でき、季節外のものやお孫さんの遊び道具などもしまえます。利便性を考え2方向から出入り可能としました。
・洗面台は一つの部屋とはせず、通路に設けて面積の節約をしました。トイレの近くなので手洗いにも使えます。
・タイルデッキに面する場所は、ふんだんにサッシを設置しました。室内はとても明るく、目線を気にせずカーテンを開けて生活も出来ます。(室内との段差を無くしたい場合はウッドデッキにされると良いかと思います。)
・2畳の畳コーナーはコンパクトなものですが、ごろ寝も出来てリラックス出来る空間になると思います。
・寝室は長細い形にして、なるべくベッドを離しておけるようにしました。もう少し坪数を大きくとれると、同じ位置に2部屋とることが出来ます。その場合は2部屋の間に半畳づつの収納を設け、テレビの音などに配慮した間取りにすることも可能です。
■2階
・とにかく無駄のない間取りに出来るように考えました。(坪数の関係で6畳とることが出来ませんでした。)
・階段や2階廊下幅は芯々1100㎜となります。
36坪 3LDK関連の間取り
マドリー開発の『住宅営業支援ツール』
madreeデータバンク
マドリーの人気間取り4,800プランを接客・提案に活用できる営業支援ツール
- 競合他社と差がつく、スピード提案
- トレンド間取りで、集客・受注数UP
- 建築家のアイデアを参考に、質の高い提案ができる









