座リビングの間取り一覧
家族や自分の”好き”を叶える注文住宅の間取りが見つかる!暮らしの要望をもとに全国の建築家が作成した座リビングの間取りを23件公開しています。毎日更新中!
-
- 27坪〜30坪
- 4LDK
シニア世代が老後も快適に過ごせる、動線がコンパクトな平家風暮らしの家
-
- 51坪
- 2LDK
縁側を通じて子世帯と繋がる、玄関前の土間空間で時間を共有できる二世帯住宅
-
- 27坪〜30坪
- 2LDK
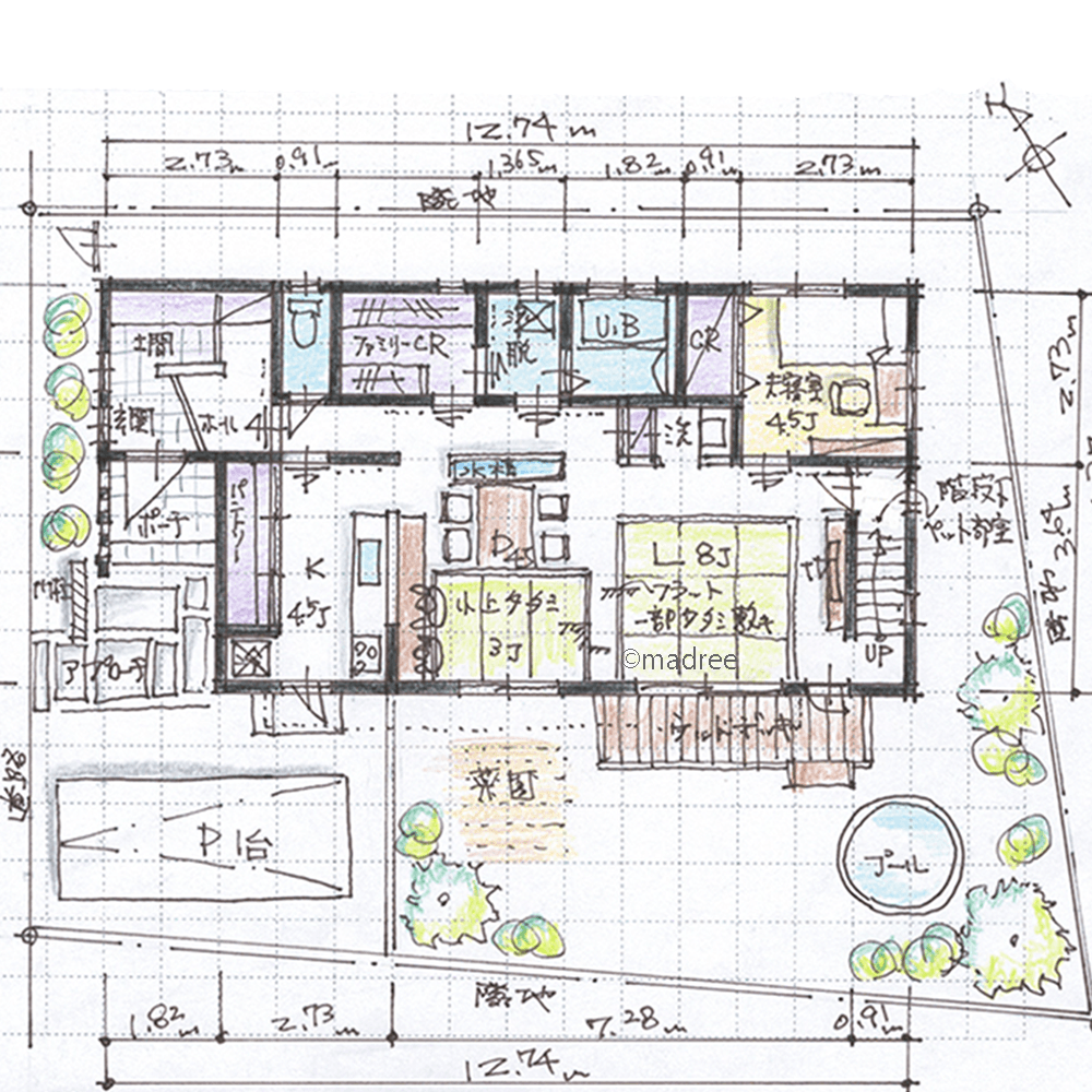
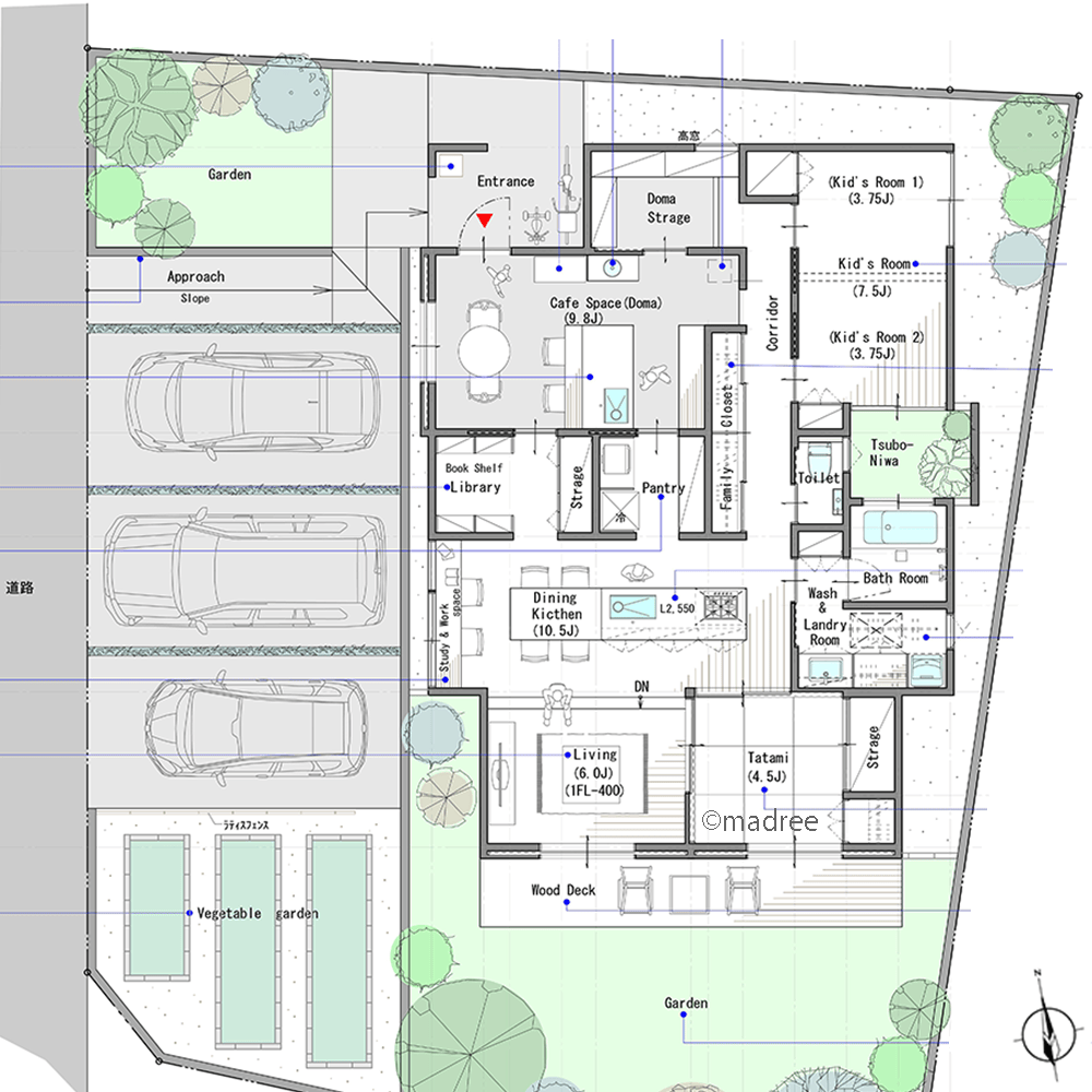
土間のキッチンで来客をおもてなし、趣味を活かしたお家カフェスペースのある平屋
-
- 32坪
- 3LDK
畳リビングに掘りごたつ、デッキに造り付けベンチでアウトドアリビングを楽しむ平屋
-
- 41坪
- 4LDK
玄関から一直線の勝手口でラクにゴミ出し、生活感を隠せる来客動線のある家
-
- 39坪
- 3LDK
自然光の届くリラックス空間、家族みんなが通る2階廊下をホームライブラリーにした家
-
- 27坪〜30坪
- 3LDK
毎日の過ごし方に変化をつける、床の段差を生かして奥行きや広がりを楽しむ家
-
- 26坪
- 3LDK
落ちつく床座リビングで温かな家族団らん、趣味も充実する広い土間収納のある家
-
- 30坪
- 2LDK
心地良い空間に自然と集まる、お互い自由な過ごし方を楽しむ畳リビングのある家
-
- 41坪
- 3LDK
縦長地を生かした奥行きある眺望、余裕ある広さで介護もしやすい同居予定の二世帯住宅
-
- 41坪
- 4LDK
コンパクトに繋がる生活動線、高齢・介護を見据えた無理なく家事をこなせる家
-
- 62坪
- 5LDK
屋根の掛かる広々テラスで、天候を気にせずゆったり過ごす平屋の二世帯住宅
-
- 34坪
- 4LDK
買い物後の荷運びは勝手口から、家族だけの裏動線で家事時間を短縮できる家
-
- 30坪
- 2LDK
縁側のある圧迫感ない落ち着く空間、同じ目線で座って過ごす畳リビングの家
-
- 21坪〜24坪
- 1LDK
収納も寝場所もロフトで空間活用、家族でゴロンと過ごせる床座リビングの家
-
- 21坪〜24坪
- 1LDK
圧迫感なく空間繋がる、床の高さに変化を付けた自然と目線の合う家
-
- 42坪
- 3LDK
家族感じるオープンな空間、メリハリのあるLDKで開放的に過ごす家
-
- 30坪
- 3LDK
中庭からの光と風が心地よい、家族が自然と集う床座生活の家
-
- 27坪〜30坪
- 4LDK
自然と身に付く清潔習慣、玄関洗面台で帰宅後すぐに手洗いできる家
-
- 44坪
- 5LDK
視覚的な空間の広がり感じる、床座ピットリビングに自然と家族集まる家
-
- 26坪
- 2LDK
大収納で部屋が整いラクラク掃除、将来的にワンフロアで暮らすL字の家
-
- 40坪
- 4LDK
LDK吹抜で縦にも広がる開放感、のびのび過ごす床座リビングの家
-
- 41坪
- 3LDK
大収納ですっきり部屋整う、内外つながる全室南向きの二世帯住宅
マドリー開発の『住宅営業支援ツール』
madreeデータバンク
マドリーの人気間取り4,800プランを接客・提案に活用できる営業支援ツール
- 競合他社と差がつく、スピード提案
- トレンド間取りで、集客・受注数UP
- 建築家のアイデアを参考に、質の高い提案ができる
