リビング階段の間取り一覧
家族や自分の”好き”を叶える注文住宅の間取りが見つかる!暮らしの要望をもとに全国の建築家が作成したリビング階段の間取りを1232件公開しています。毎日更新中!
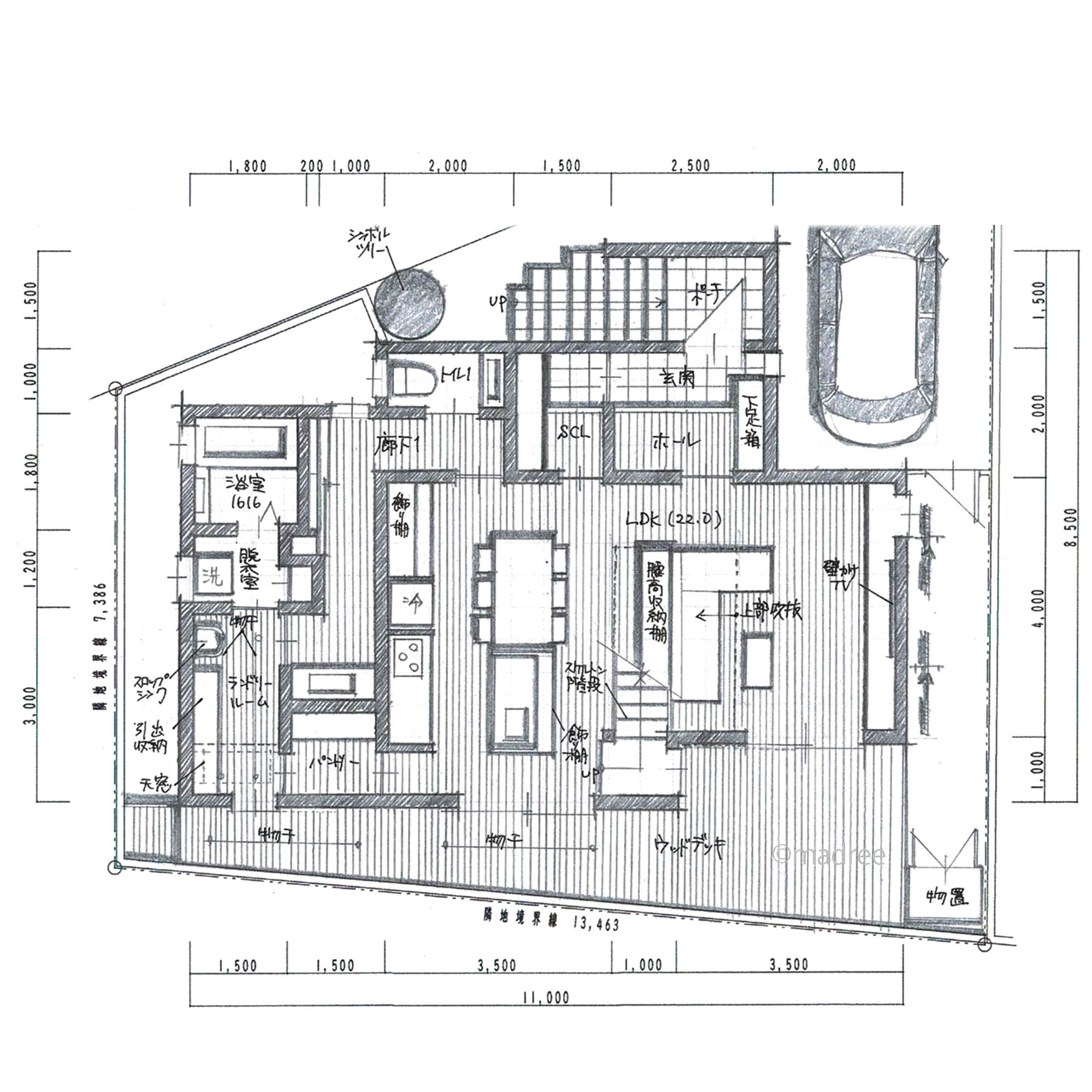
-
- 30坪~33坪
- 2LDK
シンボルツリーとデッキ、吹き抜けで明るく開放的!ラウンジの寛ぎスペースで一息つける縦長の間取り
-
- 45坪~49坪
- 4LDK
アイランドキッチン中心で部屋中見渡せ家事も捗る!明るく機能的な空間が暮らしにフィットする家
-
- 36坪~39坪
- 3LDK
急な来客も安心!大きな吹き抜けで採光を確保した明るく開放感のある家
-
- 39坪~42坪
- 3LDK
小屋裏収納付きでたっぷりしまえる細長間取りで家族それぞれが過ごしやすい二世帯の家
-
- 27坪〜30坪
- 2LDK
コンパクトながら機能性と収納力と開放感のある住み心地が良い間取り
-
- 45坪~49坪
- 3LDK
適材適所のたっぷり収納でスッキリ片付くゆとりある暮らしが叶う家
-
- 33坪~36坪
- 3LDK
狭小地でも2階LDKで広く明るい空間に!機能的な家事空間が充実した間取り
-
- 36坪~39坪
- 3LDK
来客対応いつでもOK!充実の収納とキッチンから水回りのスムーズな動線で家事が心地良い間取り
-
- 45坪~49坪
- 5LDK
仕事スペースをしっかり確保しながら住居スペースは採光とシンプル動線で住み心地が良い家
-
- 30坪
- 2LDK
中庭と吹き抜けで光を取り込む縦長敷地を活かした伸びやかな間取り
-
- 45坪~49坪
- 3LDK
坪庭を愛でる玄関と家中快適な家事動線でゆとりある暮らしが叶う明るく開放的な家
-
- 39坪~42坪
- 6LDK
ほどよい距離感の2世帯住宅とセカンドリビングでお泊まり会ができる家
-
- 36坪~39坪
- 3LDK
来客対応も家族の寛ぎ空間も確保した光や風に溢れる開放感のある間取り
-
- 39坪~42坪
- 3LDK
たっぷりの収納と機能的な空間と動線で暮らしにゆとりが持てる家
-
- 36坪~39坪
- 3LDK
生活ゾーン分けで使い勝手と効率UP!子供に目が行き届くLDKの間取り
-
- 40坪
- 3LDK
開放的な明るいリビングダイニングと一直線水回り動線で心地良く暮らせる家
-
- 27坪〜30坪
- 2LDK
1階で生活完結!中庭と吹き抜けから光が差し込む縦長の間取り
-
- 45坪~49坪
- 4LDK
適材適所の収納と個々の時間も家族時間も過不足なく充実させた空間で暮らしにフィットする家
-
- 40坪
- 4LDK
効率良くコンパクトにまとめた家事ラク動線と来客対応がスムーズな間取り
-
- 39坪~42坪
- 3LDK
庭と繋がり自然を感じられる南向きLDKと広々デッキで家族が心地良く暮らせる家
-
- 30坪~33坪
- 4LDK
庭先とLDKをつなぐゆとりあるカバードポーチで家族が寛げる家
-
- 36坪~39坪
- 3LDK
風通しの良いLDKと充実の家事ラク動線で家族が心地良く過ごせるプライベートを守れる家
-
- 39坪~42坪
- 4LDK
1階も2階も回遊できる動線で心地良く家族が過ごせる日当たりのよい明るい家
-
- 45坪~49坪
- 3LDK
子どもと時間をたくさん共有でき、リラックスと集中をわけられる廊下のない家
マドリー開発の『住宅営業支援ツール』
madreeデータバンク
マドリーの人気間取り4,800プランを接客・提案に活用できる営業支援ツール
- 競合他社と差がつく、スピード提案
- トレンド間取りで、集客・受注数UP
- 建築家のアイデアを参考に、質の高い提案ができる
