開放感ある浴室の間取り一覧
家族や自分の”好き”を叶える注文住宅の間取りが見つかる!暮らしの要望をもとに全国の建築家が作成した開放感ある浴室の間取りを577件公開しています。毎日更新中!
-
- 42坪
- 3LDK
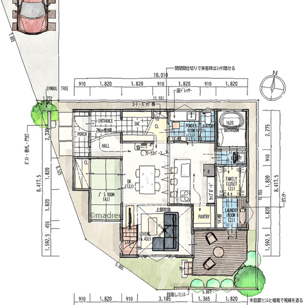
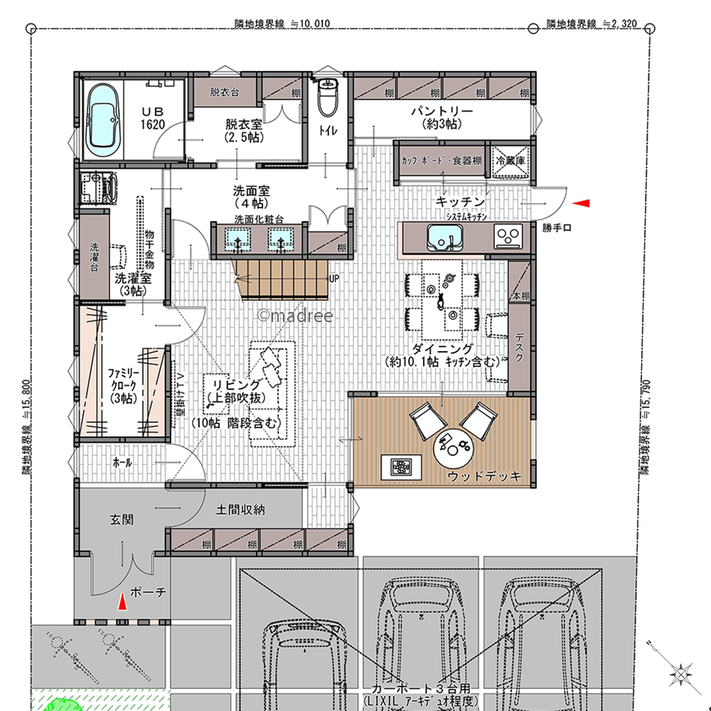
吹抜で家族感じつつ個室はプライベート重視、裏動線もきっちり整う多収納の家
-
- 27坪
- 2LDK
森の中のような別荘感、自然豊かな眺望を生かしたリラクゼーションLDKの平屋
-
- 39坪
- 3LDK
爽やかな風が家中を通り抜ける、視線を気にしない心地良さにこだわった家
-
- 62坪
- 5LDK
屋根の掛かる広々テラスで、天候を気にせずゆったり過ごす平屋の二世帯住宅
-
- 60坪
- 5LDK
犬用動線で屋内外を自由にドッグラン、人にも犬にもパーソナル空間のある家
-
- 39坪
- 3LDK
適材適所の収納で生活整う、目的に合わせた空間使いでオンオフ切替えやすい家
-
- 39坪
- 3LDK
個室も外と繋がりロフトが秘密基地になる、遊び心あふれる家事ラク動線の家
-
- 42坪
- 2LDK
大人数でもキッチン周りストレスなし、広々LDKでホームパーティー楽しむ平屋
-
- 58坪
- 5LDK
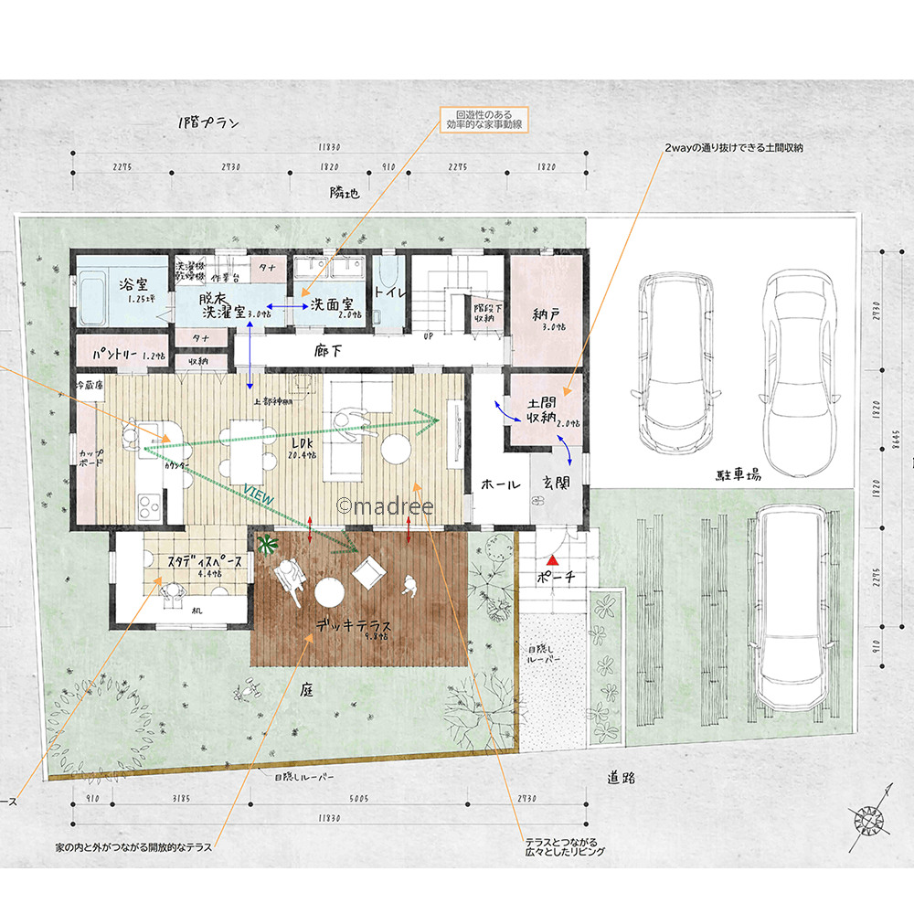
キッチン中心の回遊動線で家事の時間短縮、趣味を楽しむ余裕が生まれる家
-
- 40坪
- 3LDK
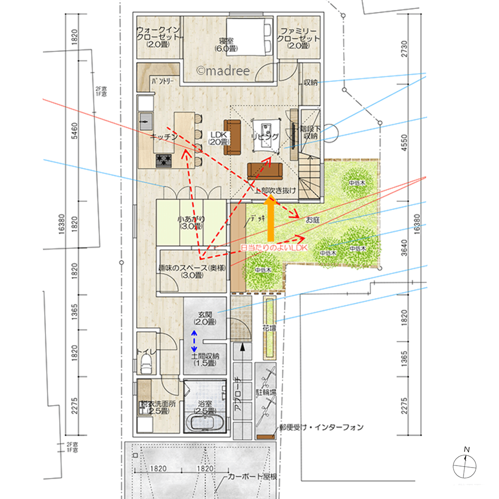
中2階は家族の共有ワークスペース、スキップフロアから光と開放感を取り込む家
-
- 45坪
- 5LDK
日常生活と趣味を別階で集約、マンションのようなコンパクト動線で繋がる家
-
- 76坪
- 6LDK
目的に合わせて別階フロアで過ごせる、ビルトインガレージのある3階建ての家
-
- 42坪
- 4LDK
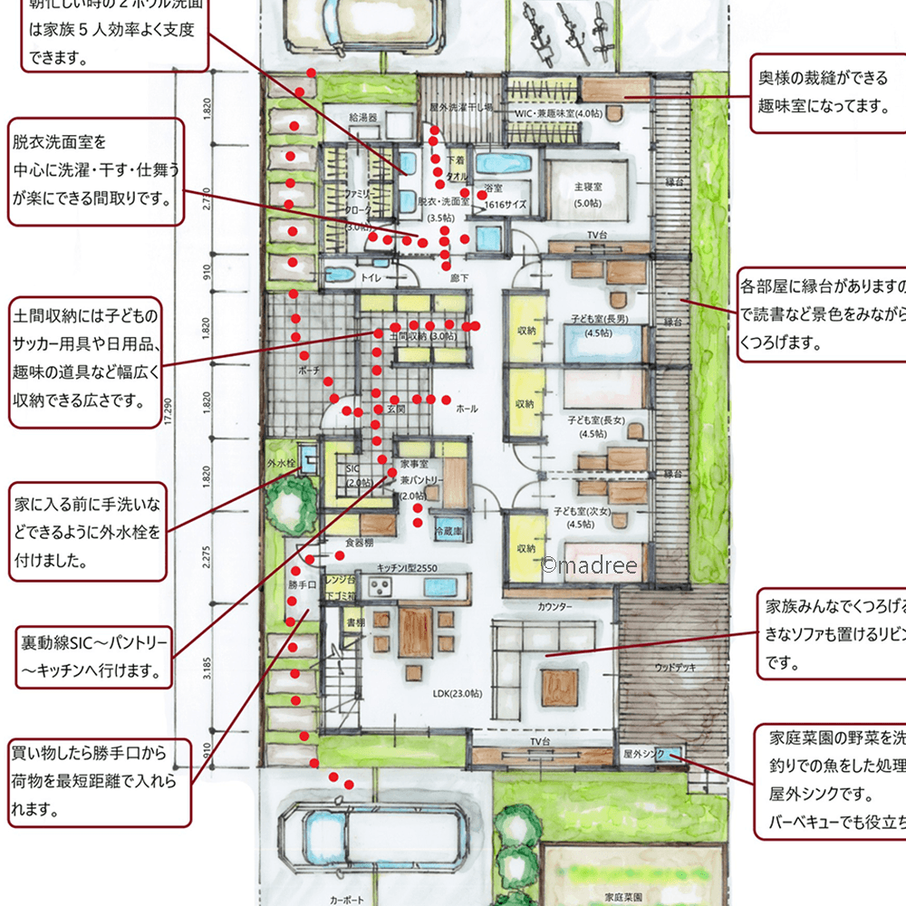
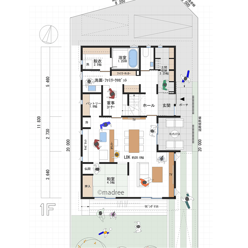
家事スペースで繋がる生活動線、明確なゾーン分けで家族のプライバシーを守る家
-
- 87坪
- 6LDK
季節も視線も気にしない、24時間気兼ねなく楽しむ室内プールのある家
-
- 46坪
- 5LDK
ファミクロまわりのぐるぐる家事動線と、帰宅後ルーティンでスッキリ整う家
-
- 47坪
- 4LDK
カーテンなしで過ごす開放感、隣家からの視線が気にならない2階LDKの家
-
- 35坪
- 3LDK
LDKはフレキシブルに間仕切る、普段は一体の空間を扉でサッと隠せる家
-
- 32坪
- 3LDK
眺望良い2階で生活を完結、屋外階段から愛犬もストレスなく昇降できる家
-
- 36坪
- 2LDK
広めのパントリーが一時置きに活躍、散らかりがちな荷物をさっと隠せる家
-
- 43坪
- パントリー
光庭テラスに面した生活空間、吹抜から各世帯の気配感じる二世帯住宅
-
- 43坪
- 3LDK
床の段差で視線をコントロール、空間にメリハリ生まれるピットリビングの家
-
- 39坪
- 3LDK
キッチンから庭まで目配りできる、回遊できる水廻りを裏動線にまとめた家
-
- 42坪
- 3LDK
趣味時間を活き活き過ごす、外とつながる明るく開放的な旗竿地の家
-
- 42坪
- 3LDK
ぐるぐる動線の1階で生活完結、広いデッキでおうちキャンプもできる家
マドリー開発の『住宅営業支援ツール』
madreeデータバンク
マドリーの人気間取り4,800プランを接客・提案に活用できる営業支援ツール
- 競合他社と差がつく、スピード提案
- トレンド間取りで、集客・受注数UP
- 建築家のアイデアを参考に、質の高い提案ができる
