一列に並んだ水廻りの間取り一覧
家族や自分の”好き”を叶える注文住宅の間取りが見つかる!暮らしの要望をもとに全国の建築家が作成した一列に並んだ水廻りの間取りを403件公開しています。毎日更新中!
-
- 42坪
- 4LDK
多くの時間を過ごすリビングを快適な空間に、庭の眺望を生かした開放的なLDKの家
-
- 36坪
- 3LDK
キッチンから一直線の家事動線で、時間と心にゆとり生まれるママ目線の家
-
- 24坪
- 2LDK
充実の収納量でファッション好きも安心、家事が快適に感じるコンパクト動線の家
-
- 40坪
- 4LDK
視線の抜けるおしゃれなリビングで気持ちも明るく、適材適所の収納で楽にキレイが保てる家
-
- 38坪
- 4LDK
繋がる空間で家族を近くに感じる、趣味にも仕事にも活躍するスキップフロアのある家
-
- 43坪
- 3LDK
天気も視線も気にしない、陽当たり良い2階にサンルームにもなる洗濯部屋のある家
-
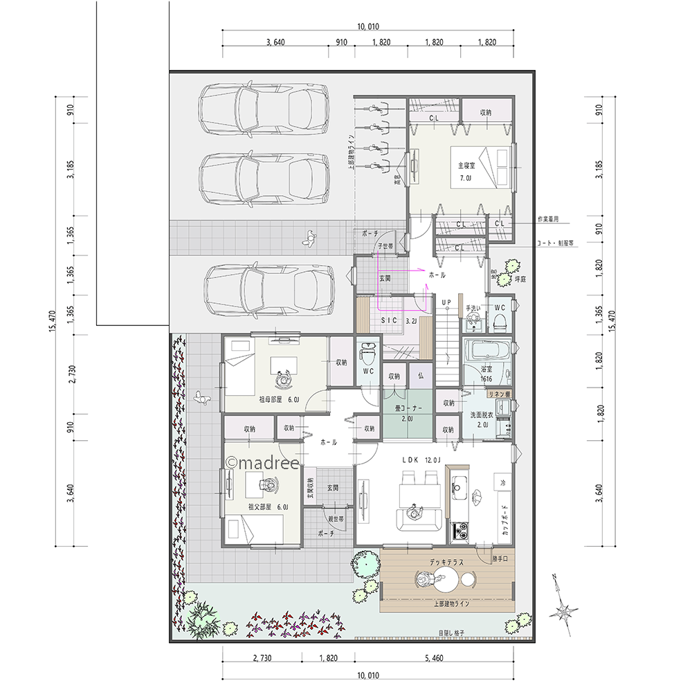
- 63坪
- 2LDK
玄関も隣り合わない独立した生活動線、すぐに助け合える距離感で暮らす二世帯住宅
-
- 45坪
- 3LDK
コンパクト動線が家事ラクのポイント、回遊しながら水廻りを行き来できる家
-
- 36坪
- 3LDK
景観を邪魔しない目的別のウッドデッキで、来客時にも自分リズムで家事のできる家
-
- 42坪
- 4LDK
出勤場所は景観の良い窓際スペース、気持ちをスッと切り替えて在宅ワークできる家
-
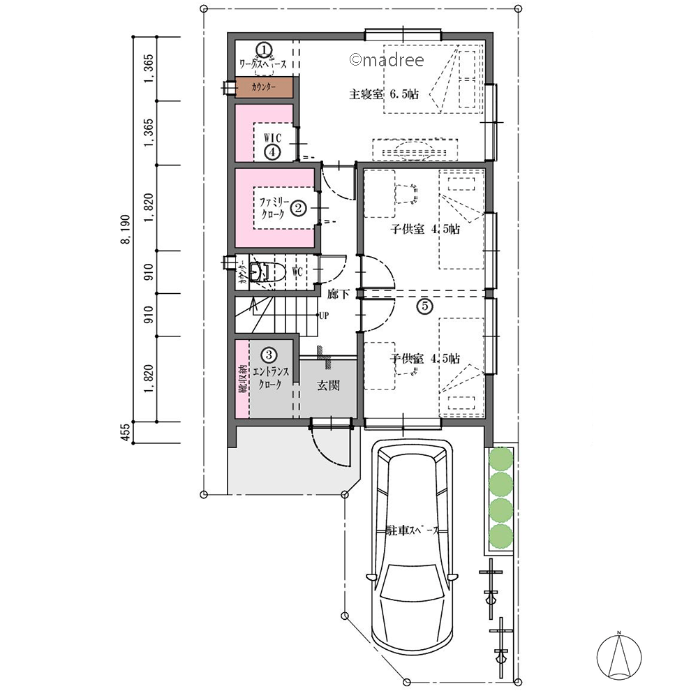
- 44坪
- 3LDK
在宅ワーク中でもチラッと家族を確認、2階リビングに併設したワークスペースのある家
-
- 32坪
- 2LDK
開口窓から採光デッキへ広がる一体感、ゆったりとした空間で老後を快適に過ごす平屋
-
- 45坪
- 3LDK
泥だらけでの帰宅にも直ぐ対応、土間から一直線で水廻りへ行けるサッパリ裏動線のある家
-
- 41坪
- 2LDK
高窓から美しい光が差し込む、緑豊かな里山の伸びやかな平屋
-
- 34坪
- 2LDK
キッチンからの回遊動線がゆとり獲得の鍵、一直線の水廻りで家事も身支度もゆったりの家
-
- 33坪
- 4LDK
一直線の水廻りで時短家事、趣味楽しむリラックススペースのある家
-
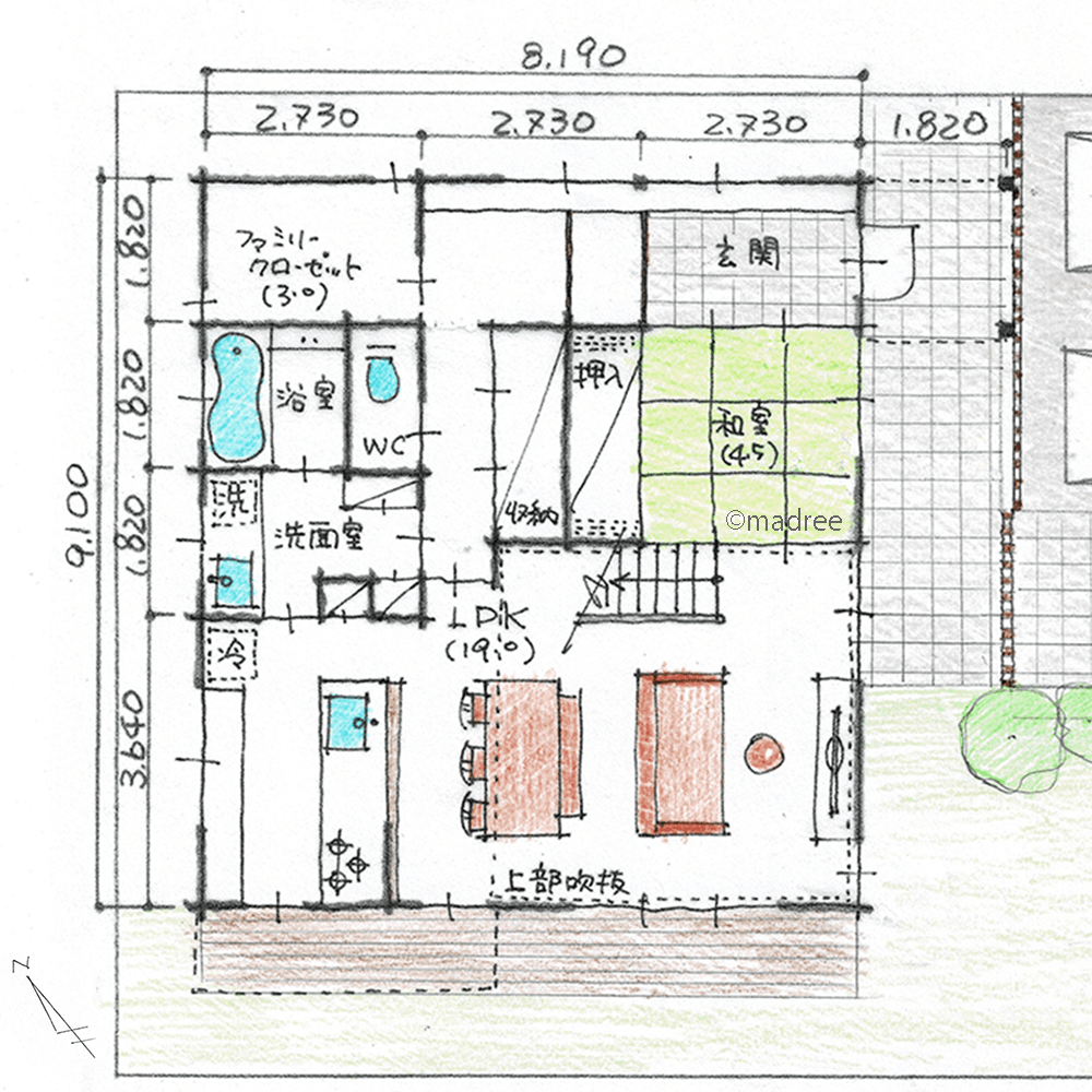
- 39坪
- 2LDK
掘り炬燵の畳ダイニングで家族団欒、隠せる収納にこだわった常にLDKスッキリの家
-
- 39坪
- 3LDK
収納を充実させた回遊できる家事動線、一体感が心地良い庭と眺望を楽しむ家
-
- 36坪
- 3LDK
広い土間収納で嵩張る荷物もスッキリ片付く、デイキャンプ楽しむアウトドア好きの家
-
- 49坪
- 3LDK
三面道路を生かした明るさと開放感、縦にも庭にも眺望広がる間仕切りリビングの家
-
- 30坪
- 2LDK
心地良い空間に自然と集まる、お互い自由な過ごし方を楽しむ畳リビングのある家
-
- 27坪〜30坪
- 2LDK
奥行きの広いキッチンからの眺望、ワンフロアで家事が楽に完結する2階LDKの家
-
- 49坪
- 3LDK
スキップフロアや雲梯で好奇心育む、子ども達が心身ともに成長できる家
-
- 31坪
- 2LDK
お互いを尊重したペットとの生活、テリトリーを守りながら人も猫も快適に過ごす家
マドリー開発の『住宅営業支援ツール』
madreeデータバンク
マドリーの人気間取り4,800プランを接客・提案に活用できる営業支援ツール
- 競合他社と差がつく、スピード提案
- トレンド間取りで、集客・受注数UP
- 建築家のアイデアを参考に、質の高い提案ができる
