1WAY玄関の間取り一覧
家族や自分の”好き”を叶える注文住宅の間取りが見つかる!暮らしの要望をもとに全国の建築家が作成した1WAY玄関の間取りを724件公開しています。毎日更新中!
-
- 34坪
- 3LDK
趣味も家事も広々楽しめる!採光と眺望の良いサーファーズハウス
-
- 27坪〜30坪
- 2LDK
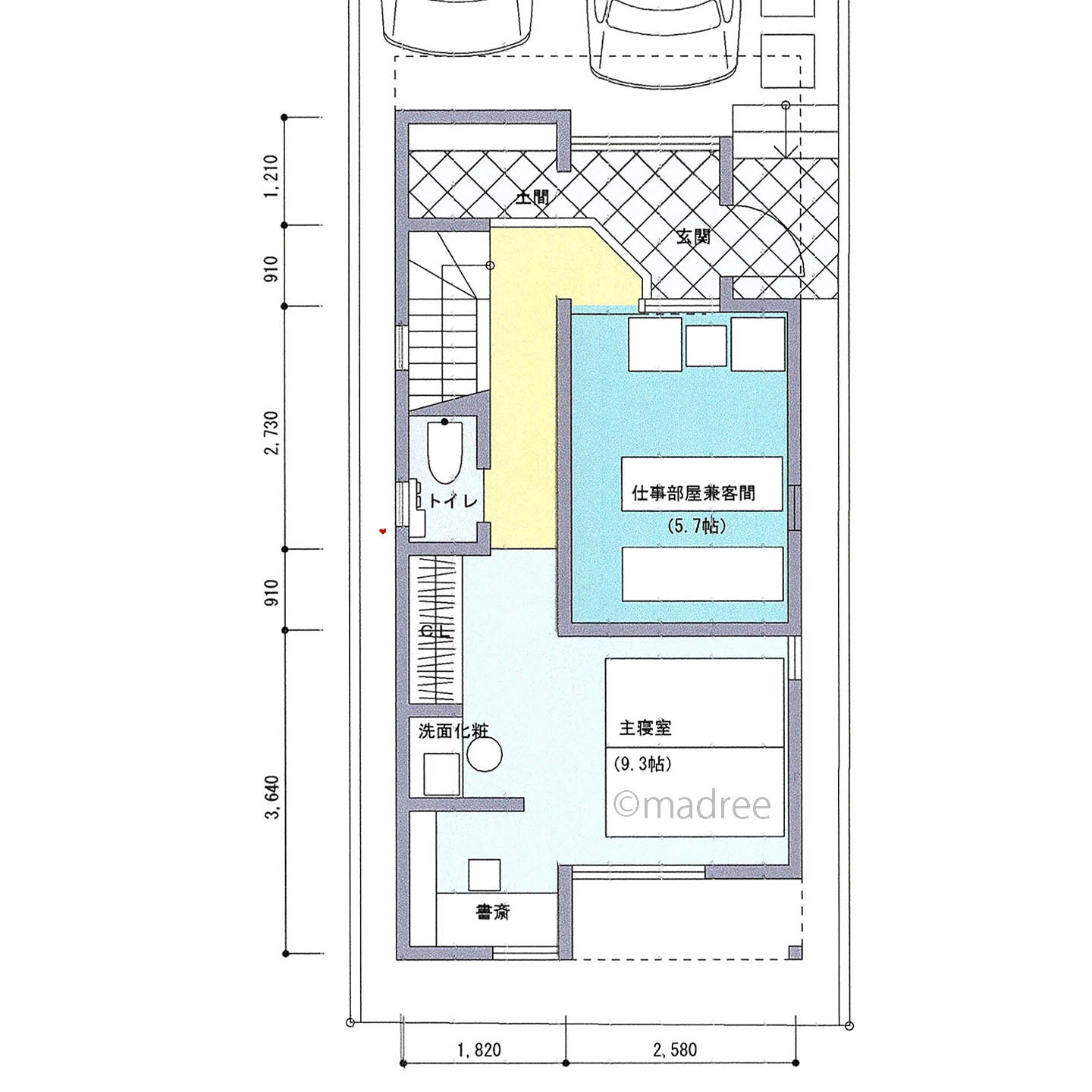
隠す収納で家中スッキリ!縦長敷地を活かしたレイアウトで生活感を見せずに暮らせる家
-
- 45坪~49坪
- 5LDK
2つの和室で寛ぎながら吹き抜けで家族を繋がる!暮らしやすい家事動線で心にゆとりが生まれる家
-
- 33坪
- 4LDK
コンパクトながら機能的な家事動線と家族が自然と集まるリビングで賑やかな声が聞こえてくる家
-
- 33坪~36坪
- 3LDK
趣味にフィットした動線で快適に楽しめるサーファーズハウスの間取り
-
- 33坪
- 4LDK
日当たり良好の2階LDKと家族が暮らしやすい広さを考慮した居心地よい間取り
-
- 30坪~33坪
- 2LDK
シンボルツリーとデッキ、吹き抜けで明るく開放的!ラウンジの寛ぎスペースで一息つける縦長の間取り
-
- 39坪~42坪
- 4LDK
アイランドキッチン中心の広々LDKと機能的な家事動線でワンランク上の豊かな生活が叶う家
-
- 27坪〜30坪
- 2LDK
コンパクトながら機能性と収納力と開放感のある住み心地が良い間取り
-
- 27坪〜30坪
- 3LDK
コンパクトに機能性を詰め込み、日の当たる居心地良い居住空間が魅力の間取り
-
- 27坪〜30坪
- 4LDK
カバードポーチにロッキングチェアでアメリカンな雰囲気の外装と中は落ち着いた和モダンで暮らしが華やぐ家
-
- 39坪~42坪
- 6LDK
ほどよい距離感の2世帯住宅とセカンドリビングでお泊まり会ができる家
-
- 36坪~39坪
- 3LDK
来客対応も家族の寛ぎ空間も確保した光や風に溢れる開放感のある間取り
-
- 30坪~33坪
- 3LDK
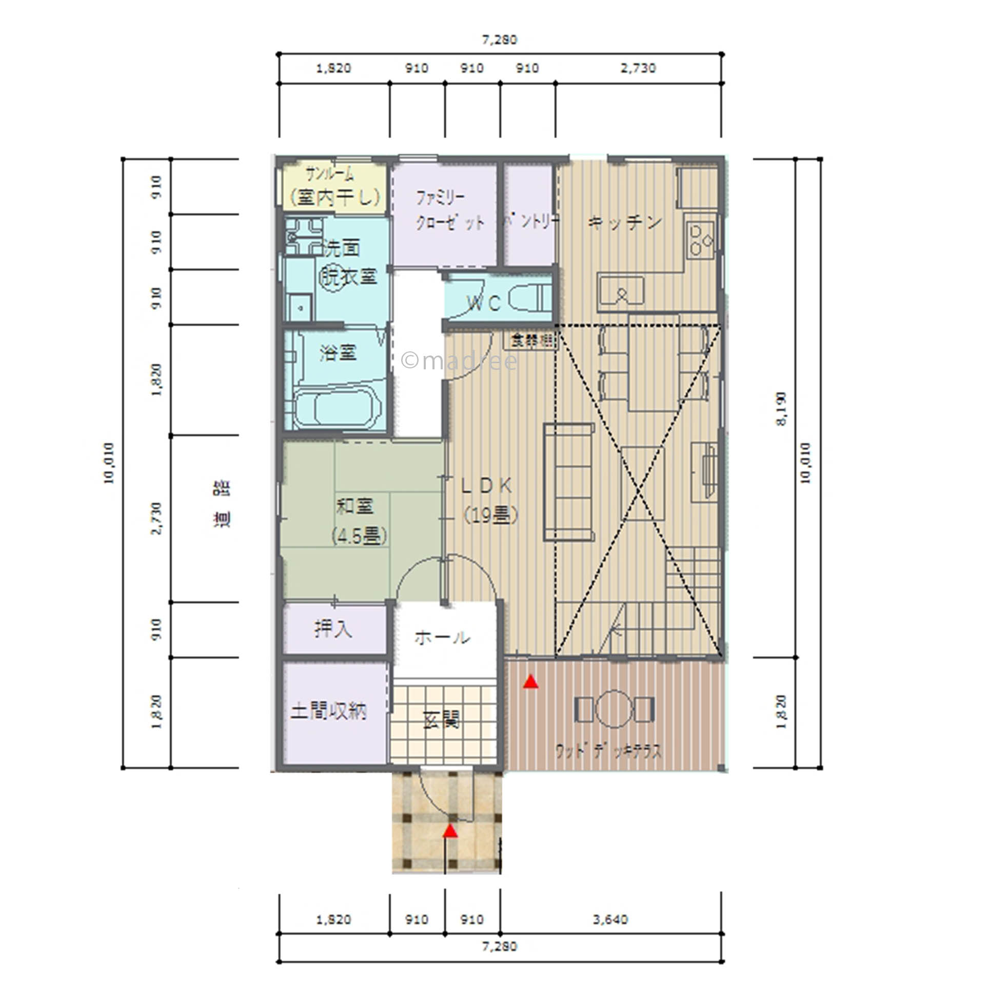
洗う・干す・しまうの洗濯回遊動線と家族それぞれが寛げるスペースを確保したコンパクトな間取り
-
- 36坪~39坪
- 3LDK
生活ゾーン分けで使い勝手と効率UP!子供に目が行き届くLDKの間取り
-
- 36坪~39坪
- 4LDK
南向きで採光を最大限に活かした和モダリゾートホテルライクの家
-
- 27坪〜30坪
- 2LDK
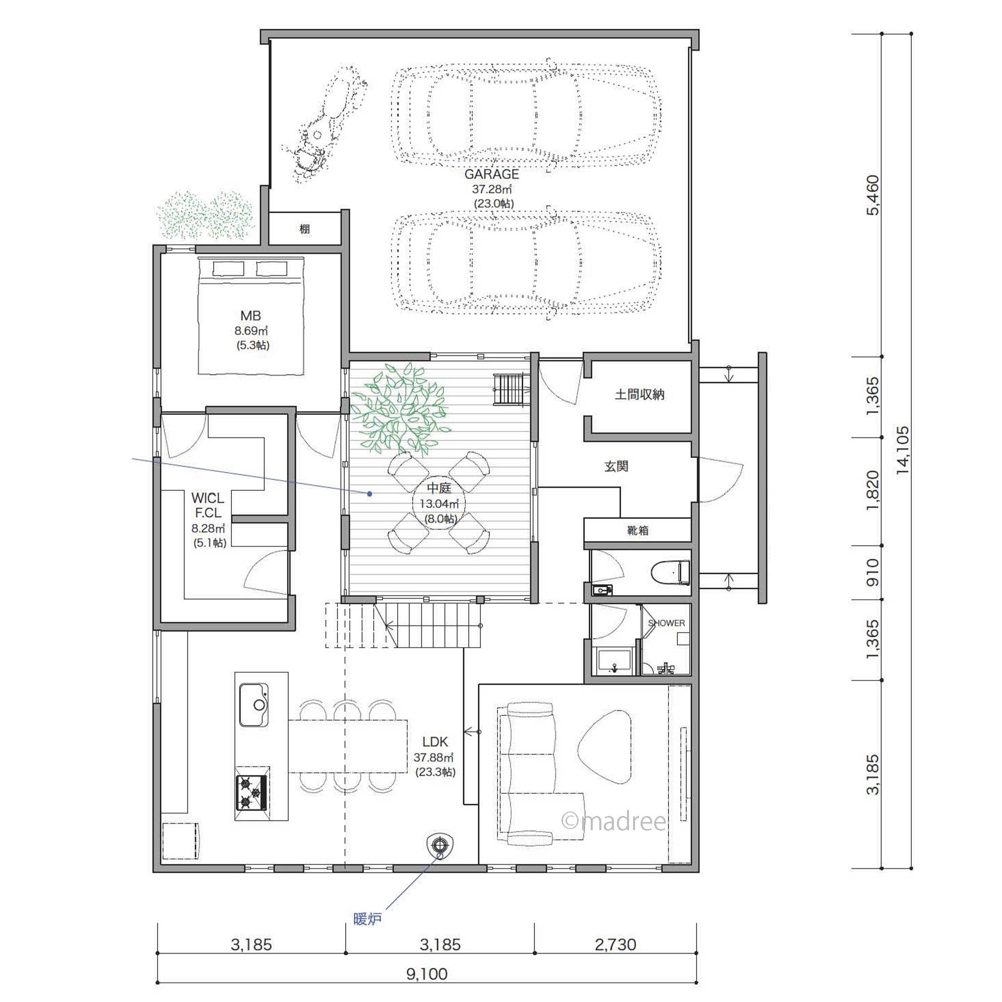
1階で生活完結!中庭と吹き抜けから光が差し込む縦長の間取り
-
- 45坪~49坪
- 4LDK
適材適所の収納と個々の時間も家族時間も過不足なく充実させた空間で暮らしにフィットする家
-
- 39坪~42坪
- 5LDK
個々の暮らしを大切にしながら心地良い距離感で暮らせて将来介護を意識した間取り
-
- 40坪
- 4LDK
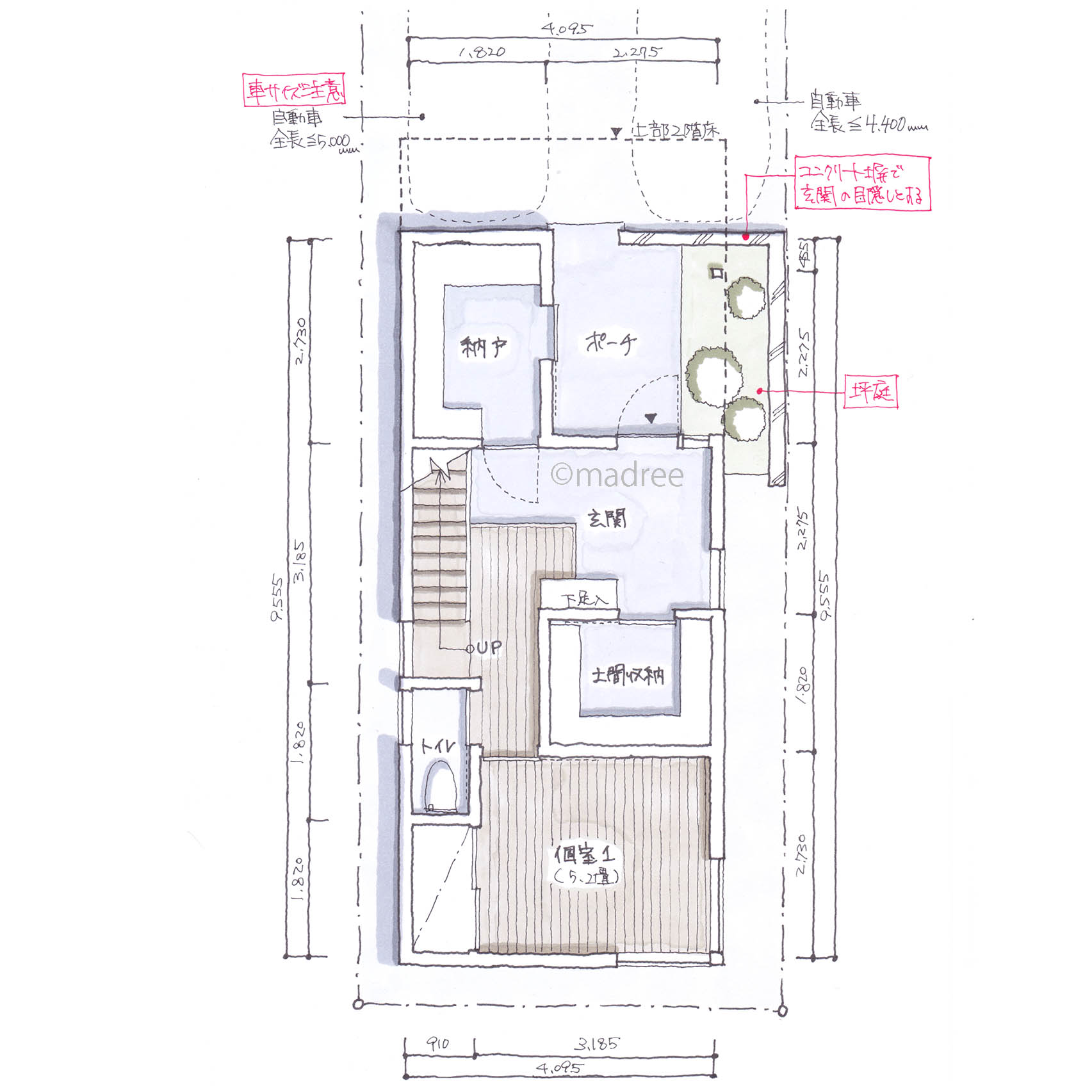
効率良くコンパクトにまとめた家事ラク動線と来客対応がスムーズな間取り
-
- 30坪~33坪
- 4LDK
庭先とLDKをつなぐゆとりあるカバードポーチで家族が寛げる家
-
- 20坪以下
- 1LDK
無駄なくコンパクトに機能性を詰め込んだ光や風が気持ち良いリビングがある家
-
- 45坪~49坪
- 5LDK
2.5世帯家族が個々の時間も家族時間も心地良く暮らせる空間がある間取り
-
- 27坪
- 3LDK
シンボルツリーのある中庭から降り注ぐ光と風が家中を心地良くしながら家族を繋げる平屋
マドリー開発の『住宅営業支援ツール』
madreeデータバンク
マドリーの人気間取り4,800プランを接客・提案に活用できる営業支援ツール
- 競合他社と差がつく、スピード提案
- トレンド間取りで、集客・受注数UP
- 建築家のアイデアを参考に、質の高い提案ができる
