リビング吹抜の間取り一覧
家族や自分の”好き”を叶える注文住宅の間取りが見つかる!暮らしの要望をもとに全国の建築家が作成したリビング吹抜の間取りを899件公開しています。毎日更新中!
-
- 40坪
- 4LDK
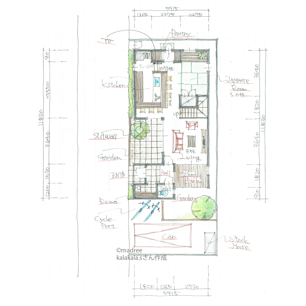
大きな吹抜で光呼び込む、採光と風通し良いL字型の家
-
- 33坪
- 3LDK
洗濯はかどる、家事動線を隠した平屋
-
- 32坪
- 2LDK
リビングとつながるデッキで、休日はおうちアウトドア楽しむ家
-
- 40坪
- 3LDK
キッチン中心の回遊動線で、家族で料理し会話弾む家
-
- 50坪
- 3LDK
ストレスなく過ごせる明るいLDK、車椅子でも過ごしやすい平屋の二世帯住宅
-
- 39坪
- ワンルーム
回遊キッチンを囲んで家族団欒、室内プライバシー確保した平屋
-
- 42坪
- 3LDK
収納力高くスッキリ片付く、南向きで明るく東西に細長い家
-
- 42坪
- 5LDK
広々ウッドデッキ、友人を招きたくなる家
-
- 26坪
- 2LDK
車椅子や介護も視野に入れたコンパクト動線、高齢夫婦が暮らす平屋の終いの棲家
-
- 39坪
- 4LDK
家事動線がよく、プライバシーを確保できる平屋
-
- 27坪
- 2LDK
キッチン中心の便利な生活動線で、遊び心のある平屋の終いの棲家
-
- 31坪
- 3LDK
リビングは離れで特別感を、遊びのきいたユニークな平屋
-
- 27坪
- 2LDK
ロフトを孫の遊び場に、リタイア後にちょうどいい平屋の終の棲家
-
- 66坪
- 5LDK
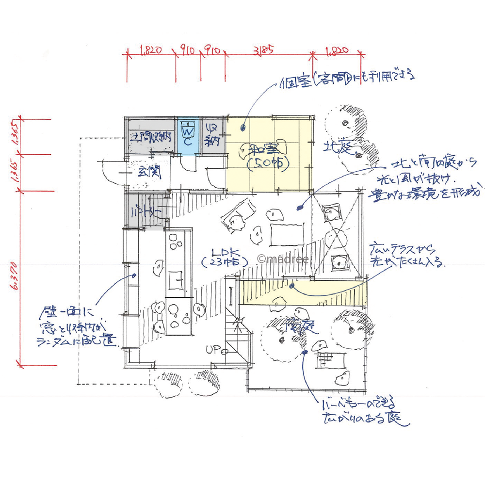
庭と繋がる広々LDKで、家族の気配感じる家
-
- 31坪
- 3LDK
家族が自然と集うLDK、全居室明るい平屋
-
- 31坪
- 3LDK
家事効率の良い、独立型キッチンの平屋
-
- 42坪
- 4LDK
機能的なサニタリースペースで自宅サロン併用の家
-
- 34坪
- 3LDK
明るい吹抜リビングで、回遊性ある家事動線の家
-
- 18坪
- 3LDK
ロフトが寝床、旗竿地で実現する明るい家
-
- 27坪〜30坪
- 3LDK
吹抜で採光工夫、眺め生かす北側LDKの家
-
- 27坪〜30坪
- 2LDK
南玄関で採光、縦長の2階建の家
-
- 39坪
- 4LDK
回遊性ある広いキッチンで、庭の景色を楽しむ平屋
-
- 50坪
- 3LDK
ストレスフリー介護で家庭円満、明るいリビングに3世代集う平屋の二世帯住宅
-
- 39坪
- 4LDK
コの字型でプライバシー確保、ウッドデッキと繋がる平屋
マドリー開発の『住宅営業支援ツール』
madreeデータバンク
マドリーの人気間取り4,800プランを接客・提案に活用できる営業支援ツール
- 競合他社と差がつく、スピード提案
- トレンド間取りで、集客・受注数UP
- 建築家のアイデアを参考に、質の高い提案ができる
