2WAY玄関の間取り一覧
家族や自分の”好き”を叶える注文住宅の間取りが見つかる!暮らしの要望をもとに全国の建築家が作成した2WAY玄関の間取りを1462件公開しています。毎日更新中!
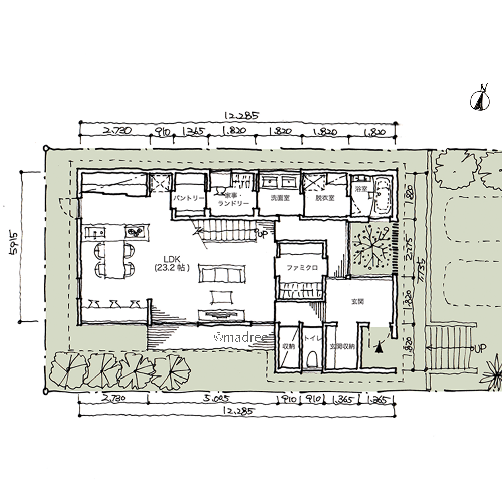
-
- 36坪
- 3LDK
大きな吹抜と大窓で縦横に空間広がる、光と風が心地良い在宅ワーカーの家
-
- 27坪〜30坪
- 3LDK
回遊動線で大人数でもストレスフリー、人が集まる賑やかな2階LDKの二世帯住宅
-
- 43坪
- 6LDK
一直線の裏動線で家事効率UP、かけがえのない家族時間をつくるママ目線の注文住宅
-
- 50坪
- 5LDK
家族が思い思いの時間を伸びやかに過ごす、縁側に囲まれた緑豊かな多世帯で住む家
-
- 32坪
- 3LDK
おこもりヌックが家族のお気に入りスペースに、2つの庭に囲まれた伸びやかなLDKの家
-
- 32坪
- 3LDK
ギャラリーを兼ねた広い土間で魅せる、2階に集約した生活空間で開放的に過ごせる家
-
- 36坪
- 4LDK
デッドスペースは最大限収納に活用、リビング中心に回遊動線で家事の繋がる家
-
- 32坪
- 3LDK
畳リビングに掘りごたつ、デッキに造り付けベンチでアウトドアリビングを楽しむ平屋
-
- 40坪
- 4LDK
玄関扉がプライバシーを守る、親しみやすいL字型キッチンを囲む快適LDK空間の家
-
- 38坪
- 3LDK
見せる収納と隠す収納を上手に使い分け、居心地を求めた落ち着くモダンな家
-
- 27坪〜30坪
- 3LDK
2つのテラスから光がLDKに届く、キッチン中心に家事動線をまとめた家
-
- 31坪
- 2LDK
一望できるキッチンと吹抜で家族見守る、光と風が心地良い変形地活かした家
-
- 41坪
- 4LDK
玄関から一直線の勝手口でラクにゴミ出し、生活感を隠せる来客動線のある家
-
- 38坪
- 3LDK
LDKと繋がる室内のような吹抜テラスで、週末はのんびりプライベート時間を過ごす家
-
- 39坪
- 3LDK
自然光の届くリラックス空間、家族みんなが通る2階廊下をホームライブラリーにした家
-
- 33坪
- 3LDK
ズボラでも整う無駄のない回遊性、コンパクトな生活動線でのんびり時間の増える家
-
- 36坪
- 3LDK
光風の通り道になる横長ワンフロアLDK、用途別に使い分けできる2つの玄関がある家
-
- 31坪
- 4LDK
コンパクトな生活動線で将来も安心、リゾートのような開放感でデッキと繋がる平屋
-
- 32坪
- 4LDK
子どもの成長やプライバシー に合わせ、間仕切り扉でフレキシブルに空間を変化させる家
-
- 42坪
- 3LDK
緑に向かって広がる伸びやかな眺望、リビングを中心に採光デッキを囲むコートハウス
-
- 37坪
- 4LDK
節電にも繋がる採光通風で夏を乗り切る、大開口窓でLDKの奥まで自然光の届く家
-
- 42坪
- 4LDK
近隣を気にしない採光プライベート空間、パティオの開放感を家中で感じられる家
-
- 36坪
- 2LDK
風水を取り入れた一列集約の家事動線、縦長地を生かして南北に爽風の抜ける家
-
- 33坪
- 2LDK
寛ぎスペースを点在させたリビングで、家族が思い思いに過ごしながら過ごせる家
マドリー開発の『住宅営業支援ツール』
madreeデータバンク
マドリーの人気間取り4,800プランを接客・提案に活用できる営業支援ツール
- 競合他社と差がつく、スピード提案
- トレンド間取りで、集客・受注数UP
- 建築家のアイデアを参考に、質の高い提案ができる
